2510 WILLOWBRAE COURT, Kamloops, British Columbia V1S2B2
Contact us about this property
Highlights
Estimated valueThis is the price Wahi expects this property to sell for.
The calculation is powered by our Instant Home Value Estimate, which uses current market and property price trends to estimate your home’s value with a 90% accuracy rate.Not available
Price/Sqft$343/sqft
Monthly cost
Open Calculator
Description
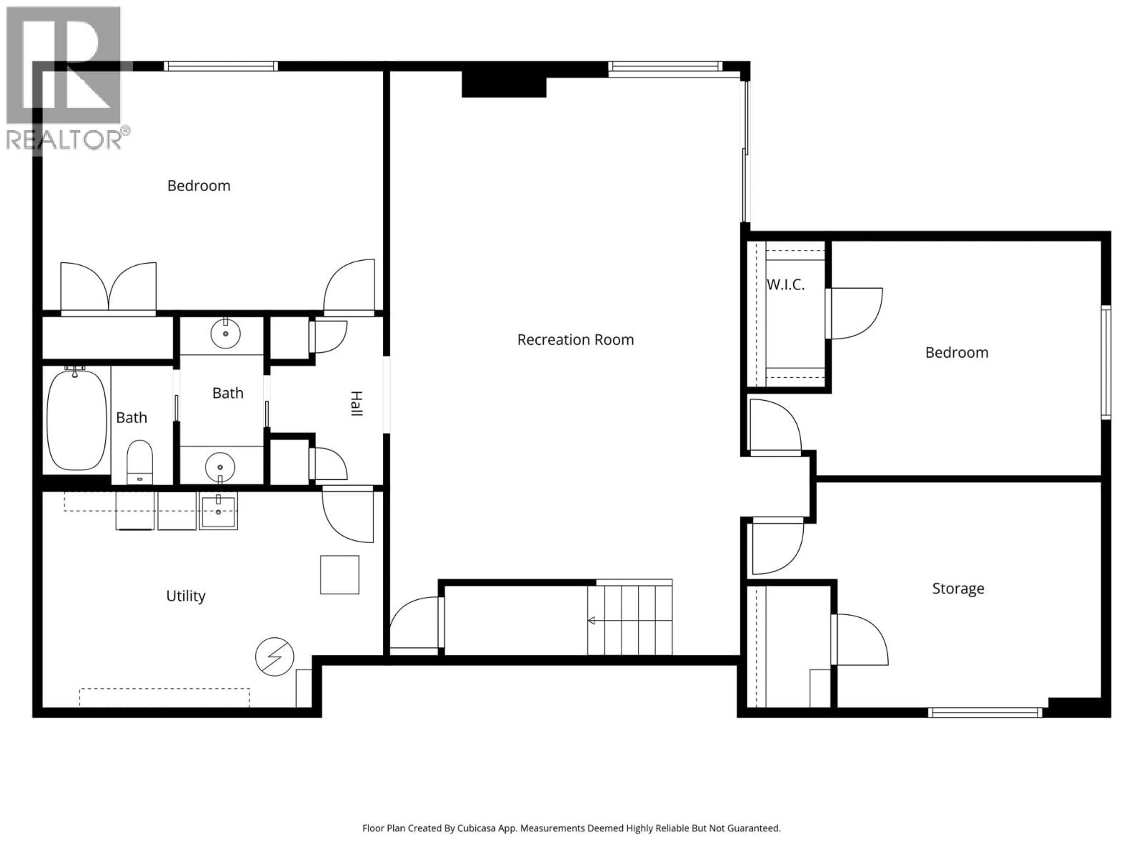
Welcome to 2510 Willowbrae Court-a beautifully maintained home tucked away on a quiet cul-de-sac in one of Kamloops’ most desirable neighbourhoods. This property offers the perfect blend of comfort, functionality, and style, ideal for families or those seeking a peaceful residential setting. Step inside to a bright and inviting main floor featuring an open-concept layout with large windows that fill the space with natural light. The spacious living room flows seamlessly into the dining area and well-appointed kitchen, complete with ample cabinetry, modern appliances, and plenty of counter space for everyday living and entertaining. The home offers generous bedroom sizes, including a primary suite with a private ensuite and excellent closet space. Additional bedrooms provide flexibility for family, guests, or a home office setup. The fully finished lower level adds even more living space, perfect for a rec room, media area, or gym. Outside, enjoy a private, landscaped yard with room to relax, garden, or entertain. The cul-de-sac location offers minimal traffic and a safe, family-friendly environment. Ample parking and an oversized 3 car garage add to the home's practicality. Conveniently located close to schools, parks, shopping, and all amenities, this home is a fantastic opportunity to get into a sought-after Kamloops community. Don’t miss your chance to call this exceptional property home — book your showing today! (id:39198)
Property Details
Interior
Features
Basement Floor
5pc Bathroom
Bedroom
11'8'' x 18'3''Games room
30'2'' x 21'8''Bedroom
12'1'' x 18'3''Exterior
Parking
Garage spaces -
Garage type -
Total parking spaces 3
Property History
55




