1189 HOWE ROAD, Kamloops, British Columbia V1S1M4
Contact us about this property
Highlights
Estimated valueThis is the price Wahi expects this property to sell for.
The calculation is powered by our Instant Home Value Estimate, which uses current market and property price trends to estimate your home’s value with a 90% accuracy rate.Not available
Price/Sqft$539/sqft
Monthly cost
Open Calculator
Description
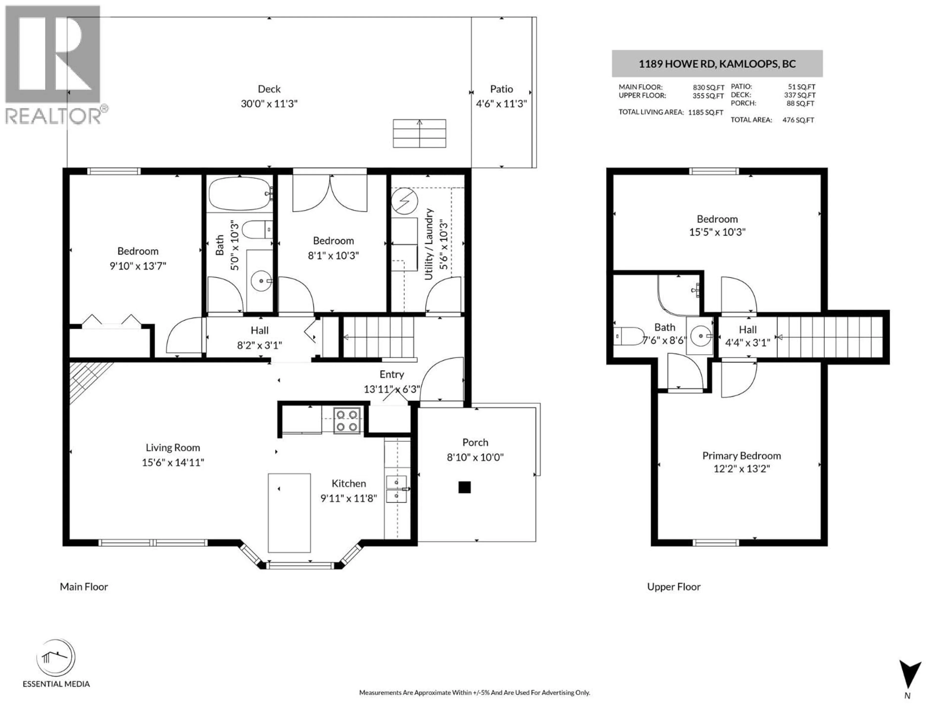
Aberdeen doll house property, backing on to green space and in a central location with a number of upgrades and updates throughout. This cute home is great for a first time buyer who wants something detached or a downsize. The main floor consists of an open plan with kitchen and living room space featuring a high vaulted ceiling in the living room. The main floor has 2 bedrooms, one walks through to the back yard where you will find a large deck, hot tub, private yard with gardens and a good sized storage shed. The main floor also consists of a full 4 piece bathroom, storage space and laundry. The top floor includes 2 additional bedrooms. The primary suite has a nice 3 piece ensuite and the second bedroom is a great size! This home has an updated furnace, flooring, ensuite, storage shed, and more! Enjoy the south facing fully fenced yard in the warmer months. This home is close to transportation, dog park and minutes drive to local uptown shopping and city amenities. Such a cute place to call home! Quick possession possible. (id:39198)
Property Details
Interior
Features
Second level Floor
3pc Ensuite bath
8'6'' x 7'6''Bedroom
10'3'' x 15'5''Primary Bedroom
13'2'' x 12'2''Exterior
Parking
Garage spaces -
Garage type -
Total parking spaces 2
Property History
44





