165 OGDEN ROAD, Clearwater, British Columbia V0E1N2
Contact us about this property
Highlights
Estimated valueThis is the price Wahi expects this property to sell for.
The calculation is powered by our Instant Home Value Estimate, which uses current market and property price trends to estimate your home’s value with a 90% accuracy rate.Not available
Price/Sqft$280/sqft
Monthly cost
Open Calculator
Description
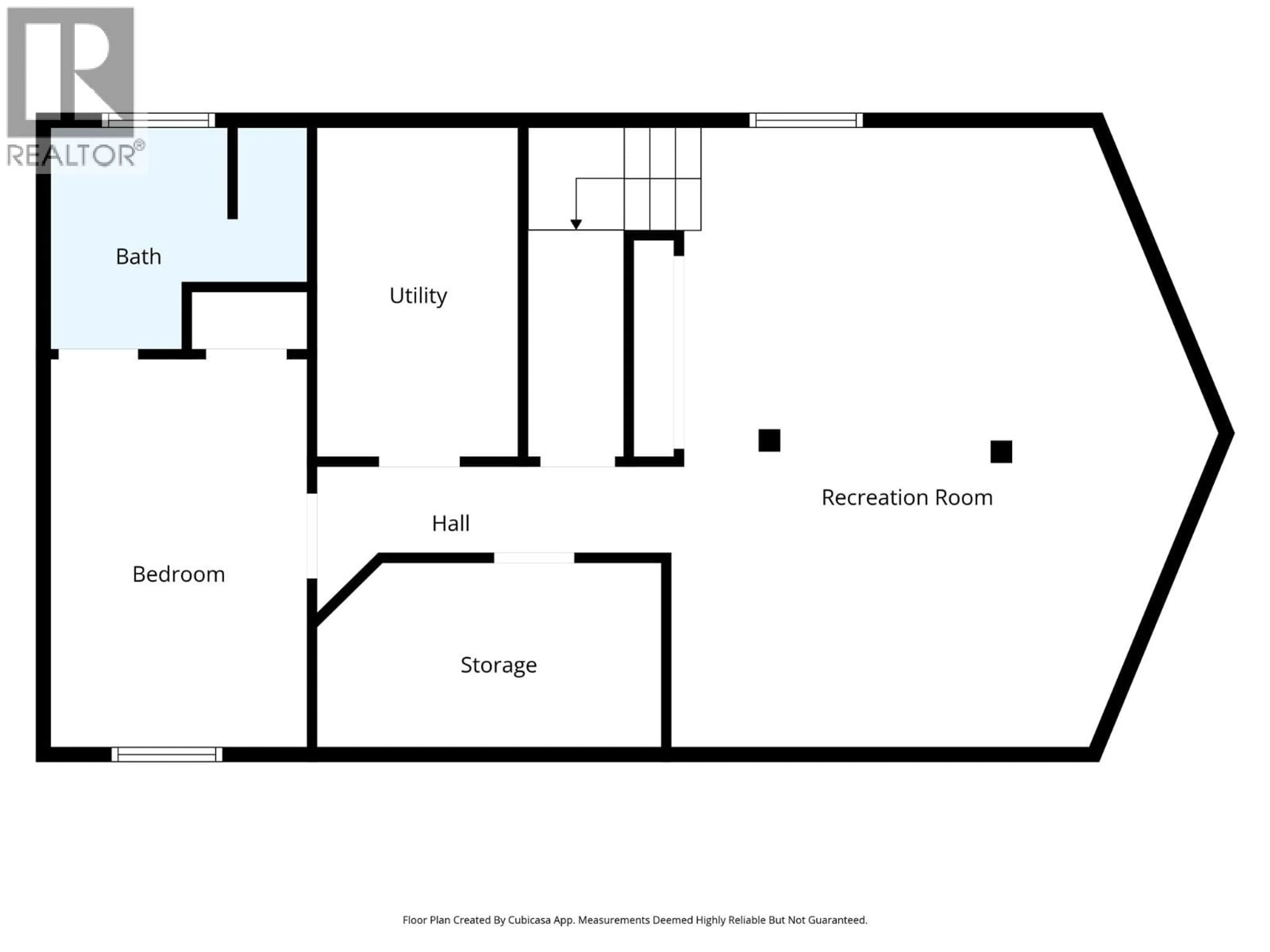
Log Home – .75 Ares in Sunshine Valley. This beautiful log home features 3 bedrooms and 3 bathrooms with a bright and inviting main living area highlighted by vaulted ceilings and a beautiful wood-burning fireplace. Large windows and patio doors bring in excellent natural light and showcase the surrounding property. The main floor offers convenient single-level living with the kitchen, living room, bedroom, bathroom, and laundry all on one level. Upstairs, the loft overlooks the living area and serves as a bright, versatile space—ideal for a home office or reading nook. This level also features the primary bedroom, complete with a spacious walk-in closet and a private ensuite.. The lower level offers a large rec room, additional bedroom with ensuite, and a dedicated utility and storage area. Outside, the 24x24 detached garage provides ample room for vehicles, tools, and recreational toys. The property also includes a chicken coop with laying hens currently producing. There is a separately titled lots available which could offer exceptional flexibility - keep the extra lot for additional privacy, explore future development possibilities, or hold it as a long-term investment. Located in a quiet area of Sunshine Valley yet close to local amenities, this property offers space, versatility, and long-term value. Call today for more information or to schedule your private showing. (id:39198)
Property Details
Interior
Features
Second level Floor
Full ensuite bathroom
Other
9' x 11'Primary Bedroom
16' x 16'Exterior
Parking
Garage spaces -
Garage type -
Total parking spaces 2
Property History
40





