7044 WATSON DRIVE EAST, Kamloops, British Columbia V0K2J0
Contact us about this property
Highlights
Estimated valueThis is the price Wahi expects this property to sell for.
The calculation is powered by our Instant Home Value Estimate, which uses current market and property price trends to estimate your home’s value with a 90% accuracy rate.Not available
Price/Sqft$338/sqft
Monthly cost
Open Calculator
Description
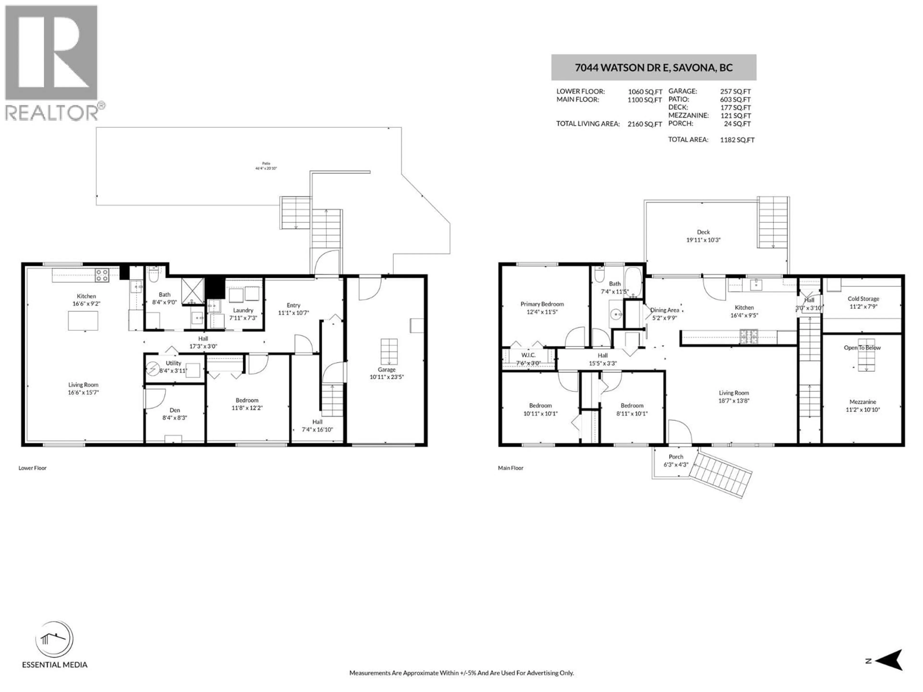
Beautifully updated 3 bedroom 1 bathroom, home, with new large 1 bedroom, 1 bathroom plus den mortgage helper in the basement with separate access. The living room is warm and inviting with a large bright window and stunning views of Kamloops lake. The large updated kitchen offers plenty counter space, granite counter tops and brand new backsplash. A raised pantry makes for plenty of storage for all your needs. Three good sized bedrooms and a large 4 piece bathroom complete the space. The main floor has been updated with all new flooring, paint, trim and lighting. The back yard is fully fenced with new cedar panels ready for your family and pets. Covered concrete patio space and view for miles. Quality time and memories will be made out here. The basement suite was added in 2025 with vinyl flooring clean white cabinet and open concept living. This home offers so much space inside and out with stunning views in every direction, it will surely not disappoint. Ample parking for all toys. Lake access minutes away, and a quick 25 minute drive to Costco. (id:39198)
Property Details
Interior
Features
Main level Floor
Other
8' x 11'5''4pc Bathroom
Primary Bedroom
12'2'' x 11'6''Bedroom
10'11'' x 10'3''Exterior
Parking
Garage spaces -
Garage type -
Total parking spaces 1
Property History
73





