241 - 5160 DAVIS BAY ROAD, Sechelt, British Columbia V7Z0H3
Contact us about this property
Highlights
Estimated valueThis is the price Wahi expects this property to sell for.
The calculation is powered by our Instant Home Value Estimate, which uses current market and property price trends to estimate your home’s value with a 90% accuracy rate.Not available
Price/Sqft$567/sqft
Monthly cost
Open Calculator
Description
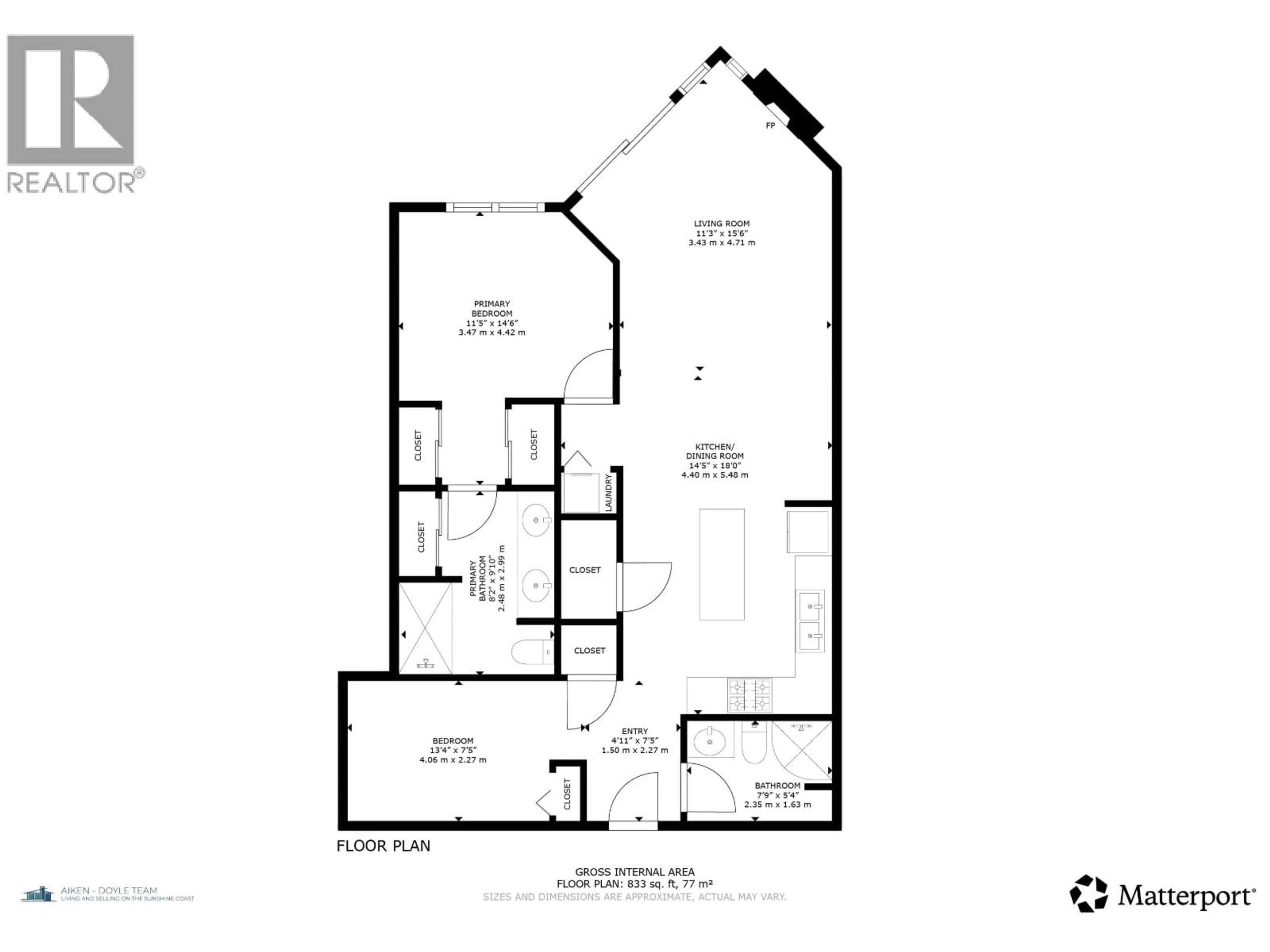
"The West" offers a perfect blend of modern design and timeless finishes in the heart of Davis Bay - one of the Sunshine Coast´s most desirable communities. This bright and spacious one-bedroom plus den, second-floor unit is wheelchair accessible and located in a peaceful area of the building. Enjoy your morning coffee on the large covered patio. Features include granite countertops, bamboo floors, 9´ ceilings, stainless steel appliances, and a natural gas stove. Pet-friendly with no age or rental restrictions, storage locker included, and gas in strata fees. Across the street, the Davis Bay boardwalk offers swimming, fishing, sunset walks, and a vibrant seaside lifestyle. Close to coffee shops & restaurants. Perfect for your summer weekend get-aways or full time living! Dont miss out! (id:39198)
Property Details
Interior
Features
Exterior
Parking
Garage spaces -
Garage type -
Total parking spaces 1
Property History
30




