1289 GOWER POINT ROAD, Gibsons, British Columbia V0N1V3
Contact us about this property
Highlights
Estimated valueThis is the price Wahi expects this property to sell for.
The calculation is powered by our Instant Home Value Estimate, which uses current market and property price trends to estimate your home’s value with a 90% accuracy rate.Not available
Price/Sqft$510/sqft
Monthly cost
Open Calculator
Description
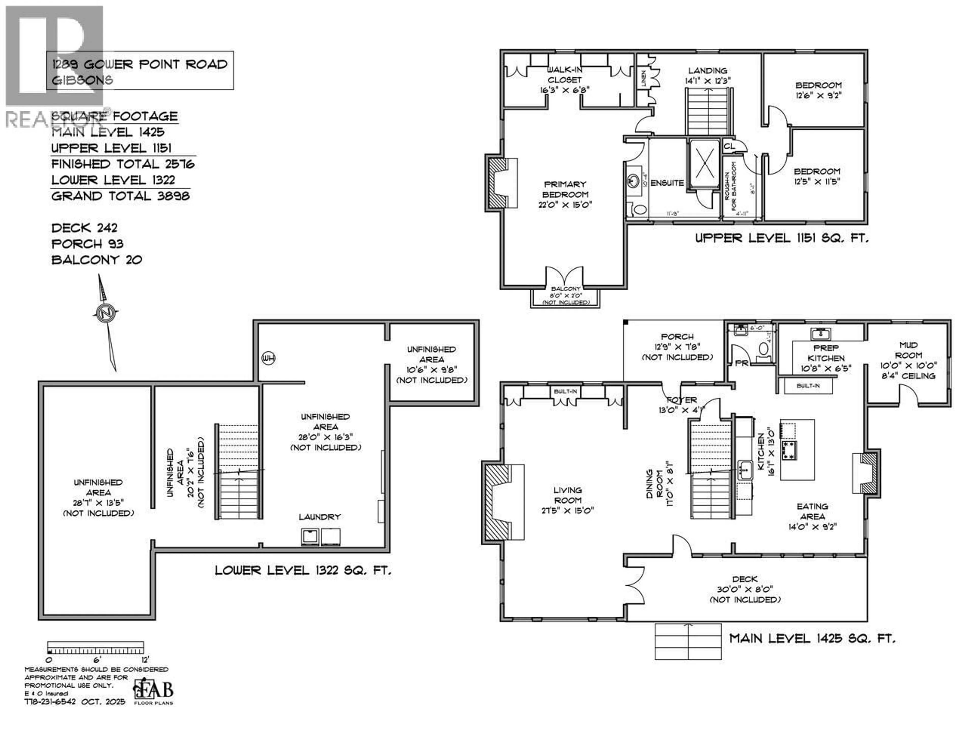
Located in the heart of Gibsons on BC´s scenic Sunshine Coast, 1289 Gower Point Road sits in a quiet, established waterfront neighborhood known for its natural beauty and relaxed, small-town character. The area offers a peaceful, coastal lifestyle just minutes from essential amenities. Residents enjoy easy access to local beaches, forested walking trails, marinas, and artisan shops, while still being close to schools, grocery stores, and healthcare services. Fenced yard. Public transit is conveniently located within a short walk from the property, providing easy connections to the rest of Gibsons and ferry access to Vancouver. The neighborhood is characterized by low-density housing and a strong sense of community, making it especially appealing to families, retirees, and professionals. (id:39198)
Property Details
Interior
Features
Exterior
Parking
Garage spaces -
Garage type -
Total parking spaces 8
Property History
40




