72 - 1160 SHELLBOURNE BOULEVARD, Campbell River, British Columbia V9W5G5
Contact us about this property
Highlights
Estimated valueThis is the price Wahi expects this property to sell for.
The calculation is powered by our Instant Home Value Estimate, which uses current market and property price trends to estimate your home’s value with a 90% accuracy rate.Not available
Price/Sqft$247/sqft
Monthly cost
Open Calculator
Description
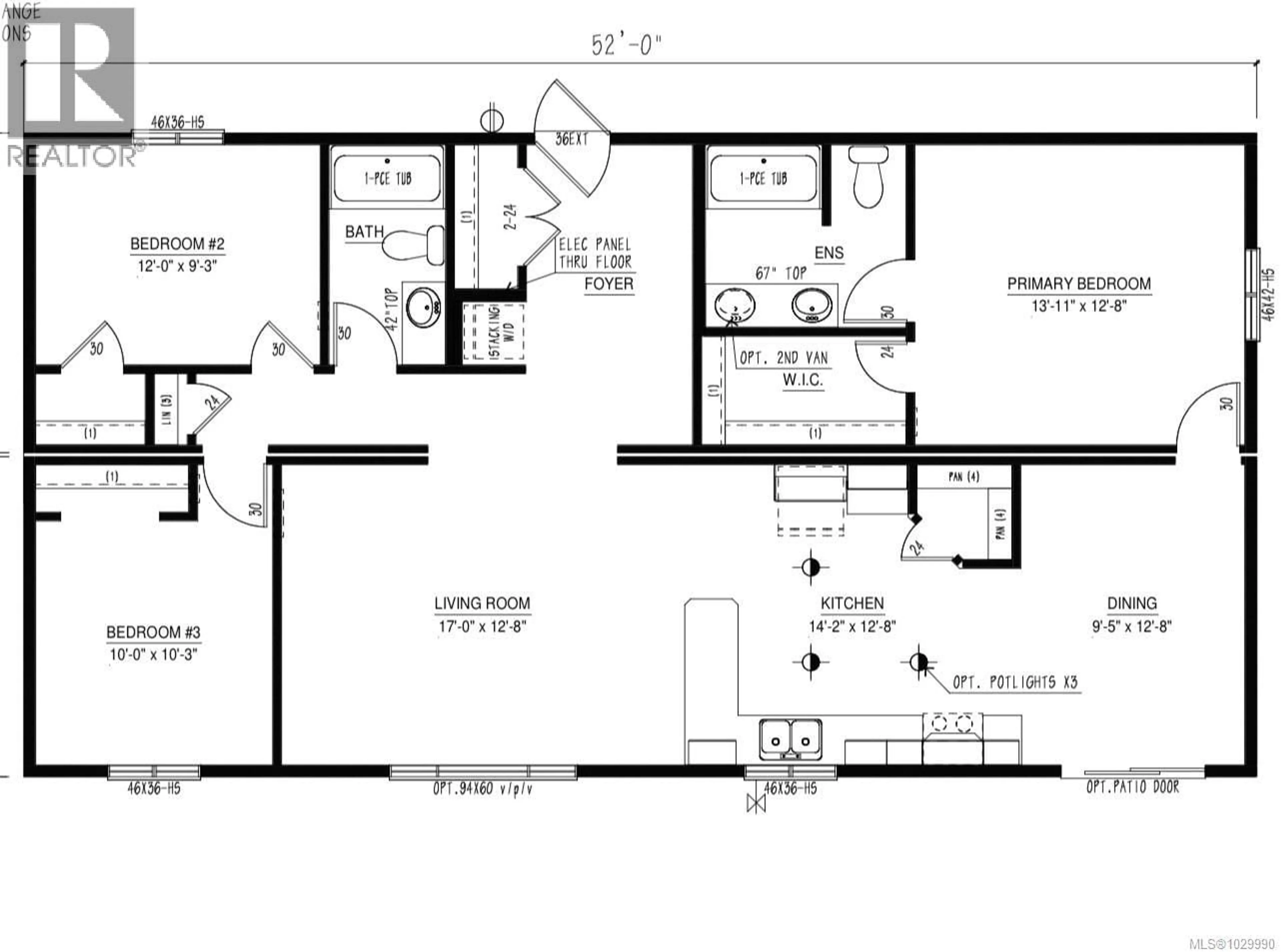
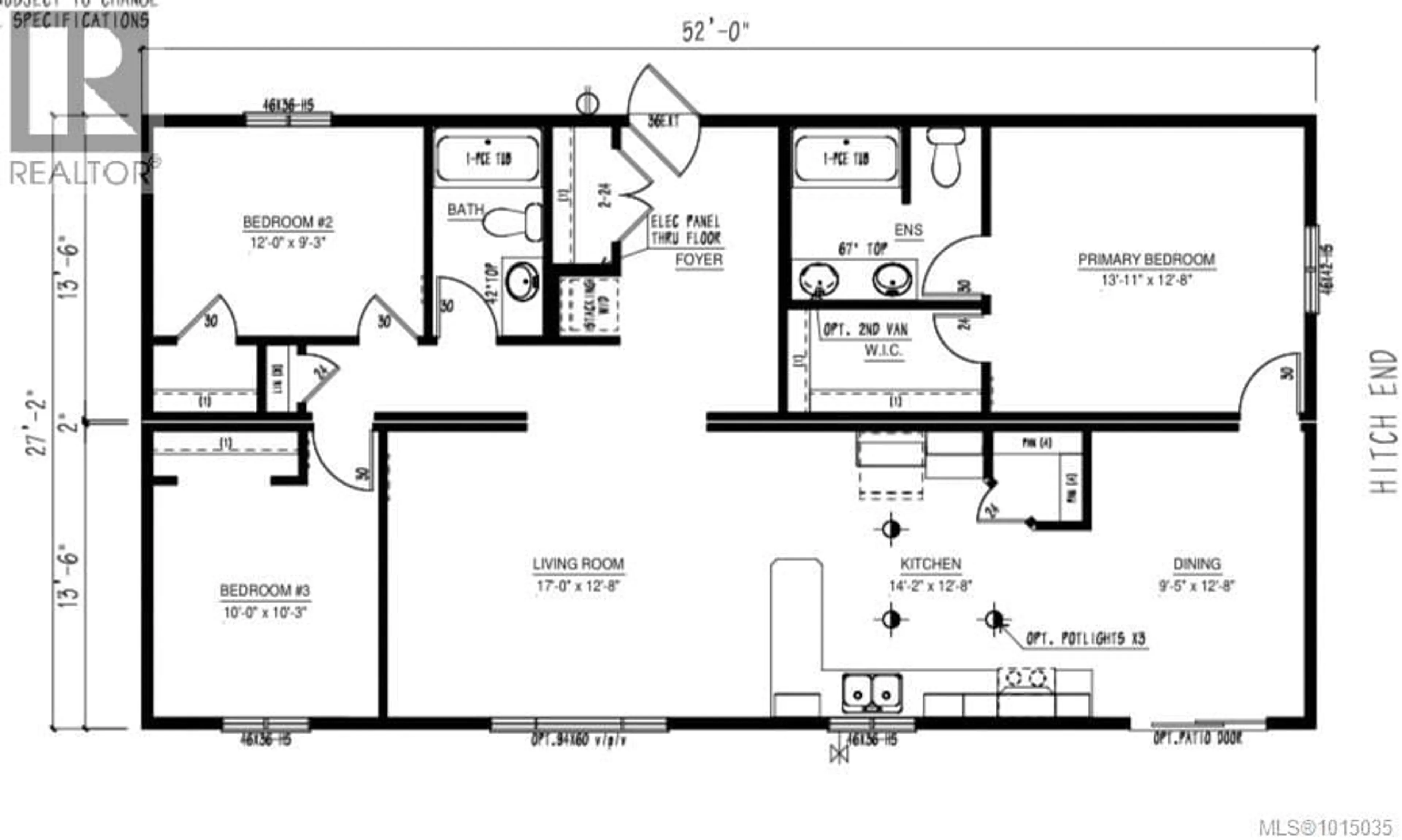
Spacious beautiful, brand new home! Large rear cement patio for private outdoor living space and summer barbeques! Prada Verde is a well managed, quiet family oriented place with a wonderful sense of community. The high efficiency gas furnace and on demand hot water will keep you cozy in the winter and able to enjoy timeless hot showers anytime. The open floor plan is perfect for entertaining! Three bedrooms and two bathrooms make this the perfect home. Bonus! This purchase includes a $2500 appliance budget to get you started, Ask your realtor about improvements before closing. This is your opportunity to invest in a brand new home at an affordable price. (GST applicable and exterior photos digitally enhanced to show finished landscaping which is in process) (id:39198)
Property Details
Interior
Features
Main level Floor
Living room
12'8 x 17'0Kitchen
12'8 x 14'2Entrance
9 x 9Dining room
12'8 x 9'5Exterior
Parking
Garage spaces -
Garage type -
Total parking spaces 2
Property History
32




