177 DAHL ROAD, Campbell River, British Columbia V9W1T4
Contact us about this property
Highlights
Estimated valueThis is the price Wahi expects this property to sell for.
The calculation is powered by our Instant Home Value Estimate, which uses current market and property price trends to estimate your home’s value with a 90% accuracy rate.Not available
Price/Sqft$354/sqft
Monthly cost
Open Calculator
Description
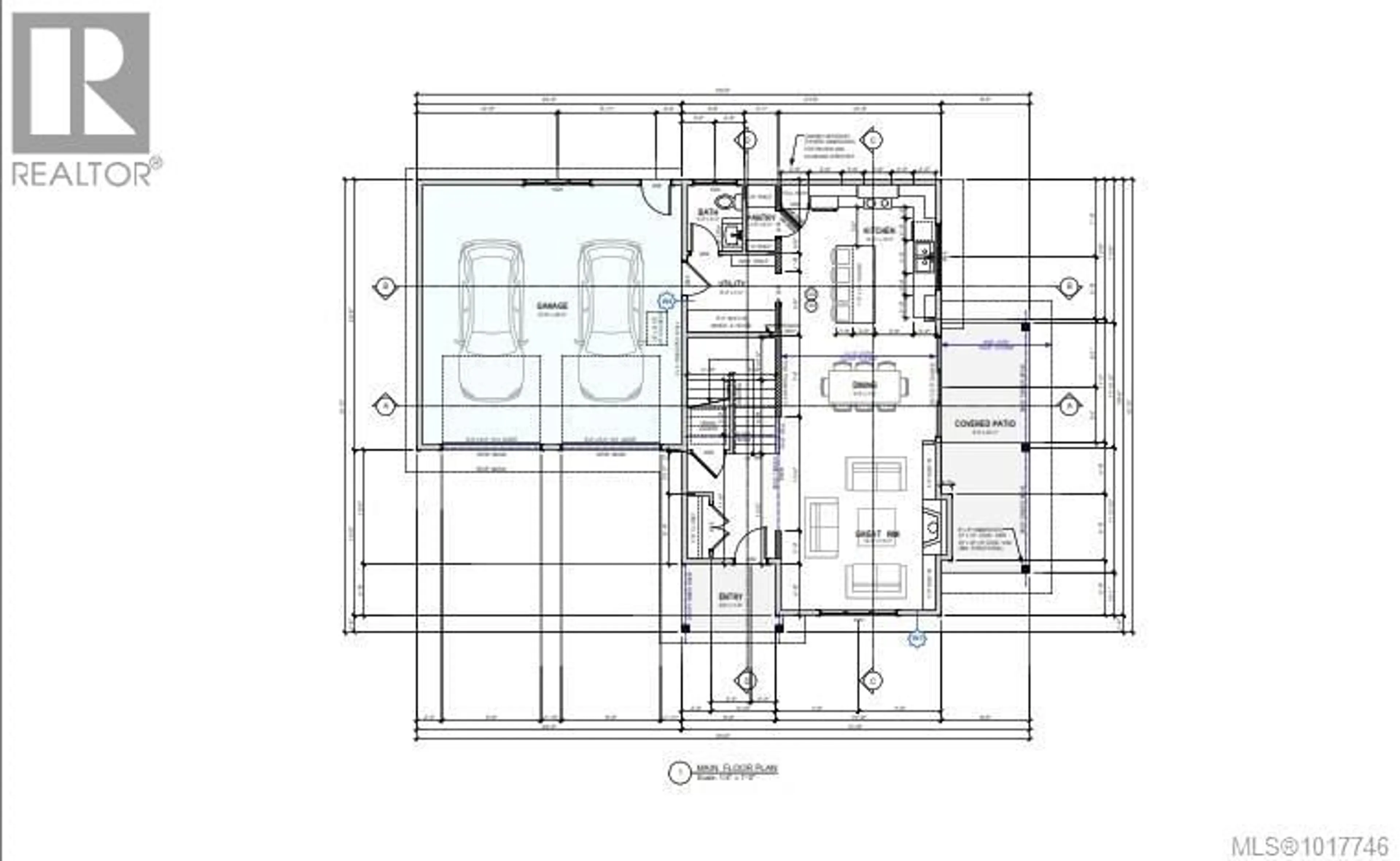
Welcome to 177 Dahl Road, a beautifully crafted brand-new home in Campbell River’s Willow Point neighbourhood, offering immediate possession and an exceptional coastal lifestyle. Just a two-minute walk to the ocean and the scenic Sea walk, this home is tucked away on a quiet, private laneway shared with only one other future build. From the moment you arrive, the timber-framed front entrance sets the tone with West Coast character and thoughtful design. Inside, the 1,790 sqft floor plan is open, bright, and built for modern living. The main level features a spacious living, dining, and kitchen area, finished with durable laminate flooring throughout and warmed by a cozy gas fireplace in the living room. The dining room flows seamlessly through a 9' slider onto an 8' x 22' timber-framed covered patio, perfect for entertaining or relaxing year-round. A convenient 2-piece bathroom and utility room complete the main level, with direct access into a 610 sqft heated double garage, already roughed in for an EV charger, ideal for today’s eco-conscious homeowner. Upstairs, you’ll find all three bedrooms, a thoughtfully placed laundry room at the top of the stairs, and a well-appointed 4-piece bathroom. The spacious 14'2 x 12'6 primary suite is a true retreat, featuring a large walk-in closet and a spa-like 5-piece ensuite with a double vanity, soaker tub, and separate shower. With hot water on demand and a full 2-5-10 home warranty, this home is built for comfort, efficiency, and long-term peace of mind. Outside, the low-maintenance yard is ready for your personal touch, with irrigation already plumbed in to support your landscaping ideas. The location is as convenient, just minutes from the golf course, marina, groceries, coffee shops, schools, shopping and airport. Whether you’re looking for a family home or a smart coastal investment, 177 Dahl Road offers modern craftsmanship, practical features, and West Coast living at its finest. (id:39198)
Property Details
Interior
Features
Main level Floor
Patio
22' x 8'Pantry
6' x 3'Bathroom
Utility room
8' x 7Exterior
Parking
Garage spaces -
Garage type -
Total parking spaces 5
Property History
 14
14





