446 CORINA AVENUE, Princeton, British Columbia V0X1W0
Contact us about this property
Highlights
Estimated valueThis is the price Wahi expects this property to sell for.
The calculation is powered by our Instant Home Value Estimate, which uses current market and property price trends to estimate your home’s value with a 90% accuracy rate.Not available
Price/Sqft$256/sqft
Monthly cost
Open Calculator
Description
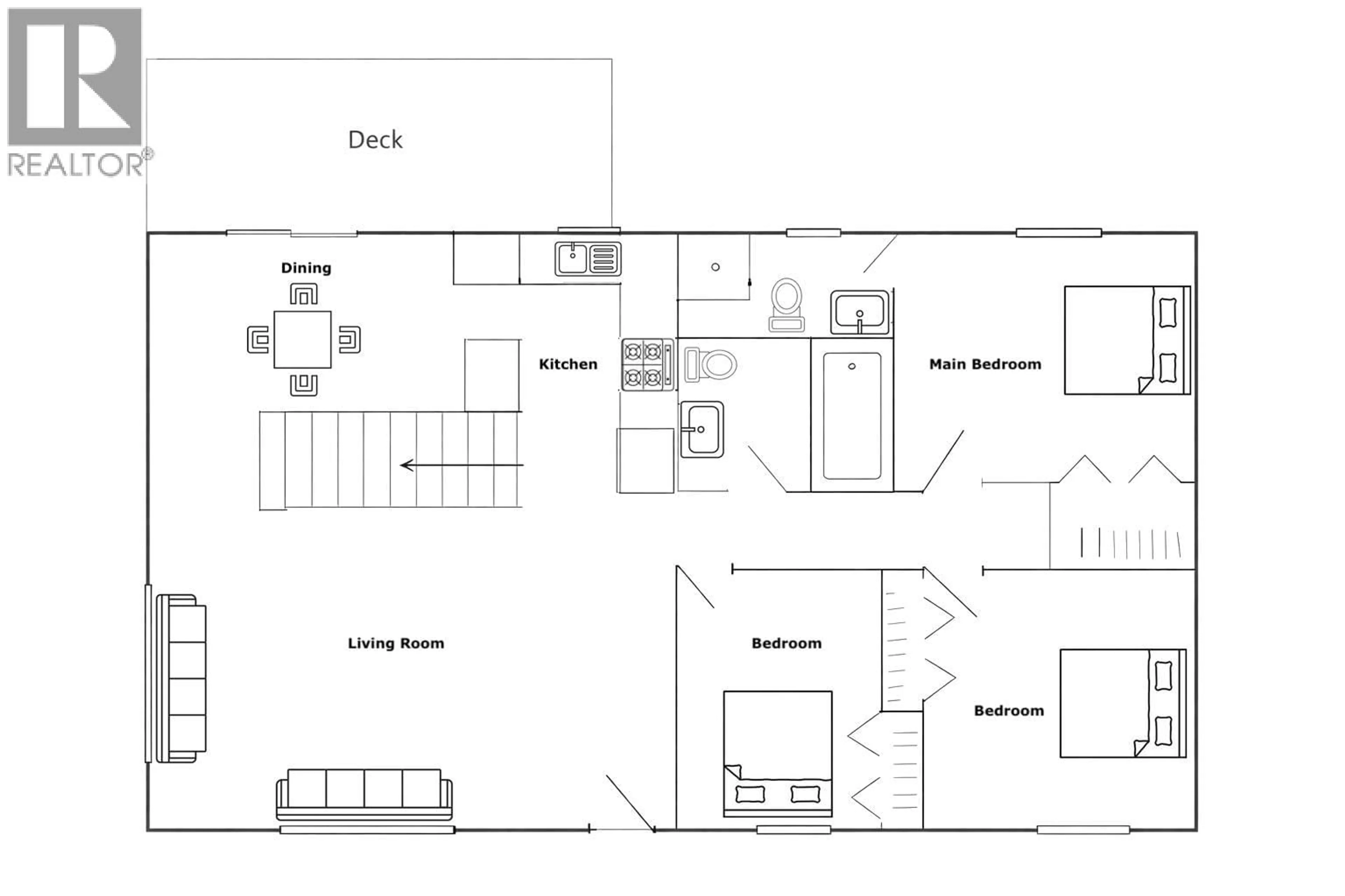
Spacious 2 level home with walkout basement overlooking the Tulameen River. Situated on a spacious lot with ample room for RV parking and additional vehicles, this property offers both a family friendly home with outdoor water lifestyle appeal. Numerous updates have been completed over the years, including windows, gas furnace, appliances, flooring, kitchen, and bathrooms, providing peace of mind. Featuring a 3 bedroom layout upstairs, with the primary bedroom offering modern amenities including a walk-in closet and 3-piece ensuite. Step outside to the large rear sun deck and enjoy beautiful river views and sounds in your own backyard. The full walk-out basement offers plenty of additional space and potential for the growing family. Conveniently located near elementary school. An amazing home that's perfect for families. (id:39198)
Property Details
Interior
Features
Basement Floor
Bedroom
10' x 12'Family room
16' x 25'2pc Bathroom
Property History
44




