440 RIDGE PLACE, Penticton, British Columbia V2A8N7
Contact us about this property
Highlights
Estimated valueThis is the price Wahi expects this property to sell for.
The calculation is powered by our Instant Home Value Estimate, which uses current market and property price trends to estimate your home’s value with a 90% accuracy rate.Not available
Price/Sqft$363/sqft
Monthly cost
Open Calculator
Description
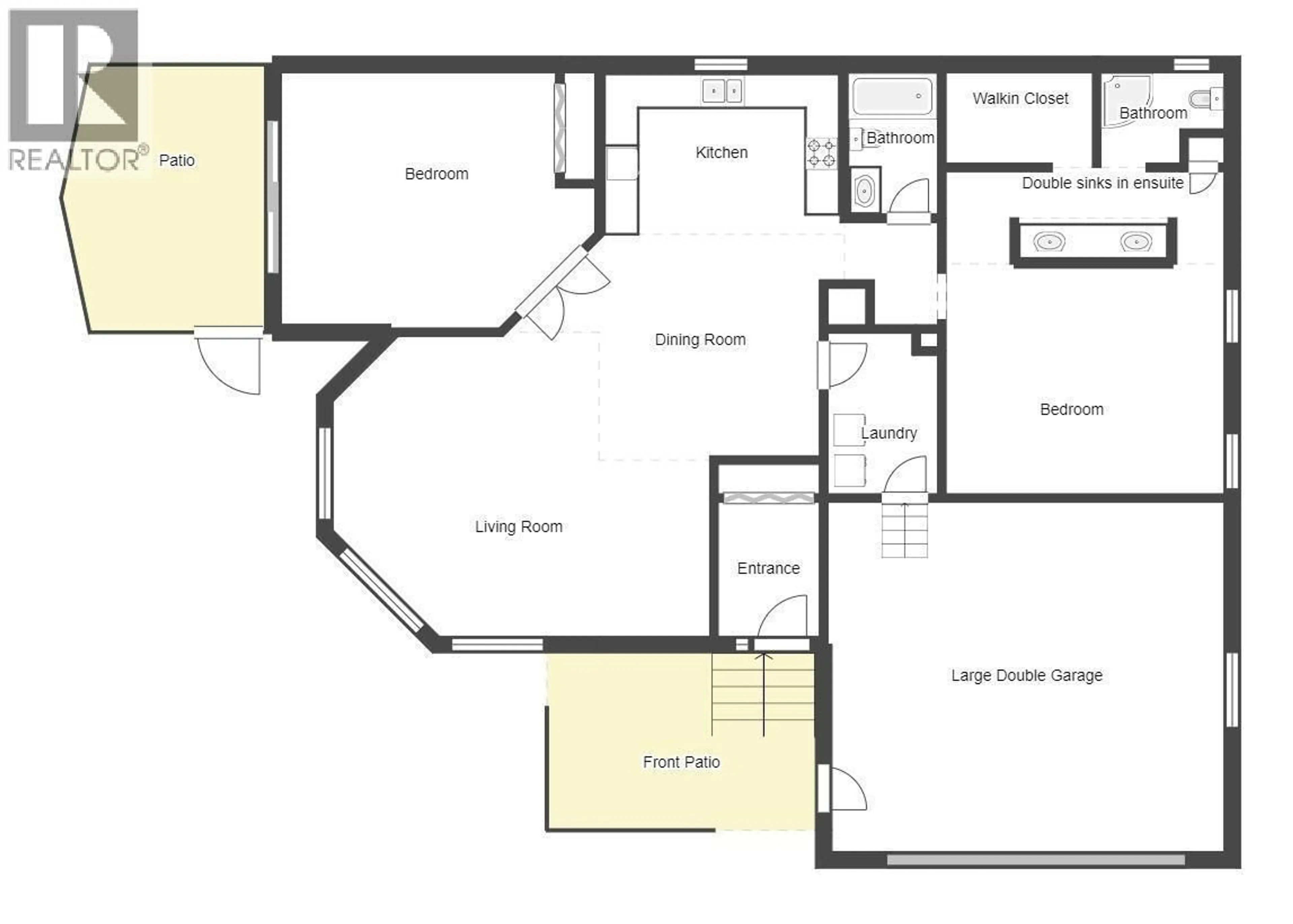
CONTINGENT – Resort-Style Retirement Living in Red Wing Resorts, Penticton Enjoy relaxed Okanagan living in the gated 40+ community of Red Wing Resorts—one of Penticton’s most sought-after lakefront communities. Located on the hillside in Upper Red Wing, this well-maintained 2005 rancher offers privacy, elevation, and a peaceful setting, just moments from the waterfront amenities. Positioned on a desirable corner lot, this bright open-concept home features a rare 270° outlook with abundant natural light and multiple skylights. Thoughtful 2021 updates include new carpeting, fresh paint, and upgraded appliances—making it truly move-in ready. The inviting living room is anchored by a cozy gas fireplace, while French doors open to a versatile second bedroom or home office with its own private patio. The spacious primary suite offers a walk-through bath and generous closet space. Residents enjoy access to a private sandy beach and a beautiful lakefront clubhouse, along with RV parking, boat moorage, and a pet-friendly environment (approval required). Long-term rentals permitted for added flexibility. Prepaid lease secured to 2036. Discover the perfect blend of comfort, community, and lifestyle in Penticton—close to the lake, yet peacefully perched above it. (id:39198)
Property Details
Interior
Features
Main level Floor
Foyer
6' x 6'Laundry room
5' x 7'Bedroom
14' x 16'5''Primary Bedroom
12'6'' x 15'6''Exterior
Parking
Garage spaces -
Garage type -
Total parking spaces 4
Property History
29





