822 PREDATOR RIDGE DRIVE, Vernon, British Columbia V1H1G4
Contact us about this property
Highlights
Estimated valueThis is the price Wahi expects this property to sell for.
The calculation is powered by our Instant Home Value Estimate, which uses current market and property price trends to estimate your home’s value with a 90% accuracy rate.Not available
Price/Sqft$794/sqft
Monthly cost
Open Calculator
Description
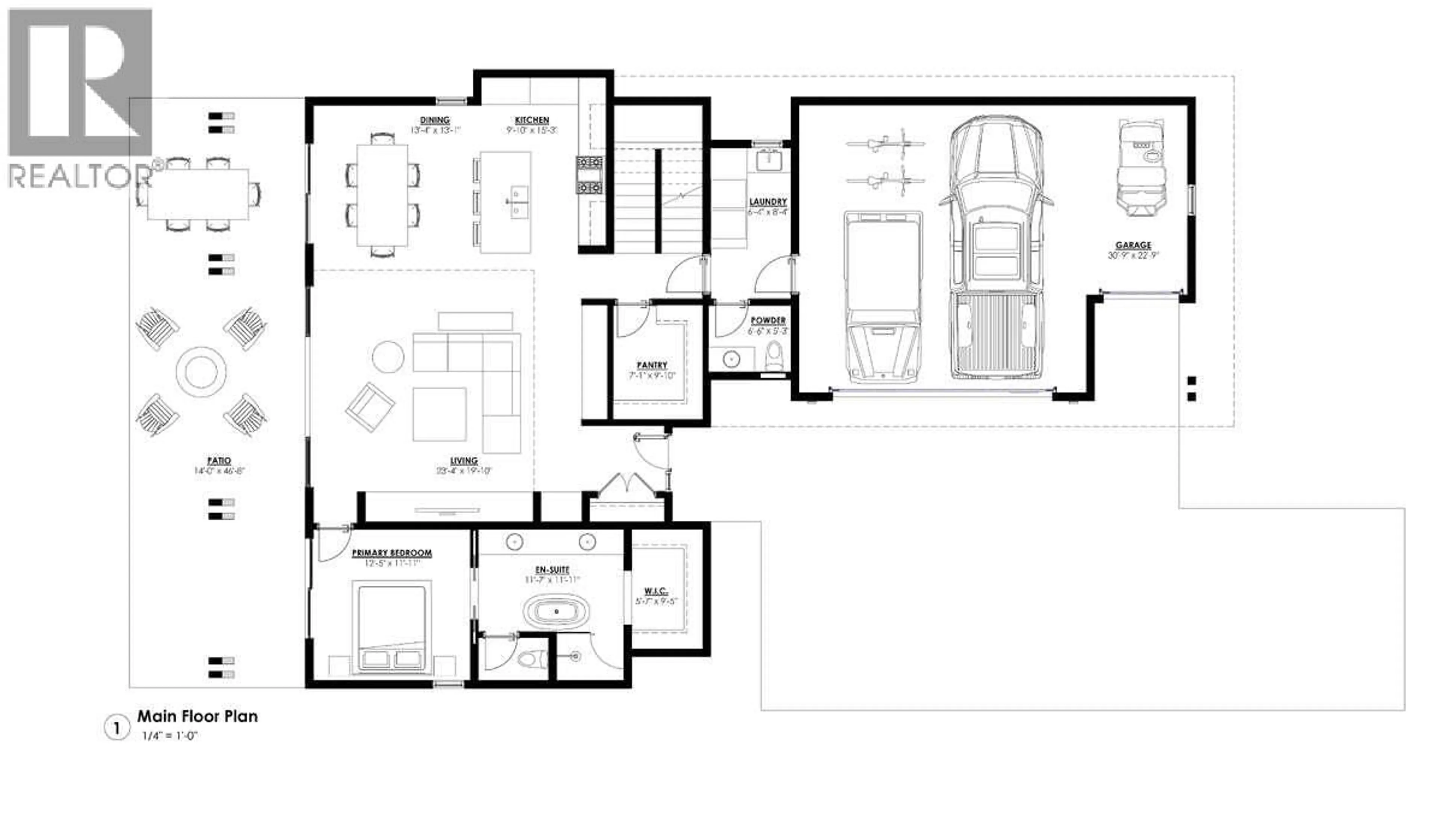
*** For more information, please click Brochure button. *** This move-in ready 2 storey home offers 2,510 sq. ft. of thoughtfully designed living with remarkable volume and natural light. Nearly 20-foot flat ceilings and a full wall of glass capture expansive views over the 7th fairway of the Ridge Course, creating a bright and impressive great room. Designed for entertaining, the open-concept kitchen features a large quartz island, premium appliances, and seamless flow to the dining area and covered outdoor living space. The spacious Primary Suite includes floor-to-ceiling windows, a spa-inspired ensuite, and an exceptionally large walk-in closet. A private office, oversized crawl space for storage, and a 2-car plus golf cart garage complete the home. Built to BC Energy Step Code 4 with high-efficiency mechanical systems, EV pre-wire, radon mitigation, and whole-home air purification for comfort and efficiency. Located within the City of Vernon with full city utilities and landscape maintenance included. Predator Ridge offers resort-style living just 25 minutes to Kelowna International Airport with amenities including golf, fitness, tennis, pickleball, trails and more. Property not yet assessed. (id:39198)
Property Details
Interior
Features
Main level Floor
2pc Bathroom
5'7'' x 6'5''Other
5'7'' x 9'5''5pc Ensuite bath
11'7'' x 11'11''Primary Bedroom
12'11'' x 11'11''Exterior
Parking
Garage spaces -
Garage type -
Total parking spaces 4
Property History
32




