304 - 1607 43 AVENUE, Vernon, British Columbia V1T9R9
Contact us about this property
Highlights
Estimated valueThis is the price Wahi expects this property to sell for.
The calculation is powered by our Instant Home Value Estimate, which uses current market and property price trends to estimate your home’s value with a 90% accuracy rate.Not available
Price/Sqft$350/sqft
Monthly cost
Open Calculator
Description
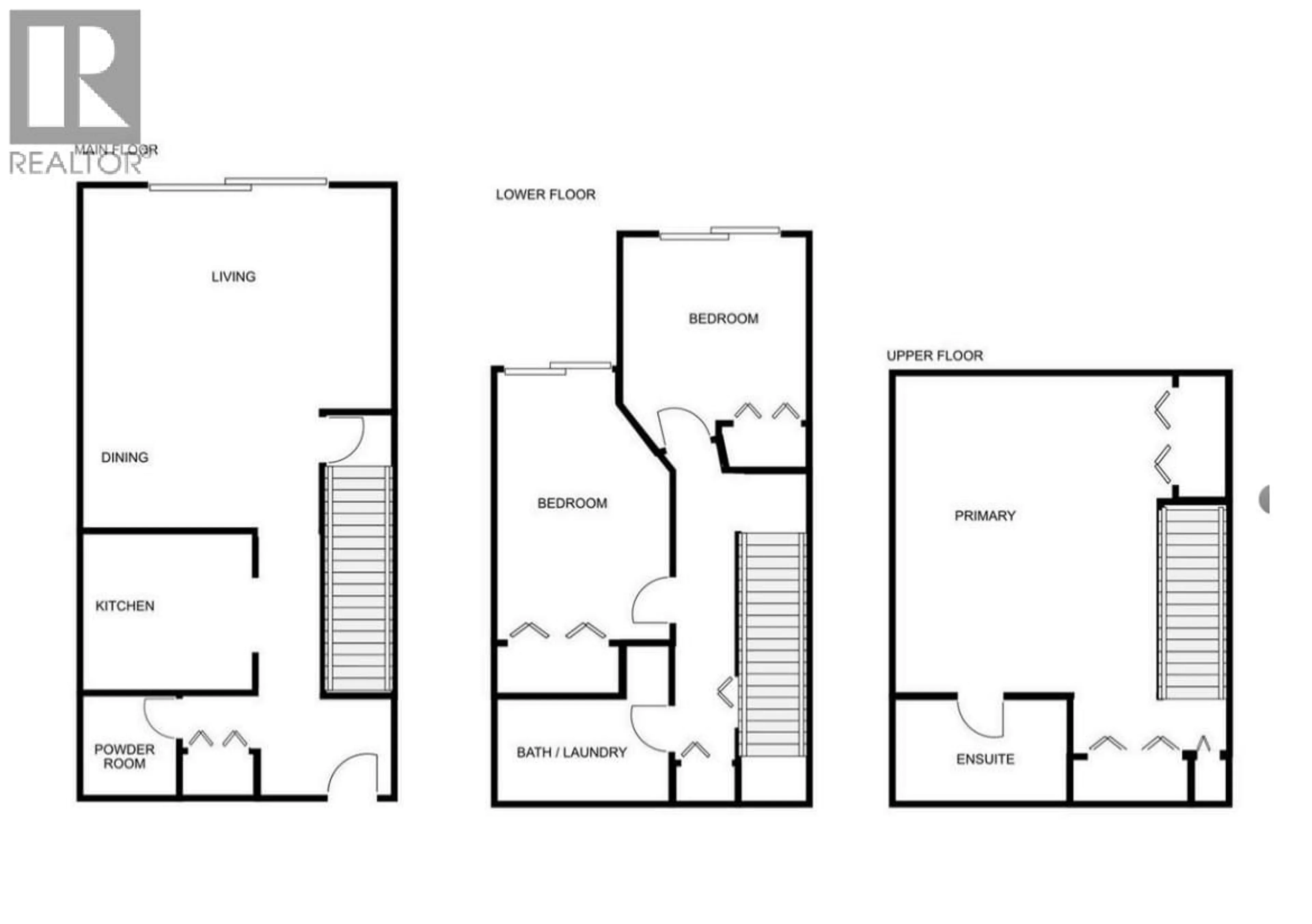
Very unique 3 bedroom, 3 bathroom floorplan. Main floor has kitchen with sit up breakfast bar that opens to Living room with a gas fireplace. Deck overlooks green space. 2 piece powder room. Large Primary bedroom on top level with a full ensuite.is completely on its own for privacy.. The lower level has 2 bedrooms that both lead out to patio. a full bathroom, laundry area and under stairs storage. Nice area and location on City bus route. 2 parking stalls. (id:39198)
Property Details
Interior
Features
Basement Floor
Bedroom
12'10'' x 8'7''4pc Bathroom
Bedroom
9'4'' x 9'1''Exterior
Parking
Garage spaces -
Garage type -
Total parking spaces 2
Condo Details
Inclusions
Property History
18





