3 hours on Market
2 - 4004 24 AVENUE, Vernon, British Columbia V1T1M4
Condo
2
1
~856 sqft
$329,900
Get pre-qualifiedPowered by nesto
Condo
2
1
~856 sqft
Contact us about this property
Highlights
Days on market3 hours
Estimated valueThis is the price Wahi expects this property to sell for.
The calculation is powered by our Instant Home Value Estimate, which uses current market and property price trends to estimate your home’s value with a 90% accuracy rate.Not available
Price/Sqft$385/sqft
Monthly cost
Open Calculator
Description
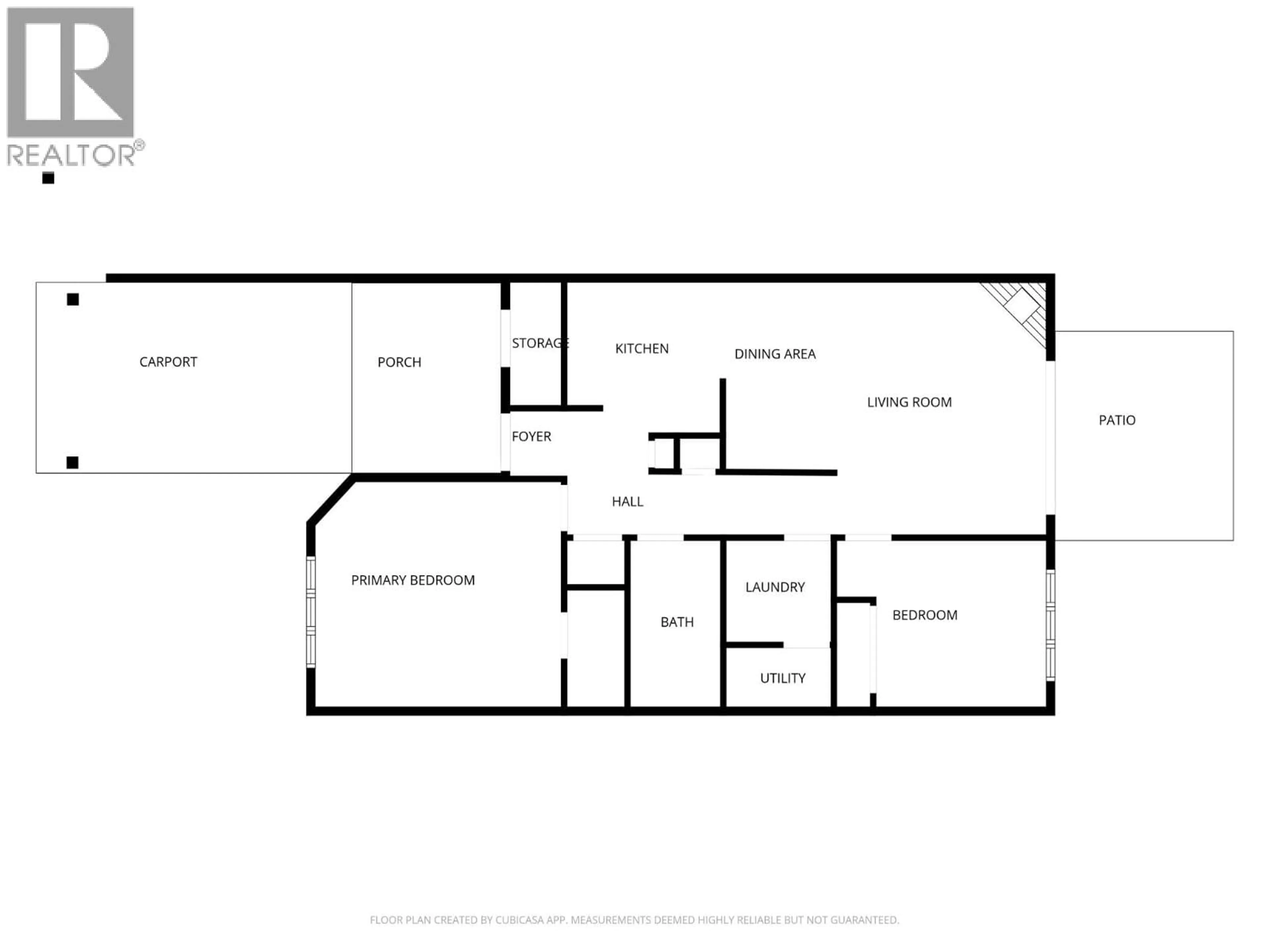
Nicely updated 2 bedroom 1 bathroom entry level townhouse with carport and rare backyard area. Unit is available for possession May 1 onwards and is in move in ready! Upgrades include windows, doors, flooring, countertops, and paint! Nice and open layout with plenty of natural light. Gas fireplace and baseboard heat handle the heating. Storage room off the carport as well. Location is close to town and all amenities! (id:39198)
Property Details
StyleRow / Townhouse
View-
Age of property1982
SqFt~856 SqFt
Lot Size-
Parking Spaces-
MLS ®Number10382374
Community NameVernon
Data SourceCREA
Listing by3 Percent Realty Inc.
Interior
Features
Heating: Baseboard heaters, See remarks
Main level Floor
Laundry room
9' x 5'Full bathroom
Bedroom
9'7'' x 9'Primary Bedroom
13'5'' x 12'Condo Details
1Story
Inclusions
Hydro
Water
Parking
Cable
Heat
Property History
Apr 7, 2026
ListedActive
$329,900
3 hours on market
23Listing by crea®
23Property listed by 3 Percent Realty Inc., Brokerage

Interested in this property?Get in touch to get the inside scoop.





