765 HORSESHOE ROAD, Gabriola Island, British Columbia V0R1X3
Contact us about this property
Highlights
Estimated valueThis is the price Wahi expects this property to sell for.
The calculation is powered by our Instant Home Value Estimate, which uses current market and property price trends to estimate your home’s value with a 90% accuracy rate.Not available
Price/Sqft$818/sqft
Monthly cost
Open Calculator
Description
Beautifully developed 5 acre property that offers sweeping ocean views with multiple outdoor living and entertaining areas. The park like grounds includes several outbuildings for RV storage, a large workshop, garden shed and a fenced garden area with irrigation. The home has been tastefully renovated including a new kitchen with black walnut cabinetry, soapstone countertops and quality appliances. Thoughtfull updates have created a home that’s ready for immediate enjoyment. Measurements are approximate. Verify all data and measurements if important. (id:39198)
Property Details
Interior
Features
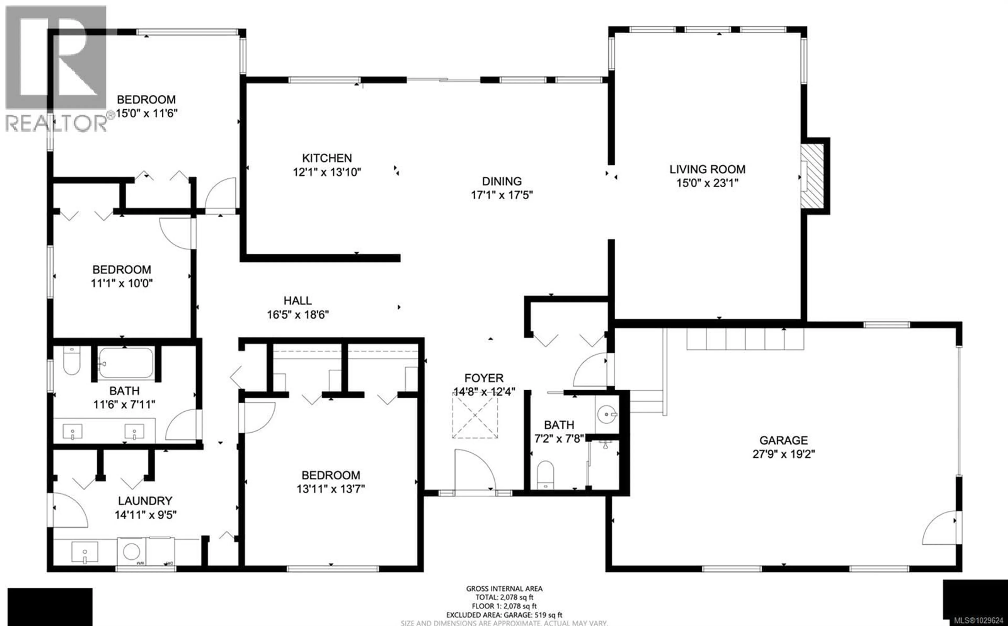
Main level Floor
Dining room
17'5 x 17'1Laundry room
9'5 x 14'11Bathroom
7'8 x 7'2Bathroom
7'11 x 11'6Exterior
Parking
Garage spaces -
Garage type -
Total parking spaces 6
Property History
39





