1805 STALKER ROAD, Gabriola Island, British Columbia V0R1X7
Contact us about this property
Highlights
Estimated valueThis is the price Wahi expects this property to sell for.
The calculation is powered by our Instant Home Value Estimate, which uses current market and property price trends to estimate your home’s value with a 90% accuracy rate.Not available
Price/Sqft$1,027/sqft
Monthly cost
Open Calculator
Description
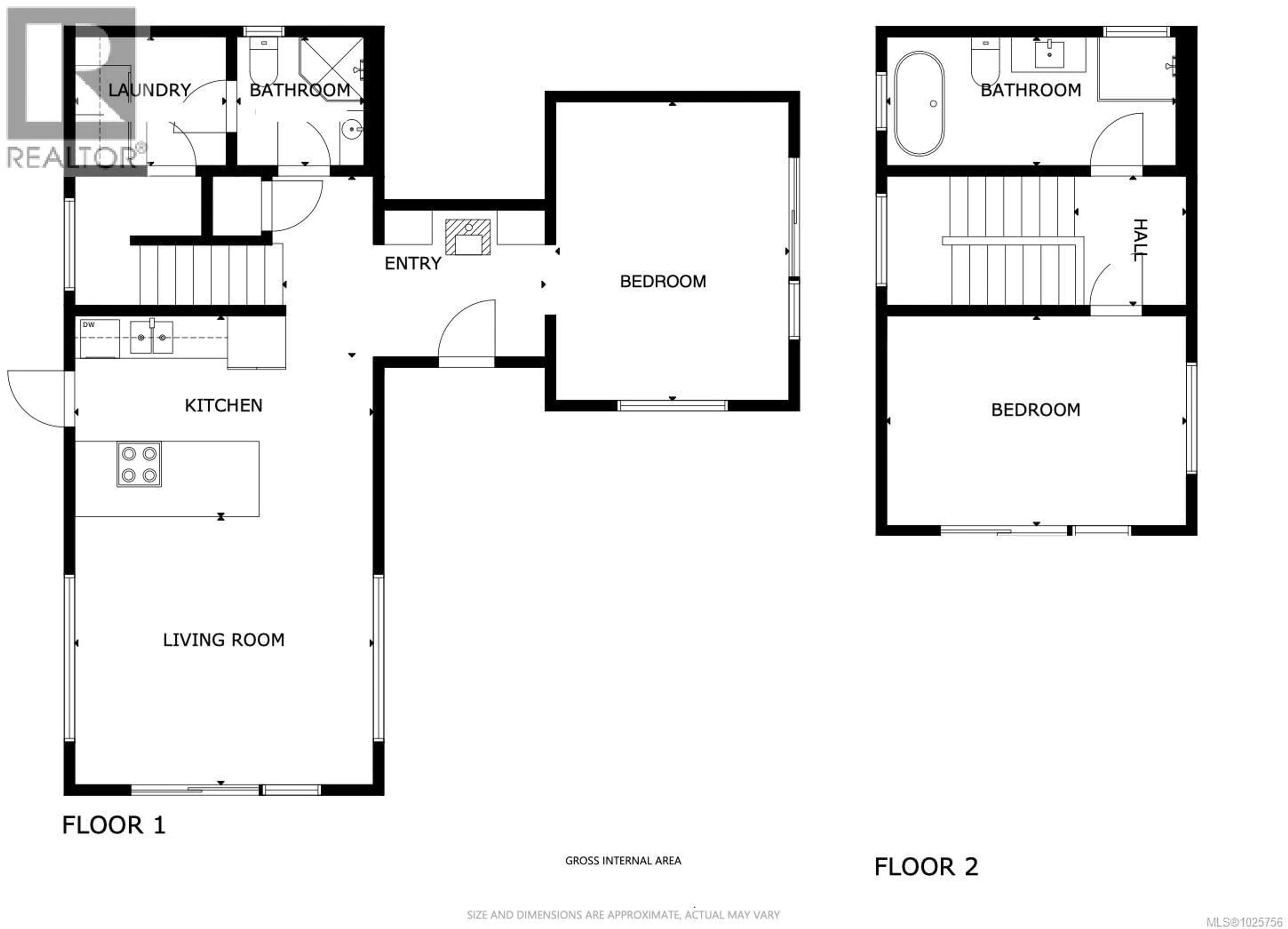
Tucked into the peaceful landscape of Gabriola’s sunny south end, this beautifully designed architectural 2-bedroom, 2-bathroom home offers a wonderful blend of modern comfort and relaxed island living. Thoughtfully positioned to capture light throughout the day, the contemporary home features polished concrete floors with in-floor heating, soaring 10-foot ceilings, and expansive walls of glass that create a bright and welcoming atmosphere in every season. Set on nearly 6 acres, this sun-drenched property enjoys brightness from sunrise to sunset, with year-round light and warmth, privacy, and gentle ocean glimpses toward Degnen Bay. A substantial 1000+ sq ft workshop with two heat pumps provides excellent flexibility, while the detached 9x14 studio — with power, water, and cable — offers an ideal space for a home office, art studio, or yoga and wellness room. Additional features include a generator panel, good cell reception, high-speed internet, upper garden area with water, years of firewood, and a quiet, peaceful neighbourhood. Located just moments from Drumbeg Provincial Park, scenic walking trails, and two nearby marinas, this property truly captures the essence of Gulf Island living — bright, private, and connected to nature. Full information package, floor plans, and virtual tour available. All information to be verified if deemed important. (id:39198)
Property Details
Interior
Features
Main level Floor
Bedroom
10'9 x 13'9Kitchen
8'8 x 13'9Entrance
8'4 x 8Pantry
2'7 x 2'10Exterior
Parking
Garage spaces -
Garage type -
Total parking spaces 3
Property History
48




