1130 BERRY POINT ROAD, Gabriola Island, British Columbia V0R1X1
Contact us about this property
Highlights
Estimated valueThis is the price Wahi expects this property to sell for.
The calculation is powered by our Instant Home Value Estimate, which uses current market and property price trends to estimate your home’s value with a 90% accuracy rate.Not available
Price/Sqft$959/sqft
Monthly cost
Open Calculator
Description
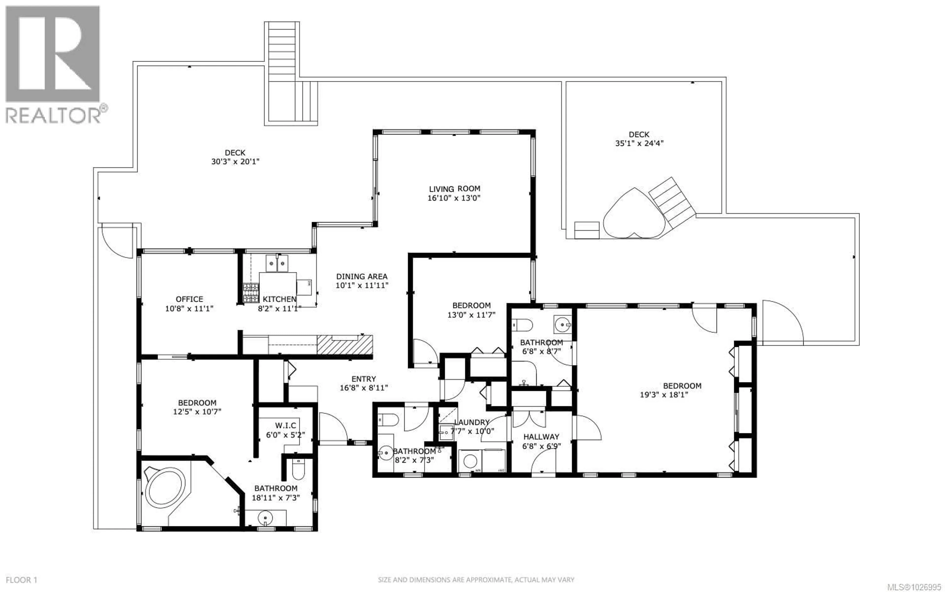
Set on 1.16 acres in a very private waterfront setting, this architect-designed 1,823 sq ft, 3-bedroom, 3-bathroom home takes full advantage of its incredible position, with sweeping views across the Salish Sea to the snow-covered mountains beyond. The open-plan design feels connected, comfortable, and full of light, with large windows framing the views from almost every room. There’s an easy flow between the indoor living spaces and the outdoors, and it’s one of those homes where people walk in and immediately pause—it truly feels like stepping into a picture. The wood-sided exterior blends beautifully into the natural setting, while a heat pump and propane stove provide comfort throughout the seasons. The generous deck and hot tub are perfectly positioned to take in the ever-changing outlook—from sunrise over Mount Baker with seals, eagles, and passing marine life part of the daily scene. The setting is quiet and peaceful, with no traffic or noise, yet it doesn’t feel isolated. The property is nicely sheltered while still enjoying wide, open ocean views. Outside, the layered gardens feature Japanese-inspired elements and a walking labyrinth, along with a studio, teahouse, and workshop spaces offering flexibility and plenty of options for how to use the space. A full information package is available. All information to be verified by a buyer if deemed important. (id:39198)
Property Details
Interior
Features
Main level Floor
Dining room
10 x 12Bedroom
10'7 x 12'5Bedroom
19'2 x 18Bathroom
Exterior
Parking
Garage spaces -
Garage type -
Total parking spaces 3
Property History
59




