792 REID ROAD, Parksville, British Columbia V9P2E6
Contact us about this property
Highlights
Estimated valueThis is the price Wahi expects this property to sell for.
The calculation is powered by our Instant Home Value Estimate, which uses current market and property price trends to estimate your home’s value with a 90% accuracy rate.Not available
Price/Sqft$514/sqft
Monthly cost
Open Calculator
Description
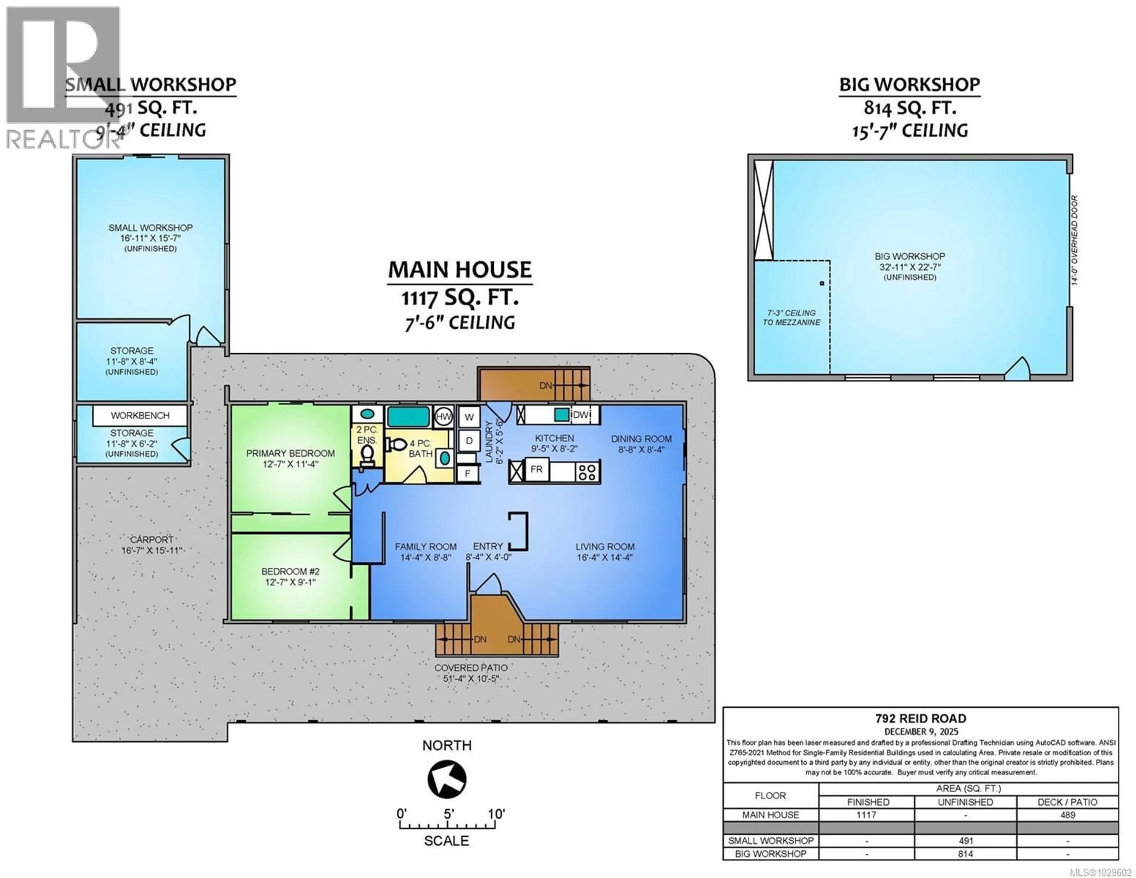
Unlock the potential of this rare 0.61-acre property offering exceptional subdivision possibilities. With two separate driveways already in place and dual sewer connections, much of the groundwork is set for your next development project or investment opportunity. The property features a massive shop equipped with 200-amp power and a large overhead door—perfect for trades, storage, or a home-based business while you plan your build. Whether you're a developer, investor, or someone looking to create a custom property, the infrastructure here provides flexibility and value. An older mobile home currently sits on the property and requires significant renovation; however, the true value lies in the land and its future potential. Most buyers will see this as an ideal canvas to remove the existing structure and build new—maximizing the subdivision opportunities available. Opportunities like this are increasingly rare—secure your piece of land with built-in advantages and bring your vision to life. (id:39198)
Property Details
Interior
Features
Other Floor
Workshop
22'7 x 32'11Exterior
Parking
Garage spaces -
Garage type -
Total parking spaces 4
Property History
43





