9 - 9130 GRANVILLE STREET, Port Hardy, British Columbia V0N2P0
Contact us about this property
Highlights
Estimated valueThis is the price Wahi expects this property to sell for.
The calculation is powered by our Instant Home Value Estimate, which uses current market and property price trends to estimate your home’s value with a 90% accuracy rate.Not available
Price/Sqft$260/sqft
Monthly cost
Open Calculator
Description
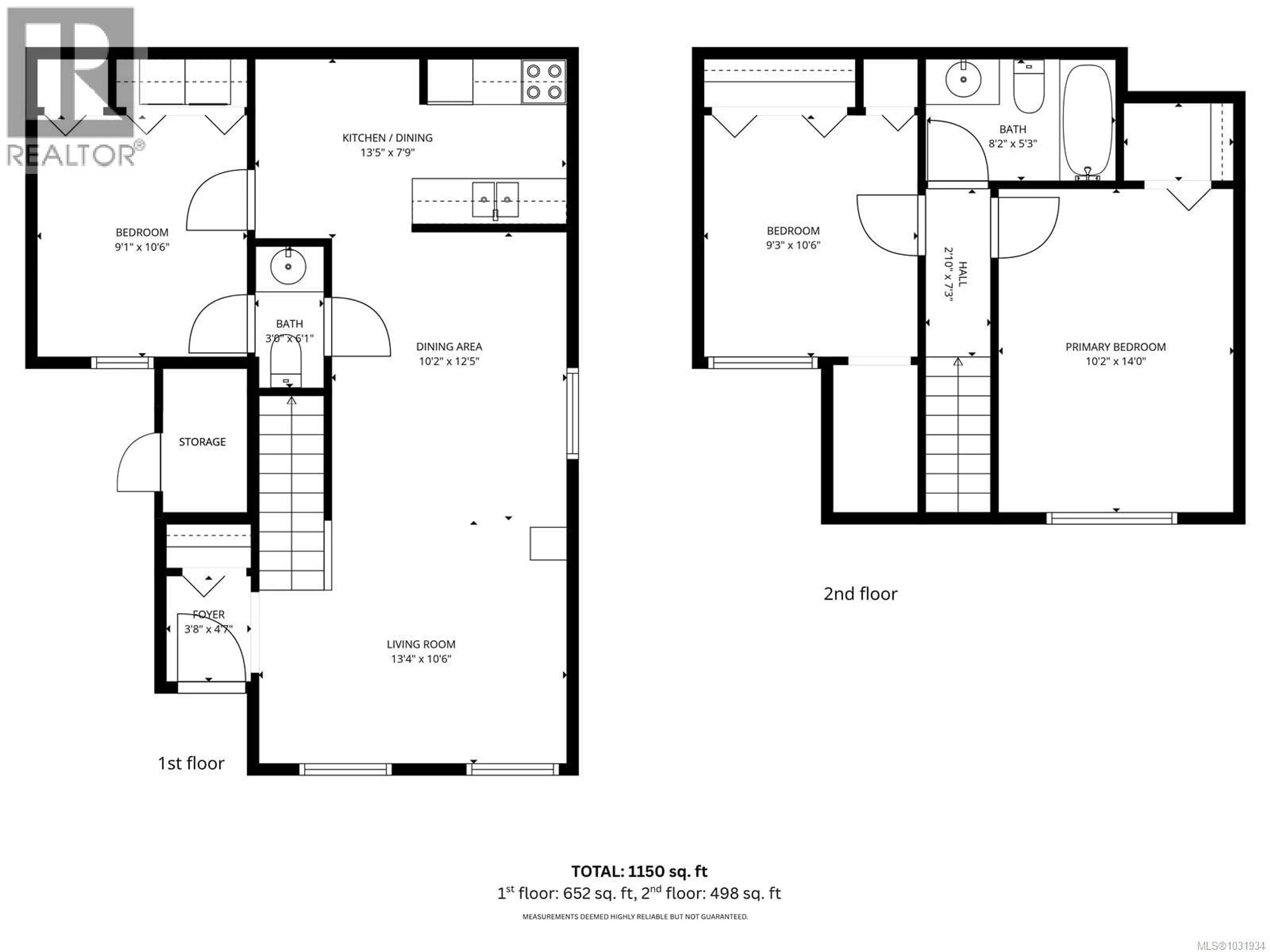
This well-maintained 3-bedroom, 2-bathroom townhome in sought-after Seawind Estates, a quiet community in Port Hardy, offers comfort and convenience in one package. Located away from the main entrance for added privacy, this home enjoys a peaceful setting within the complex. Updated flooring throughout gives the home a fresh, modern feel. The open-concept main floor features a bright living and dining area, a functional kitchen, a convenient half bath, and a versatile bedroom or office space. Upstairs, you’ll find two generously sized bedrooms and a full bathroom, creating a comfortable and private retreat. Step outside to a fully fenced yard with a patio deck, perfect for summer entertaining, along with a beautifully maintained garden. Major updates have already been completed, including a new roof, updated hot water tank, and flooring throughout. Located within walking distance to shops, schools, groceries, restaurants, and more, this home offers both lifestyle and convenience. Book your showing today. (id:39198)
Property Details
Interior
Features
Second level Floor
Bedroom
14'4 x 11Bedroom
9'8 x 11Bathroom
Exterior
Parking
Garage spaces -
Garage type -
Total parking spaces 19
Condo Details
Inclusions
Property History
44





