3775 HARDY MOUNTAIN ROAD, Grand Forks, British Columbia V0H1H2
Contact us about this property
Highlights
Estimated valueThis is the price Wahi expects this property to sell for.
The calculation is powered by our Instant Home Value Estimate, which uses current market and property price trends to estimate your home’s value with a 90% accuracy rate.Not available
Price/Sqft$386/sqft
Monthly cost
Open Calculator
Description
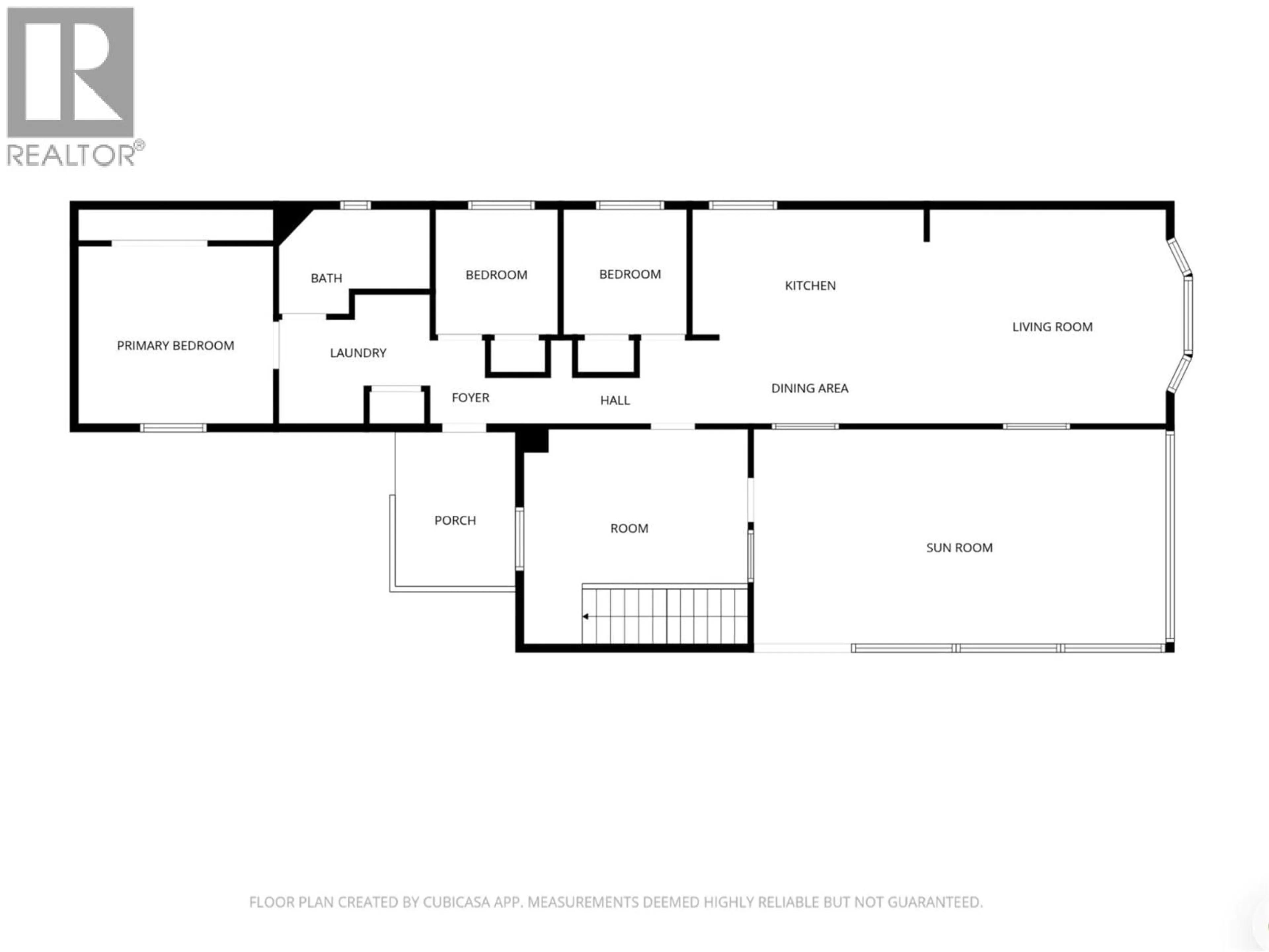
This private 16.8-acre retreat captures an expansive panorama of the Granby and Kettle River valleys while remaining conveniently close to town amenities. The 1992 mobile home features a spacious addition on a full concrete foundation, offering a comfortable and move-in ready residence where the land transitions from a gentle slope with open, sun-drenched benches, to quiet treed areas that provide natural shade and privacy. A seasonal stream trickles through the property, adding a peaceful element to the acreage. The lower level of the home is designed for versatility, featuring one bedroom, a large recreation room, and a separate entrance—an ideal setup for guests, adult children, or ageing parents. With a covered deck, extensive storage, and a detached shop, this property is perfectly livable and ready to be enjoyed indefinitely, or it can serve as a scenic home base while you design and build your dream home. Contact your local agent today to experience this perfect balance of comfort and future potential! (id:39198)
Property Details
Interior
Features
Lower level Floor
Recreation room
20' x 17'Bedroom
13' x 13'Property History
33





