14056 NORTH BLUFF ROAD, White Rock, British Columbia V4B3C3
Contact us about this property
Highlights
Estimated valueThis is the price Wahi expects this property to sell for.
The calculation is powered by our Instant Home Value Estimate, which uses current market and property price trends to estimate your home’s value with a 90% accuracy rate.Not available
Price/Sqft$1,217/sqft
Monthly cost
Open Calculator
Description
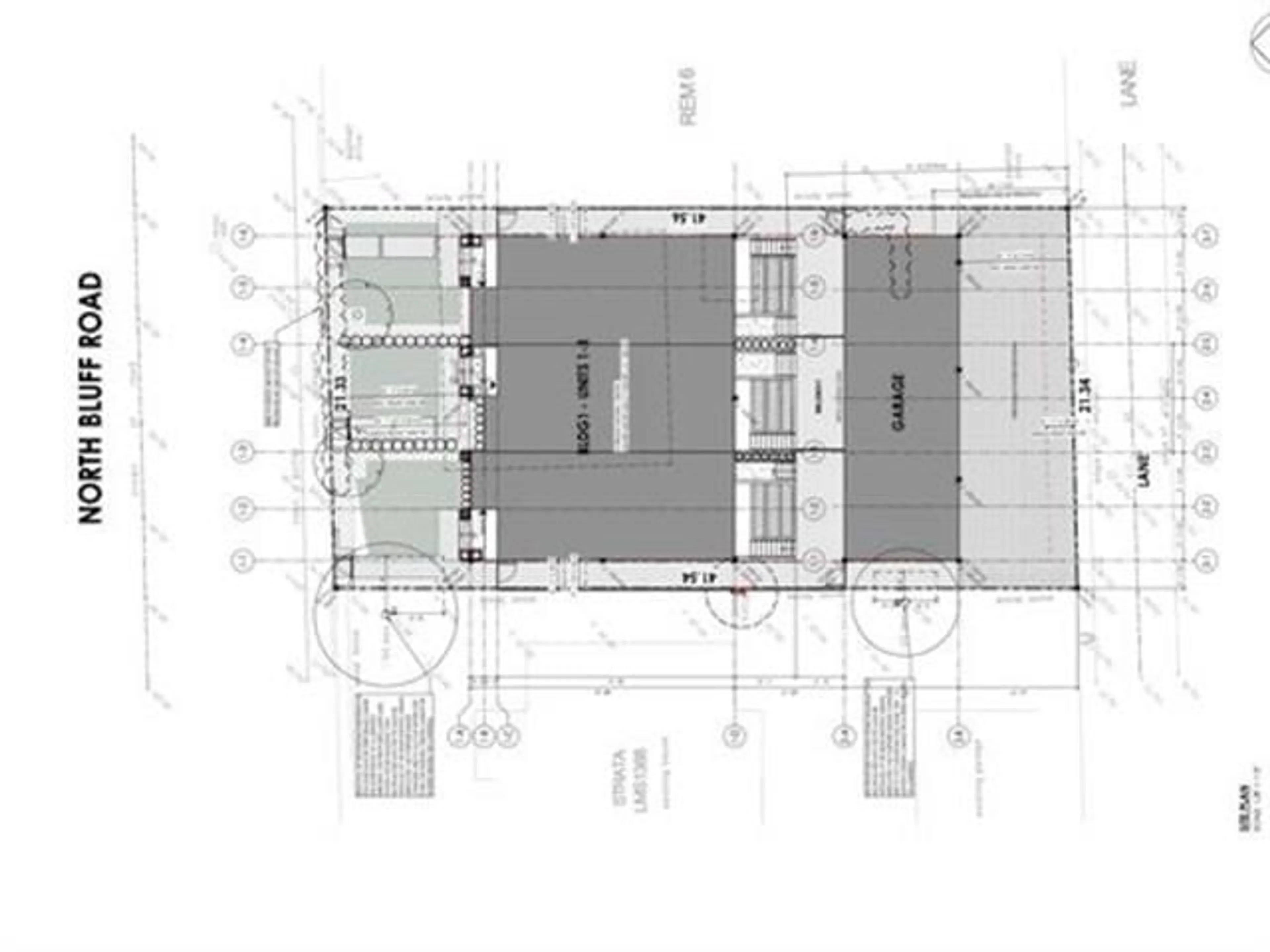
HOUSEPLEX Development Opportunity with up to 4 UNITS in White Rock! Situated on a rare lot allowing up to 4 units, this property features back lane access and a rooftop deck. Triplex plans have already been APPROVED by the City of White Rock. This prime development is just minutes from the iconic White Rock Pier and offers convenient access to transit. Additionally, it is located within the highly sought-after school catchment areas of Bayridge Elementary and Semiahmoo Secondary. Don't miss this exceptional investment opportunity! (id:39198)
Property Details
Interior
Features
Exterior
Parking
Garage spaces -
Garage type -
Total parking spaces 4
Property History
5





