303 - 5779 BIRNEY AVENUE, Vancouver, British Columbia V6S0A3
Contact us about this property
Highlights
Estimated valueThis is the price Wahi expects this property to sell for.
The calculation is powered by our Instant Home Value Estimate, which uses current market and property price trends to estimate your home’s value with a 90% accuracy rate.Not available
Price/Sqft$1,039/sqft
Monthly cost
Open Calculator
Description
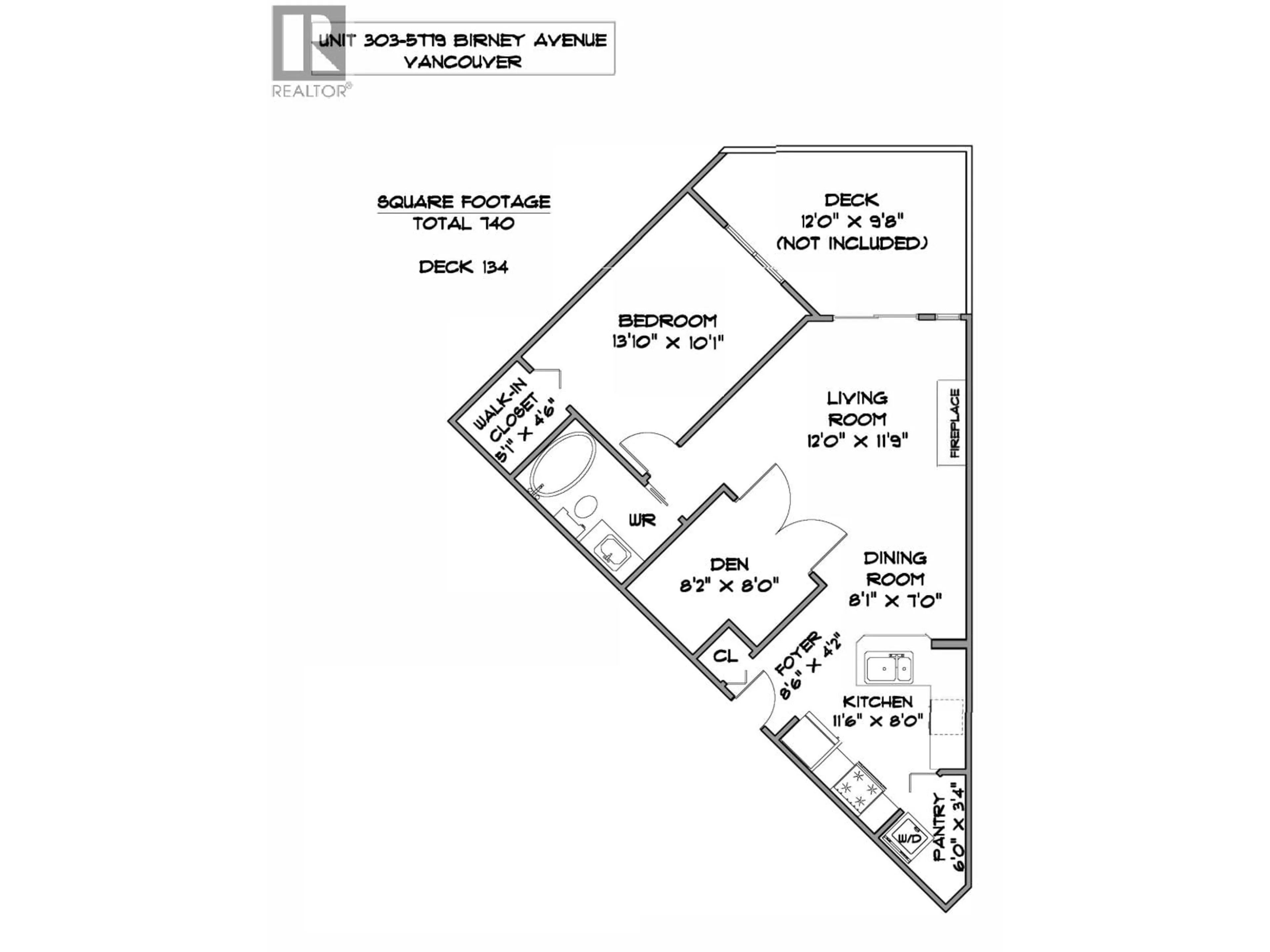
Pathways by Georgie award winning Adera Developments. Quality finished low rise concrete construction in the heart of UBC's Wesbrook neighbourhood .Steps to shopping, restaurants, community centre and minutes to U. Hill School. Large open layout plan 1 bedroom and den with great balcony complete with lovely courtyard outlook. Open kitchen with stainless steel appliances, gas cooking, breakfast bar, maple cabinets, and extra storage / laundry / pantry. Cozy living area with gas fireplace and formal dining area. Great primary suite with walk-in closet. 1 parking + TWO storage lockers. Super charming! (id:39198)
Property Details
Interior
Features
Exterior
Parking
Garage spaces -
Garage type -
Total parking spaces 1
Condo Details
Amenities
Recreation Centre, Laundry - In Suite
Inclusions
Property History
29




