8470 166A STREET, Surrey, British Columbia V4N4Z4
Contact us about this property
Highlights
Estimated valueThis is the price Wahi expects this property to sell for.
The calculation is powered by our Instant Home Value Estimate, which uses current market and property price trends to estimate your home’s value with a 90% accuracy rate.Not available
Price/Sqft$609/sqft
Monthly cost
Open Calculator
Description
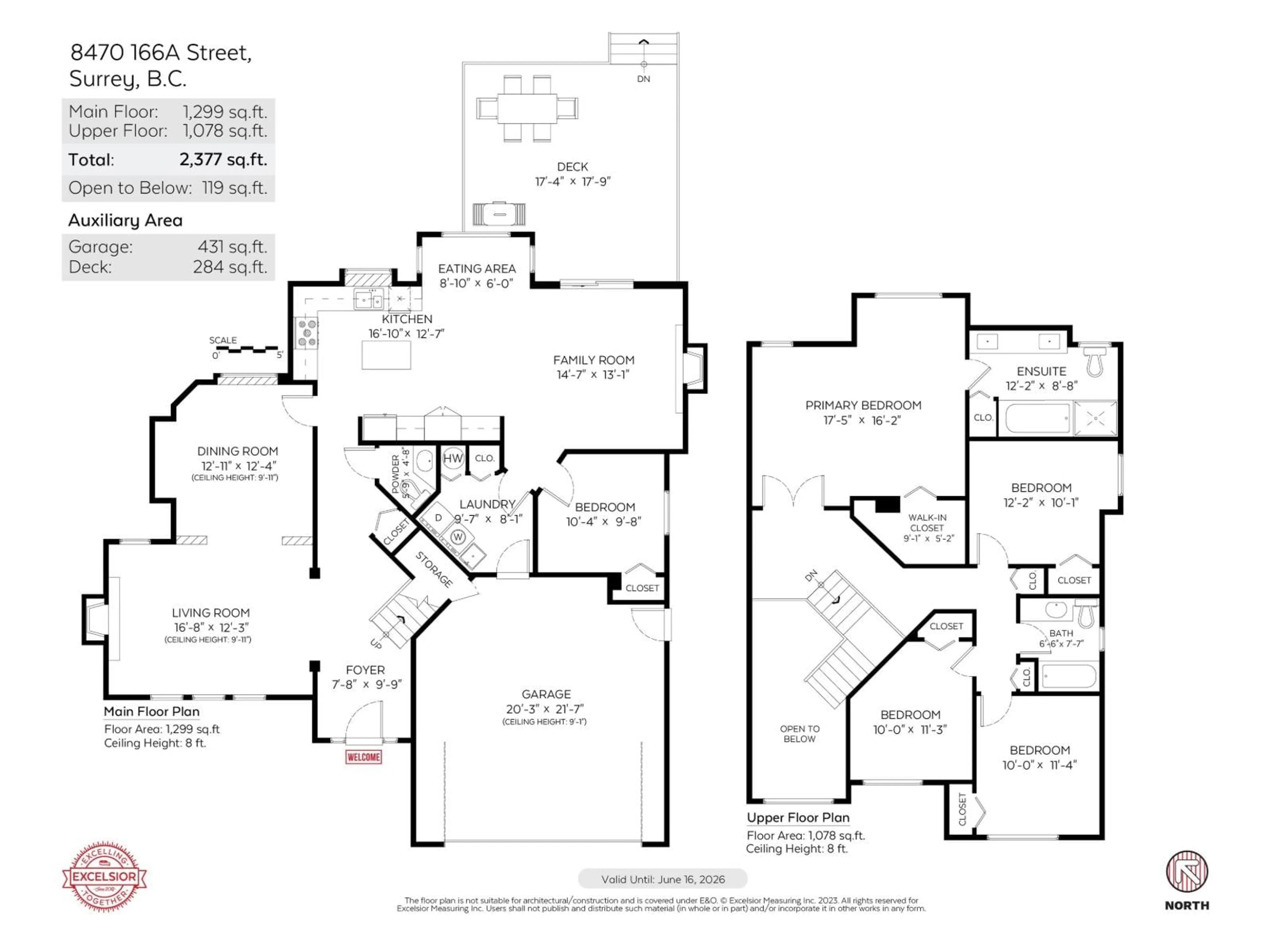
This meticulously maintained 2 level home sits on a 6107 sq ft lot in a fantastic neighbourhood. Perfect for growing families, this home boasts 5 bedrooms. 4 upstairs & 1 on the main floor which also makes a great home office. Updated roof, furnace, air conditioning and hot water on demand for added convenance ensuring comfort and peace of mind for years to come! Spacious layout with beautiful formal living room & dining area for family gatherings. Spacious rooms upstairs w large master suite and bonus ensuite bathroom. Double sinks, soaker tub & glass shower to wind down. Kitchen & family area are fantastic to prepare your dinner and head out back onto the private patio for entertaining. Large Driveway for your trailer & toys. Footsteps to parks & more. Mr. & Mrs. Clean live here! (id:39198)
Property Details
Interior
Features
Exterior
Parking
Garage spaces -
Garage type -
Total parking spaces 6
Property History
40




