19294 78 AVENUE, Surrey, British Columbia V4N6C7
Contact us about this property
Highlights
Estimated valueThis is the price Wahi expects this property to sell for.
The calculation is powered by our Instant Home Value Estimate, which uses current market and property price trends to estimate your home’s value with a 90% accuracy rate.Not available
Price/Sqft$791/sqft
Monthly cost
Open Calculator
Description
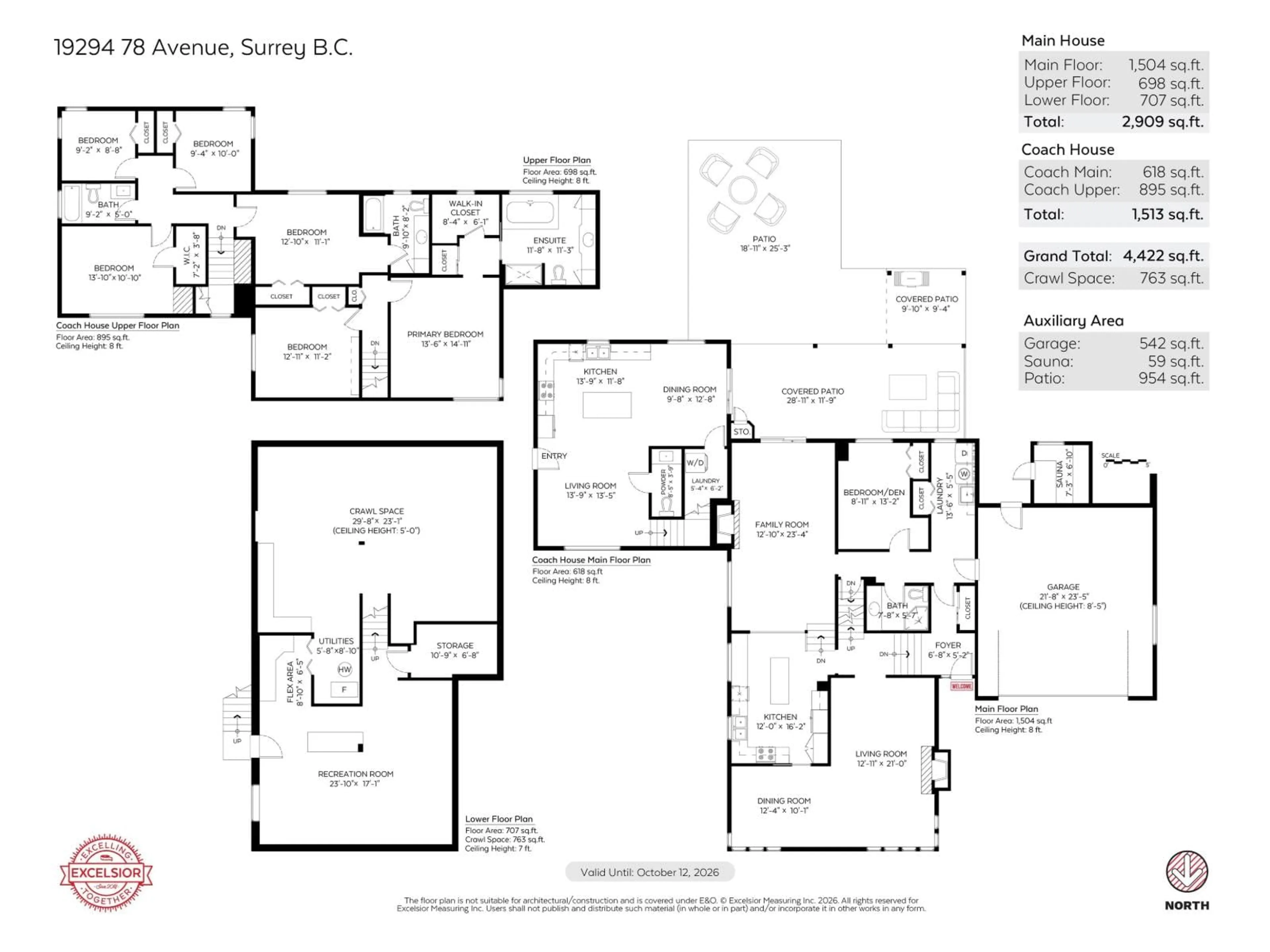
Prime 1.19 acre property on a quiet street in a sought after location. This beautifully updated legal duplex style home offers exceptional flexibility as a strong investment or ideal multifamily residence. With 7 bedrooms, 5 bathrooms and over 4.400 sq ft, the layout provides spacious living on all levels. Multiple kitchens, generous living area and private spaces make it perfect for extended family. Ample parking, double garage and fantastic outbuildings add to the value. A rare opportunity offering space, income potential and long term upside in a prime setting. (id:39198)
Property Details
Interior
Features
Exterior
Parking
Garage spaces -
Garage type -
Total parking spaces 12
Property History
40



