15 days on Market
6726 133 STREET, Surrey, British Columbia V3W7J6
Detached
4
2
~1948 sqft
$899,000
Get pre-qualifiedPowered by nesto
Detached
4
2
~1948 sqft
Contact us about this property
Highlights
Days on market15 days
Estimated valueThis is the price Wahi expects this property to sell for.
The calculation is powered by our Instant Home Value Estimate, which uses current market and property price trends to estimate your home’s value with a 90% accuracy rate.Not available
Price/Sqft$461/sqft
Monthly cost
Open Calculator
Description
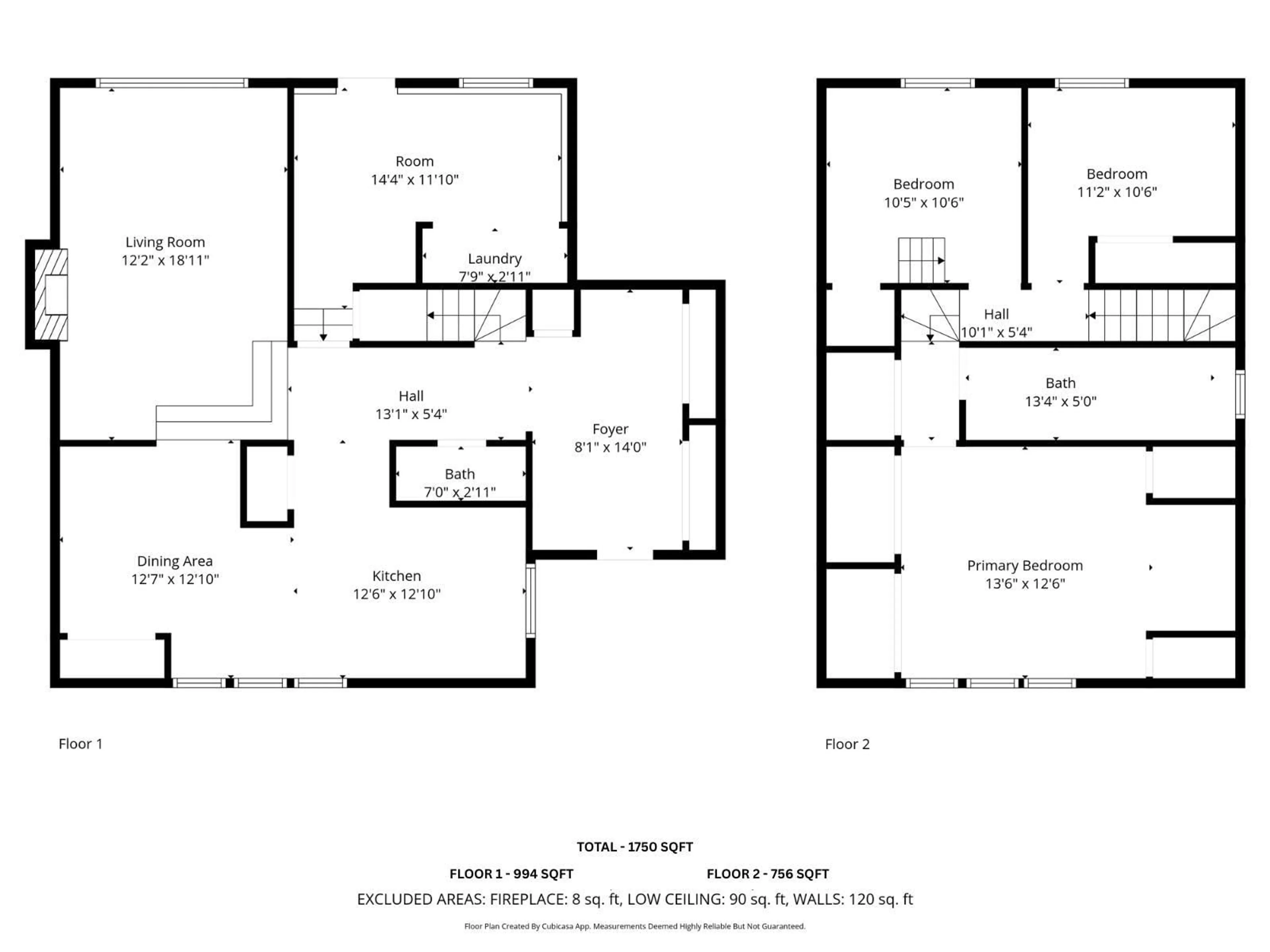
Over 100k below Assessment. Perfect starter home for a family or buy as a great investment. Home is situated on a level lot with a private backyard which backs onto Pioneer Park. This home is within walking distance of both elementary and secondary schools. The home has 4 bedrooms and 2 washrooms, and has the possibility to add a suite to generate income. Open house Friday, Jan 30, 2-4 pm. (id:39198)
Property Details
StyleHouse
View-
Age of property1979
SqFt~1948 SqFt
Lot Size-
Parking Spaces-
MLS ®NumberR3078204
Community NameSurrey
Data SourceCREA
Listing byeXp Realty of Canada, Inc.
Interior
Features
Heating: Baseboard heaters, Electric
Basement: None, Unknown, Unknown
Property History
Jan 14, 2026
ListedActive
$899,000
15 days on market
23Listing by crea®
23Property listed by eXp Realty of Canada, Inc., Brokerage

Interested in this property?Get in touch to get the inside scoop.





