36 - 13670 62 AVENUE, Surrey, British Columbia V3X0H8
Contact us about this property
Highlights
Estimated valueThis is the price Wahi expects this property to sell for.
The calculation is powered by our Instant Home Value Estimate, which uses current market and property price trends to estimate your home’s value with a 90% accuracy rate.Not available
Price/Sqft$514/sqft
Monthly cost
Open Calculator
Description
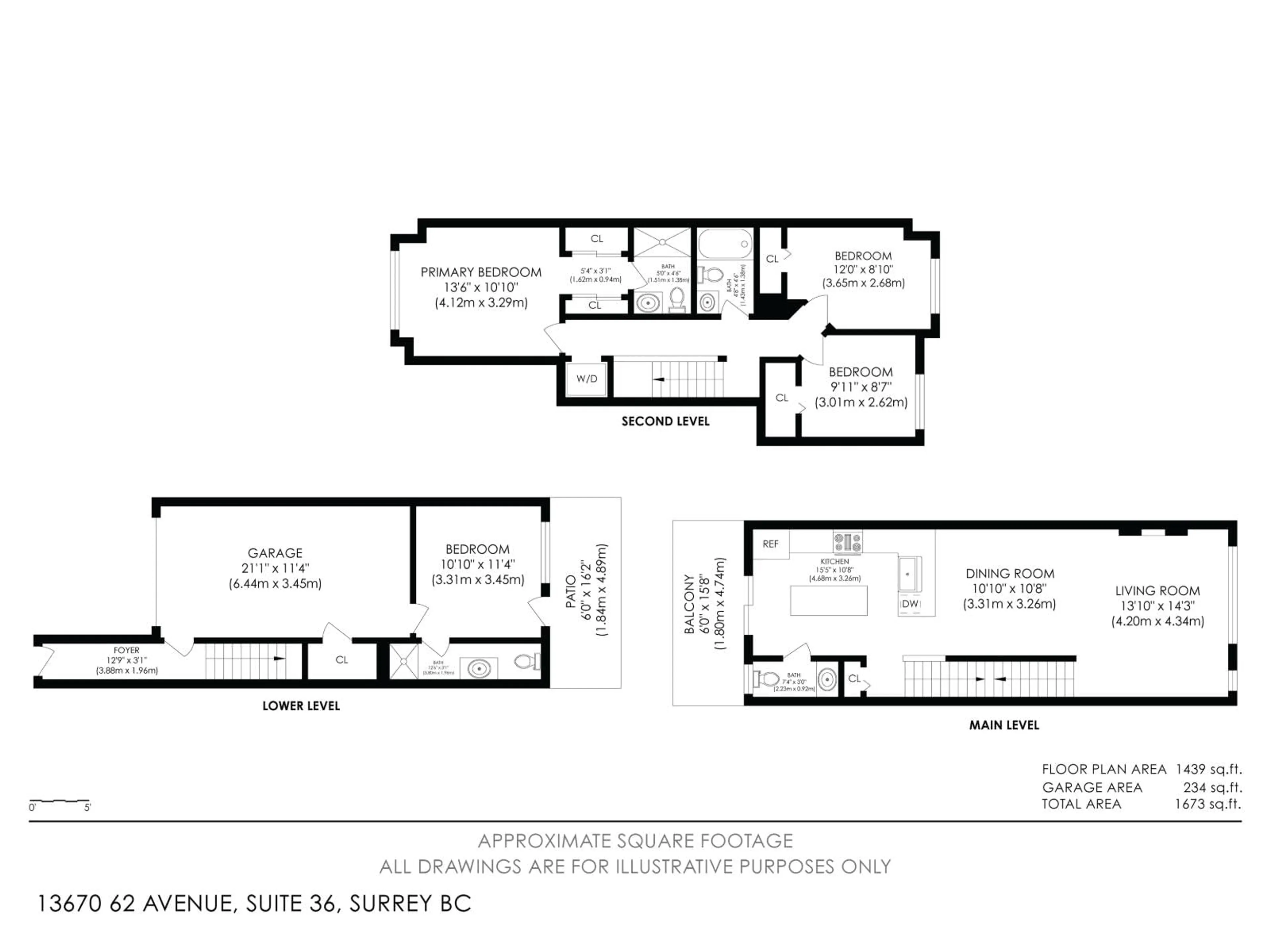
This beautiful sought after 3 story townhouse features 4 bedroom, 4 bathroom right in the heart of Sullivan heights. This home has large windows, high ceilings and a beautiful and Serene Back yard. Spacious & modern kitchen countertops, cabinets, & S/S appliances. Outside includes tandem parking, perfect for 2 cars. This townhouse is steps away from King George Blvd & public transit. Close to Hwy 10. Close proximity to schools, supermarkets, restaurants! Book now for your private viewing!Open House on 4th and 5th April (Saturday & Sunday) 2pm to 4 pm. (id:39198)
Property Details
Interior
Features
Condo Details
Amenities
Laundry - In Suite, Clubhouse
Inclusions
Property History
37





