13193 COULTHARD ROAD, Surrey, British Columbia V3X3E5
Contact us about this property
Highlights
Estimated valueThis is the price Wahi expects this property to sell for.
The calculation is powered by our Instant Home Value Estimate, which uses current market and property price trends to estimate your home’s value with a 90% accuracy rate.Not available
Price/Sqft$441/sqft
Monthly cost
Open Calculator
Description
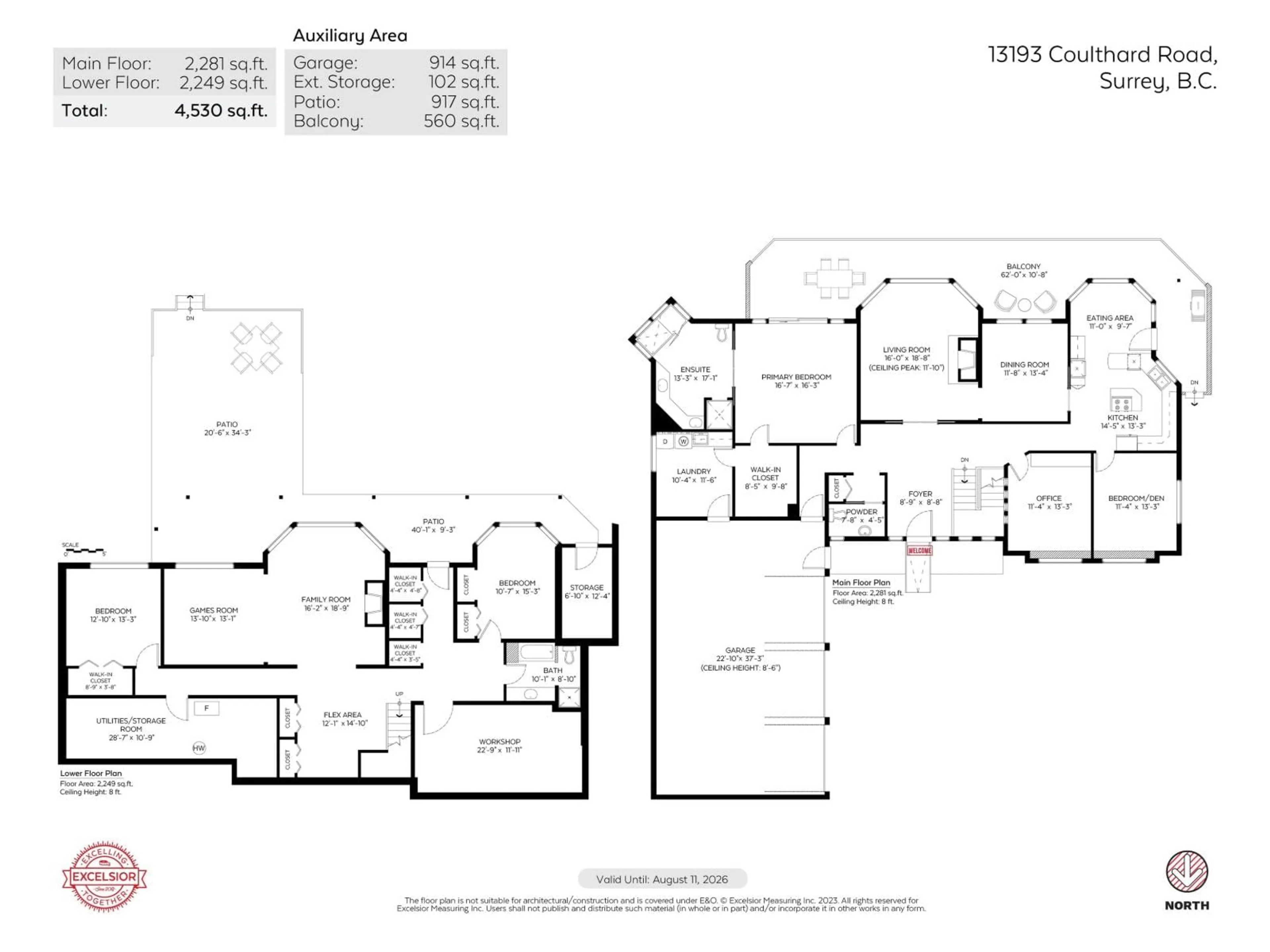
Situated on a pristine half-acre ocean view lot, this Rancher offers spacious, single-level living with a walk out basement. This sprawling 4,530 sq. ft. home was designed by its original owner and is ready for its new people to call home. Wake up to the beautiful ocean views and enjoy spectacular sunsets from your private oasis. The massive floor plan provides an incredible canvas for entertaining, featuring oversized rooms. For the hobbyist the property boasts a triple-car garage, workshop in basement and extensive RV parking for all your toys. Great open living room with vaulted ceilings. Basement has great potential for inlaw suite. Located on one of the area's most coveted neighbourhoods and surrounded by million dollar homes! (id:39198)
Property Details
Interior
Features
Exterior
Parking
Garage spaces -
Garage type -
Total parking spaces 8
Property History
40




