25700 116 AVENUE, Maple Ridge, British Columbia V4R1Z6
Contact us about this property
Highlights
Estimated valueThis is the price Wahi expects this property to sell for.
The calculation is powered by our Instant Home Value Estimate, which uses current market and property price trends to estimate your home’s value with a 90% accuracy rate.Not available
Price/Sqft$500/sqft
Monthly cost
Open Calculator
Description
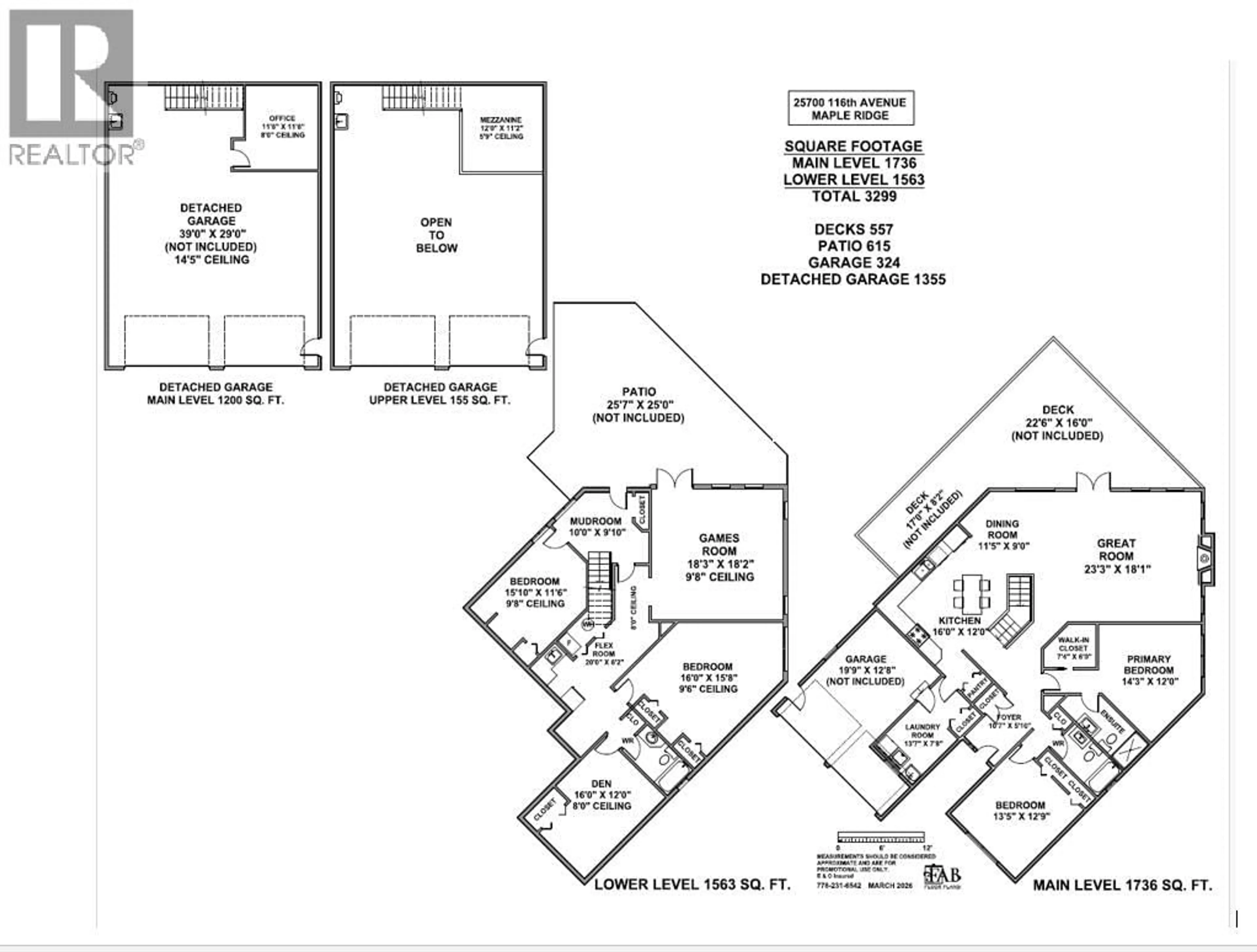
Spacious family home in the quiet community of Websters Corners. Set on a private SOUTH 1.11-acre lot backing onto Kanaka Creek Regional Park, this property offers space, privacy, and flexibility. Open-concept kitchen and living plan, accented by durable slate flooring and a striking custom stone fireplace. 4 bedrooms and 3 bathrooms with 2 bedrooms up and 2 & den down, including a main-floor primary with walk-in closet and ensuite. The walk-out basement offers great potential for extended family or a future suite. Large games room, covered patio area. New windows, new hot water tank, and poly-B plumbing replaced add peace of mind. The large detached shop with 240V power, heated office, & mezzanine is perfect for vehicles, hobbies, or storage. A rare acreage opportunity close to town (id:39198)
Property Details
Interior
Features
Exterior
Parking
Garage spaces -
Garage type -
Total parking spaces 10
Property History
40





