637 ALPINE COURT, North Vancouver, British Columbia V7R2L7
Contact us about this property
Highlights
Estimated valueThis is the price Wahi expects this property to sell for.
The calculation is powered by our Instant Home Value Estimate, which uses current market and property price trends to estimate your home’s value with a 90% accuracy rate.Not available
Price/Sqft$899/sqft
Monthly cost
Open Calculator
Description
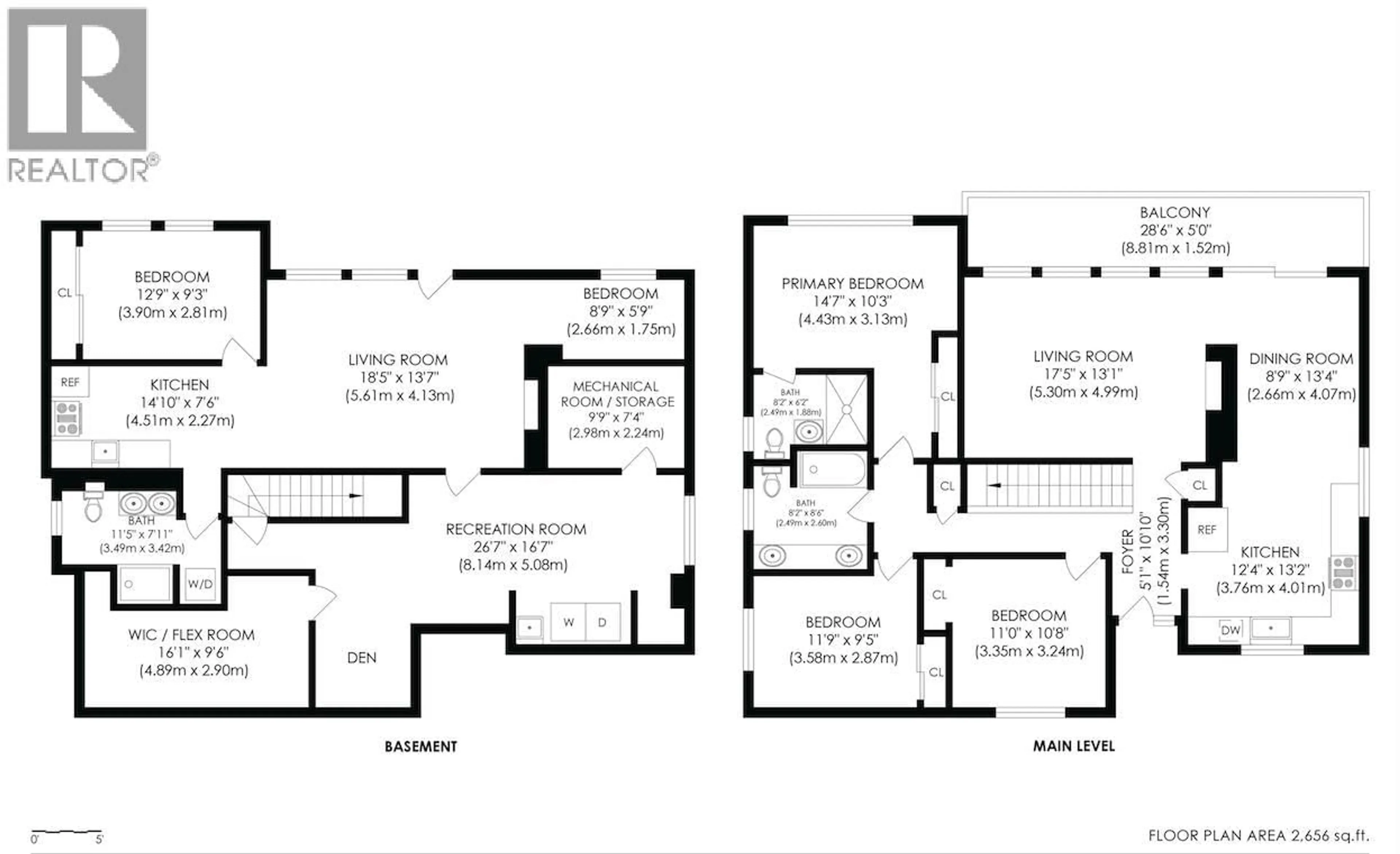
Views for a lifetime on one of North Vancouver´s most charming streets. This beautifully updated home is ideally positioned on Alpine Court in prestigious Canyon Heights and has been lovingly maintained by long-time owners. Offering 5 bedrooms, 3 bathrooms, ample storage, and generous recreation space, the layout is perfect for both families and entertainers. Enjoy a spectacular 180-degree view patio, ideal for hosting and taking in breathtaking scenery. The bright authorized garden-level suite with separate entrance adds flexibility, while the meticulously landscaped backyard completes this special property. A comprehensive list of updates provides confidence and peace of mind. A must-see home, best appreciated in person. Book your private showing today. (id:39198)
Property Details
Interior
Features
Exterior
Parking
Garage spaces -
Garage type -
Total parking spaces 4
Property History
40





