415 - 2978 BURLINGTON DRIVE, Coquitlam, British Columbia V3B7S6
Contact us about this property
Highlights
Estimated valueThis is the price Wahi expects this property to sell for.
The calculation is powered by our Instant Home Value Estimate, which uses current market and property price trends to estimate your home’s value with a 90% accuracy rate.Not available
Price/Sqft$755/sqft
Monthly cost
Open Calculator
Description
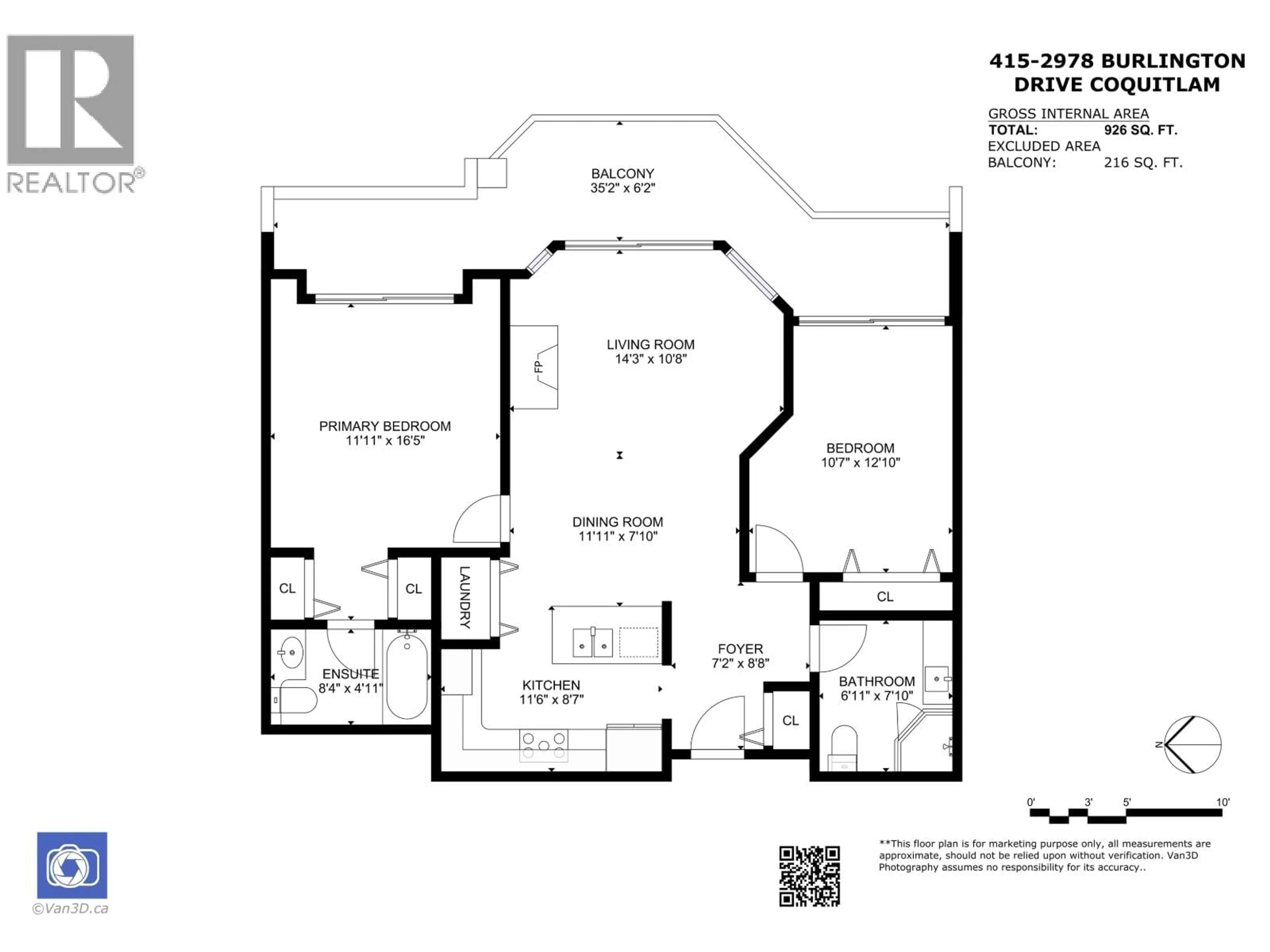
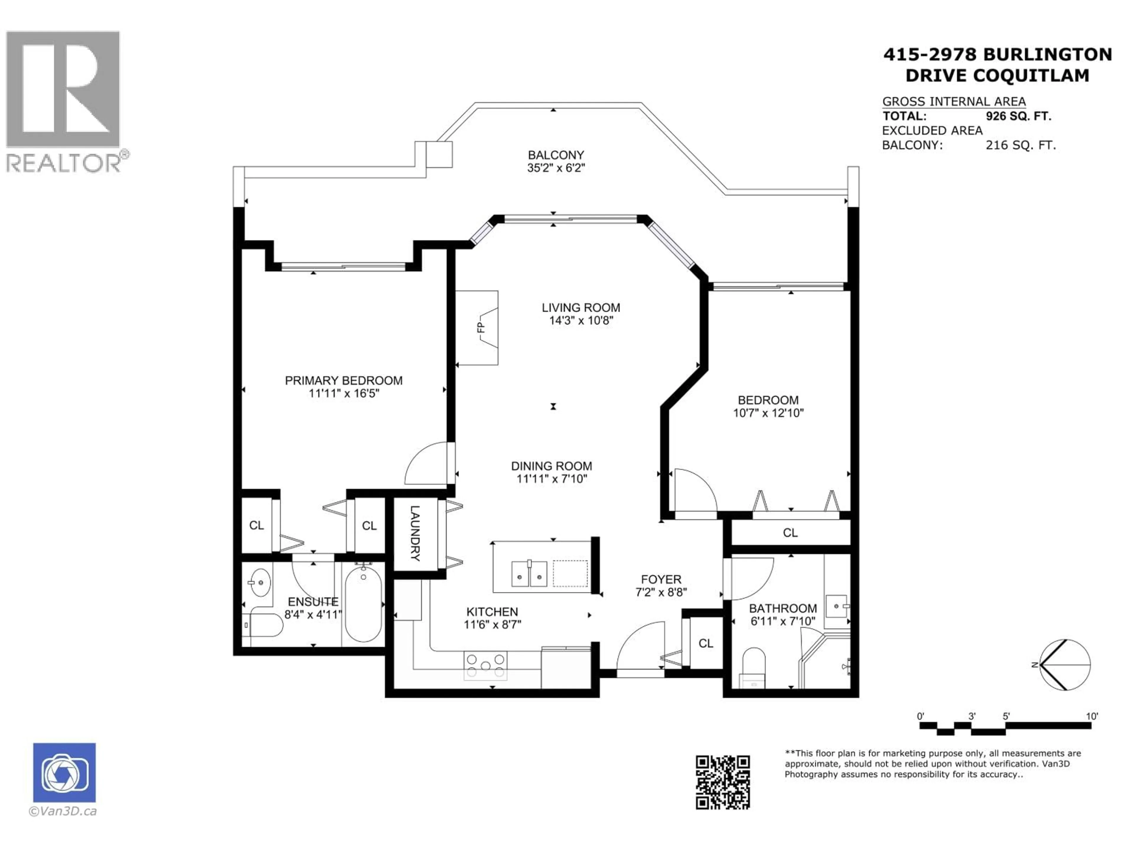
Top floor at "The Burlington" where convenience meets lifestyle.You´re not just investing in a home you´re investing in effortless living with transit, amenities, and community all at your doorstep.With three SkyTrain stations within a short 10-minute walk, commuting is seamless and stress-free,Perfect for families.This home is surrounded by excellent schools, all within a 15-minute radius:Glen Elementary,Maple Creek Middle School, Pinetree Secondary.We invite you to visit both day and night to truly appreciate this exceptional location and to experience the breathtaking Coquitlam city lights for yourself. Kitchen upgraded with NEW Cabinets & Countertop. Bathroom New Countertop, Cabinets & Lighting. Textured Ceiling, Balcony access from every room.Same owner last 23 years, Welcome Home! (id:39198)
Property Details
Interior
Features
Exterior
Parking
Garage spaces -
Garage type -
Total parking spaces 1
Condo Details
Amenities
Exercise Centre, Laundry - In Suite
Inclusions
Property History
28




