2605 - 3008 GLEN DRIVE, Coquitlam, British Columbia V3B0J5
Contact us about this property
Highlights
Estimated valueThis is the price Wahi expects this property to sell for.
The calculation is powered by our Instant Home Value Estimate, which uses current market and property price trends to estimate your home’s value with a 90% accuracy rate.Not available
Price/Sqft$865/sqft
Monthly cost
Open Calculator
Description
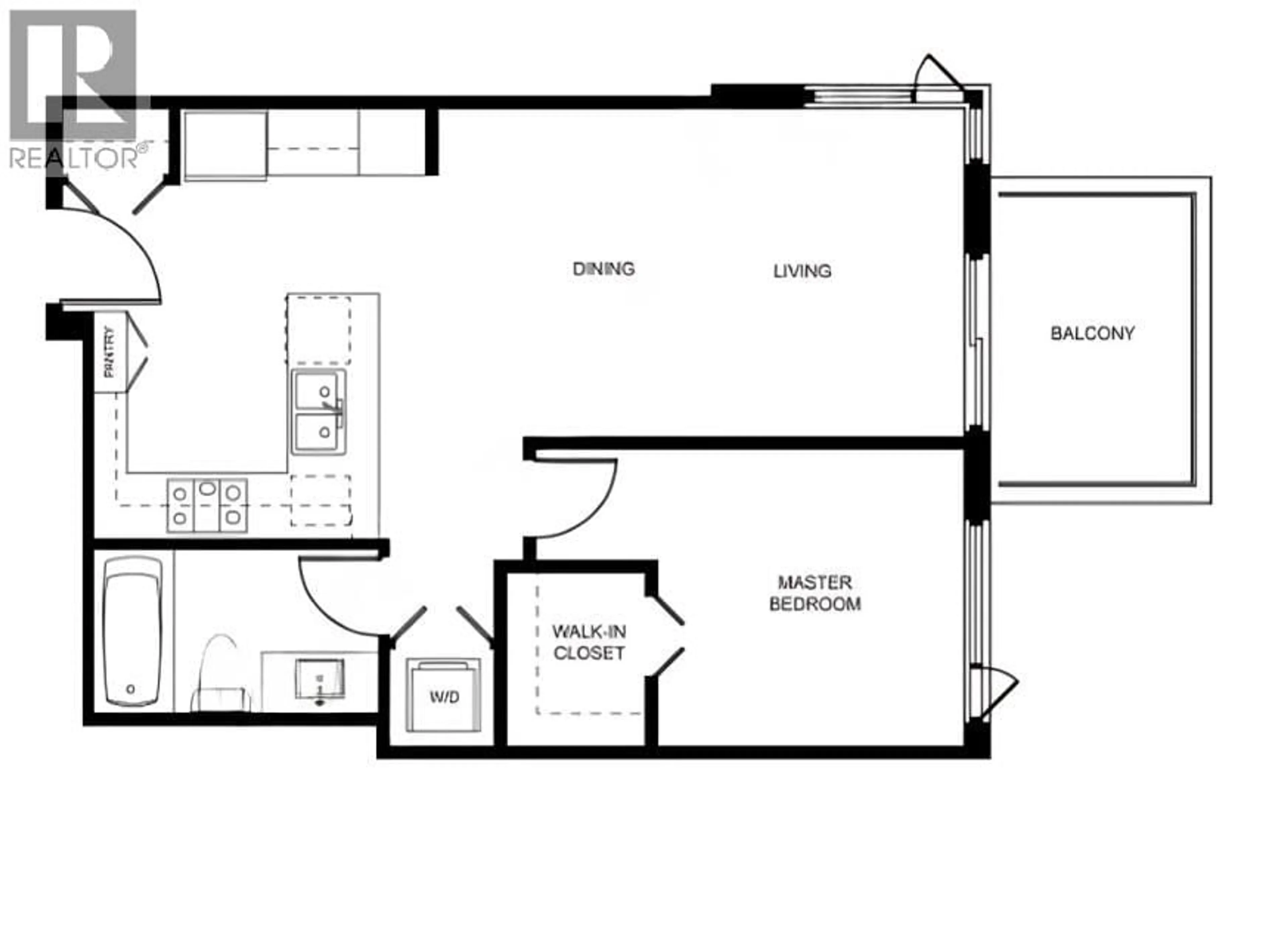
Welcome to M-TWO by Cressey in the heart of Coquitlam Town Centre! This 26th-floor corner unit luxury condo offers breathtaking 180 degree panoramic north east views of the city, mountains and skyline. Features include a gourmet Cressey kitchen with gas cooktop, quartz counters, in-suite laundry, and modern finishes. The building offers top-tier amenities: gym, lounge, garden, and more. Steps to Lincoln Skytrain, Coquitlam Centre, Glen Elementary, Pinetree Secondary, Douglas College, library and Lafarge Lake. Enjoy upscale urban living in one of Coquitlam's most desirable locations. The tenant will move out October 1, 2025. Book your private tour today! (id:39198)
Property Details
Interior
Features
Exterior
Parking
Garage spaces -
Garage type -
Total parking spaces 1
Condo Details
Amenities
Exercise Centre
Inclusions
Property History
38





