414 - 725 MARINE DRIVE, North Vancouver, British Columbia V7M0G2
Contact us about this property
Highlights
Estimated valueThis is the price Wahi expects this property to sell for.
The calculation is powered by our Instant Home Value Estimate, which uses current market and property price trends to estimate your home’s value with a 90% accuracy rate.Not available
Price/Sqft$848/sqft
Monthly cost
Open Calculator
Description
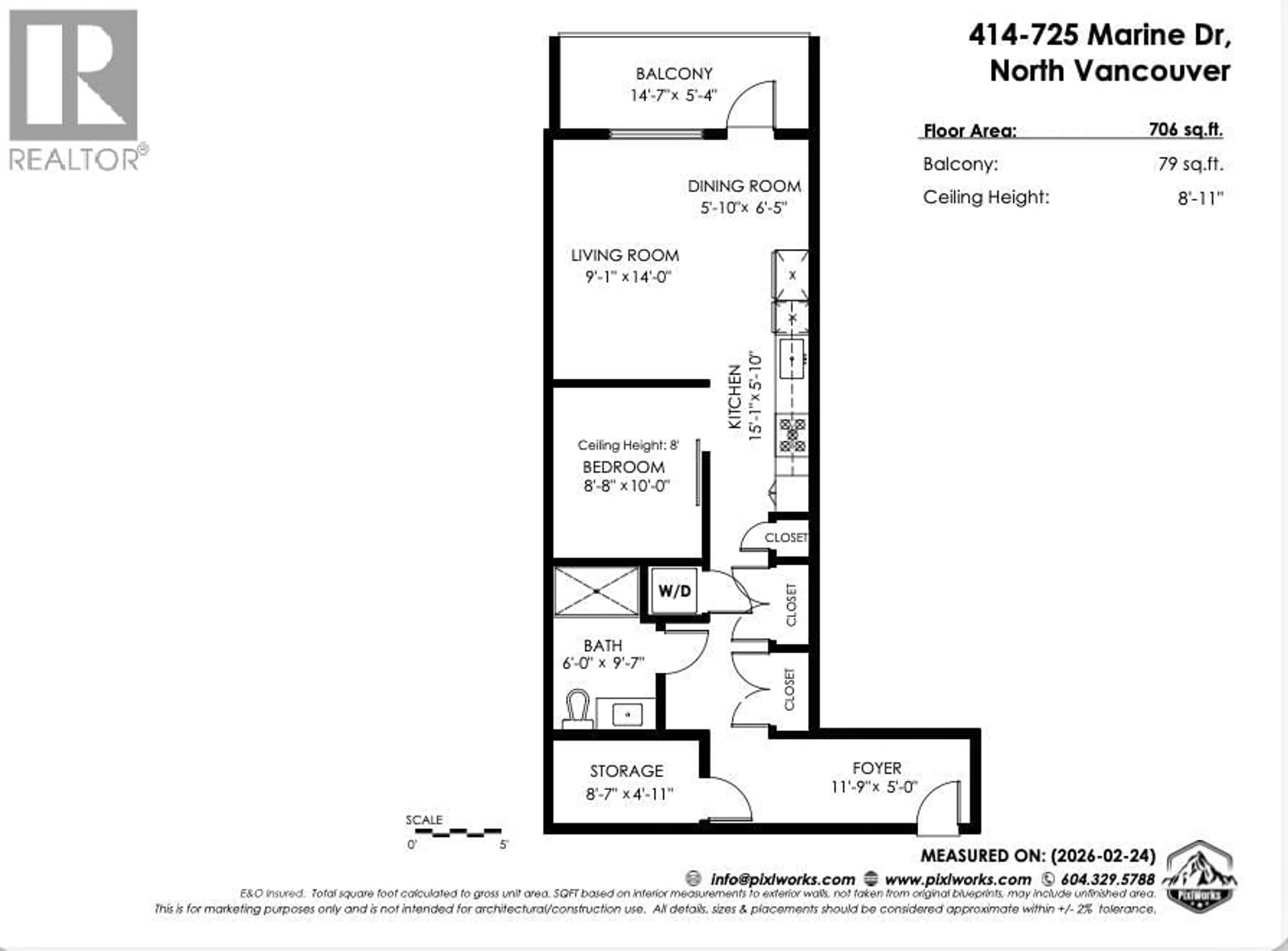
Experience mountain views and exceptional value at Marine + Fell by Anthem. This surprisingly quiet 1 bedroom + den end unit features 9´ ceilings, quartz countertops, flat-panel cabinetry and stainless steel appliances including a gas range. Honey-toned laminate flooring with in-floor radiant heat adds everyday comfort. Enjoy a highly walkable location steps to groceries, cafés, parks, trails, gyms and the R2 RapidBus. Includes 1 parking and 1 storage. Amenities: party room, bike room and car wash. Pets and rentals allowed. EV ready (fee). 2-5-10 warranty remaining. Open House Sat (March 21) from 1-3pm and Sun (March 22) from 2-4pm. (id:39198)
Property Details
Interior
Features
Exterior
Parking
Garage spaces -
Garage type -
Total parking spaces 1
Condo Details
Amenities
Laundry - In Suite
Inclusions
Property History
19





