PH7 - 1288 CHESTERFIELD AVENUE, North Vancouver, British Columbia V7M0B1
Contact us about this property
Highlights
Estimated valueThis is the price Wahi expects this property to sell for.
The calculation is powered by our Instant Home Value Estimate, which uses current market and property price trends to estimate your home’s value with a 90% accuracy rate.Not available
Price/Sqft$939/sqft
Monthly cost
Open Calculator
Description
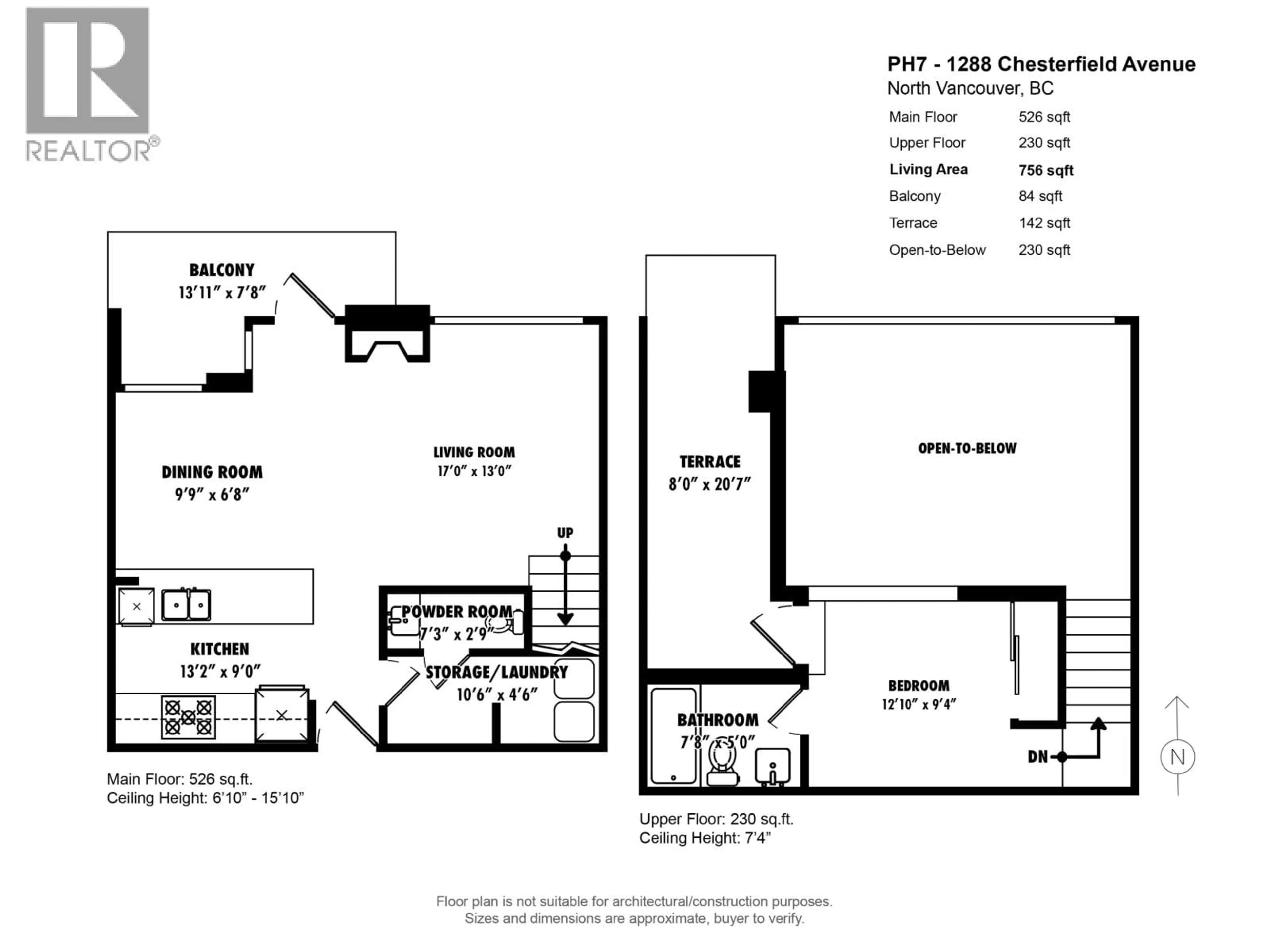
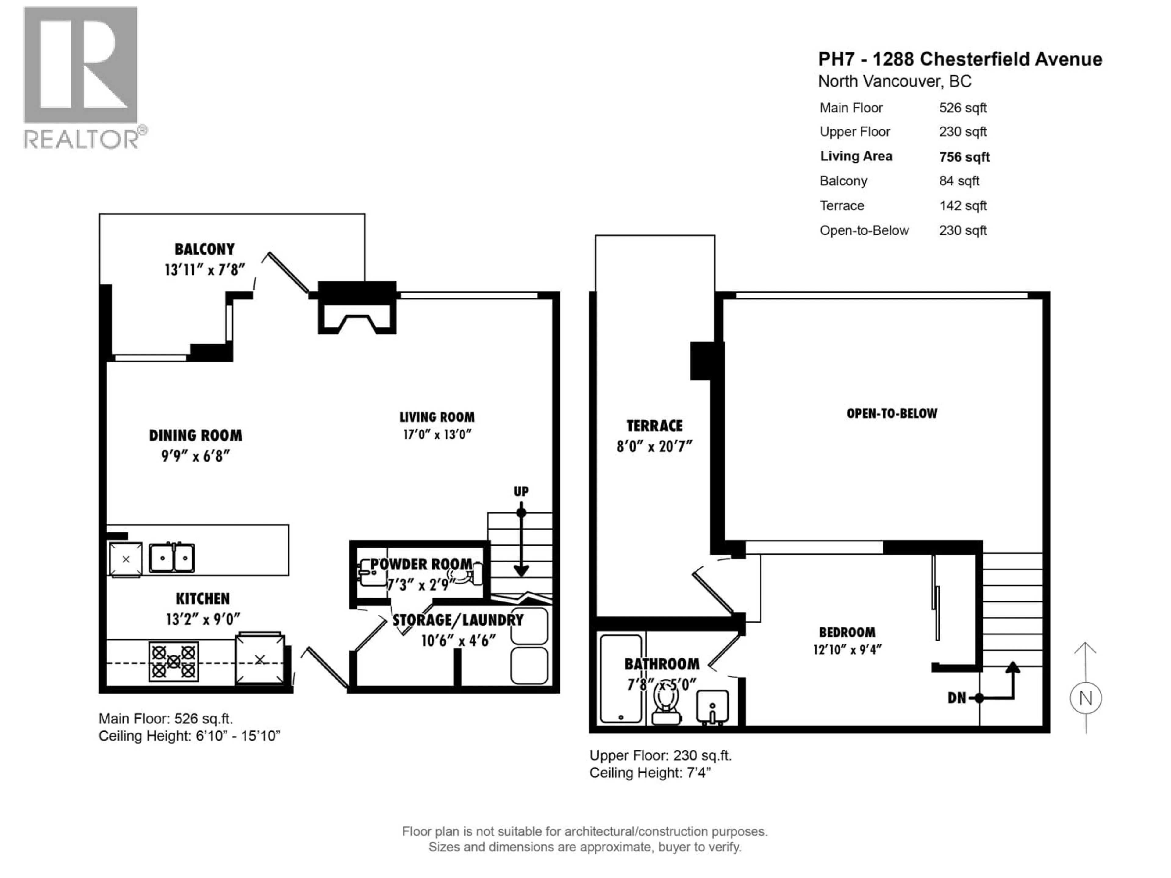
Elevated penthouse loft living at Alina, a concrete boutique building in the heart of vibrant Lonsdale. This top-floor 1 bed, 1.5 bath home offers soaring ceilings and is flooded with natural light. The open yet functional layout includes a dedicated dining space, in-suite laundry and generous storage. Enjoy year-round comfort with air conditioning, a cozy gas fireplace, complete with mountain and partial water views, and the rare luxury of two private outdoor spaces. Parking and a storage locker are included. Steps to Whole Foods, acclaimed restaurants, shops, cafes and excellent transit. A standout penthouse in one of North Vancouver´s most walkable and dynamic communities. (id:39198)
Property Details
Interior
Features
Exterior
Parking
Garage spaces -
Garage type -
Total parking spaces 1
Condo Details
Amenities
Laundry - In Suite
Inclusions
Property History
22






