203 18TH STREET, North Vancouver, British Columbia V7L2X7
Contact us about this property
Highlights
Estimated valueThis is the price Wahi expects this property to sell for.
The calculation is powered by our Instant Home Value Estimate, which uses current market and property price trends to estimate your home’s value with a 90% accuracy rate.Not available
Price/Sqft$803/sqft
Monthly cost
Open Calculator
Description
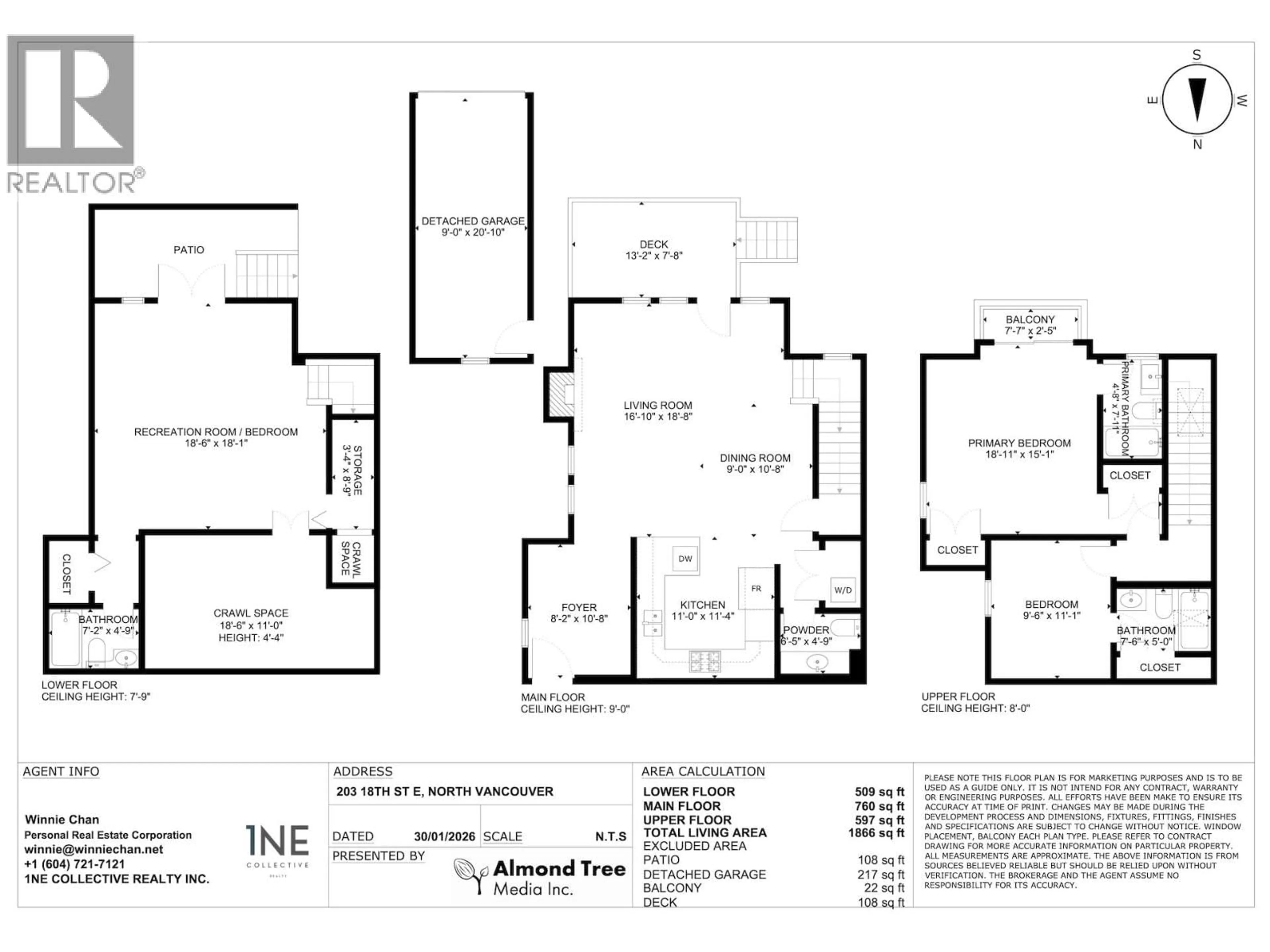
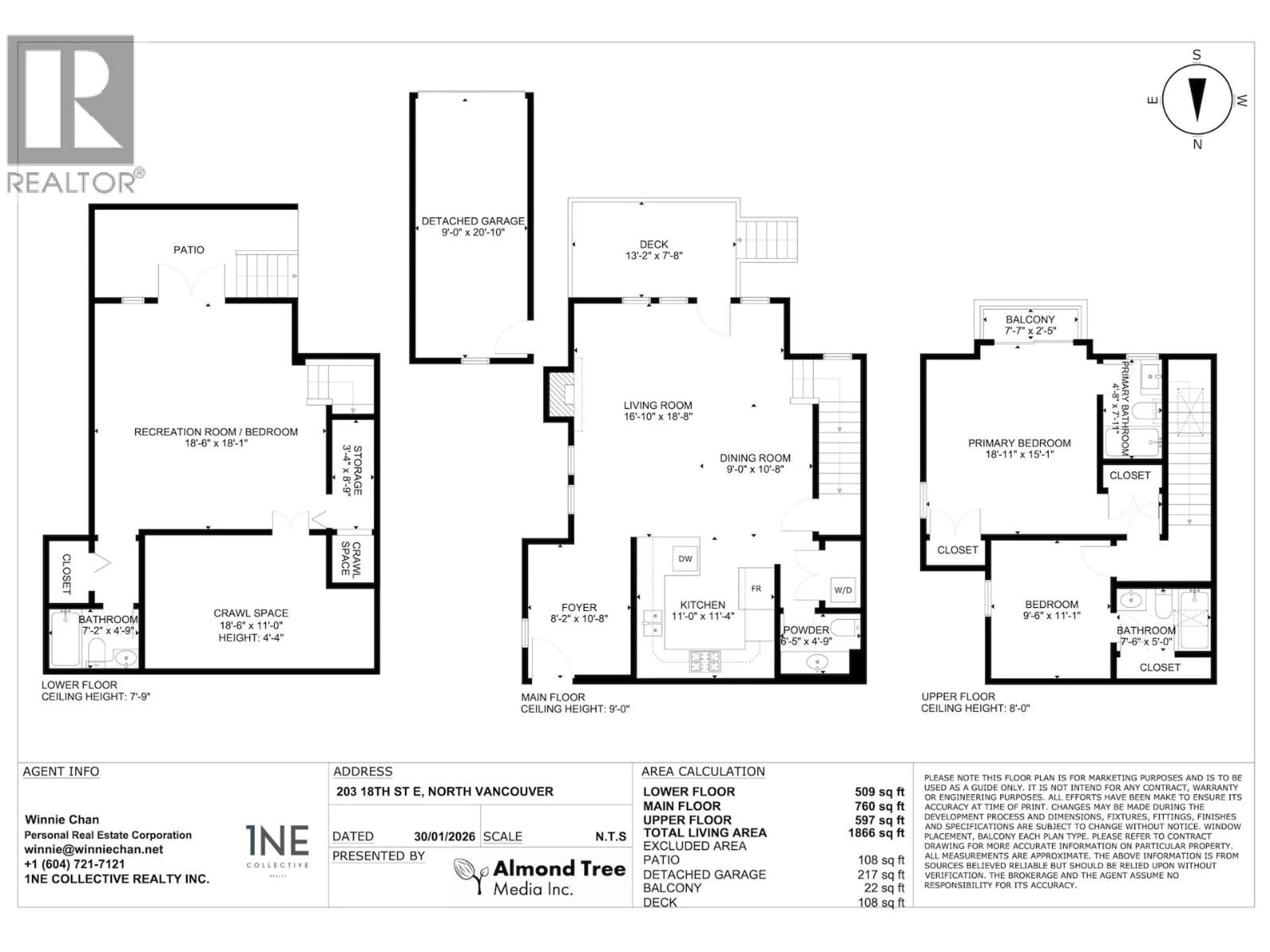
Welcome home to this bright, south-facing back unit in a rarely available 4-plex, offering privacy and ample outdoor spaces - fully fenced yard, patio, and balcony! Located just steps away from all amenities including shops, restaurants, schools (Queensbury/Sutherland catchment), parks, and transit. Main floor features 9´ ceilings, hardwood flooring, air conditioning, granite countertops and radiant in-floor heating throughout home. Upstairs include two oversized bedrooms, while primary bedroom offers his-and-her closets, plus 3.5 bathrooms throughout the home! The lower-level functions as a rec room or a third large primary bedroom with its own private entry and patio (roughed-in and ready for in-laws too). A detached garage and other parking available. (id:39198)
Property Details
Interior
Features
Exterior
Parking
Garage spaces -
Garage type -
Total parking spaces 1
Condo Details
Inclusions
Property History
30




