1004 - 6823 STATION HILL DRIVE, Burnaby, British Columbia V3N0A9
Contact us about this property
Highlights
Estimated valueThis is the price Wahi expects this property to sell for.
The calculation is powered by our Instant Home Value Estimate, which uses current market and property price trends to estimate your home’s value with a 90% accuracy rate.Not available
Price/Sqft$908/sqft
Monthly cost
Open Calculator
Description
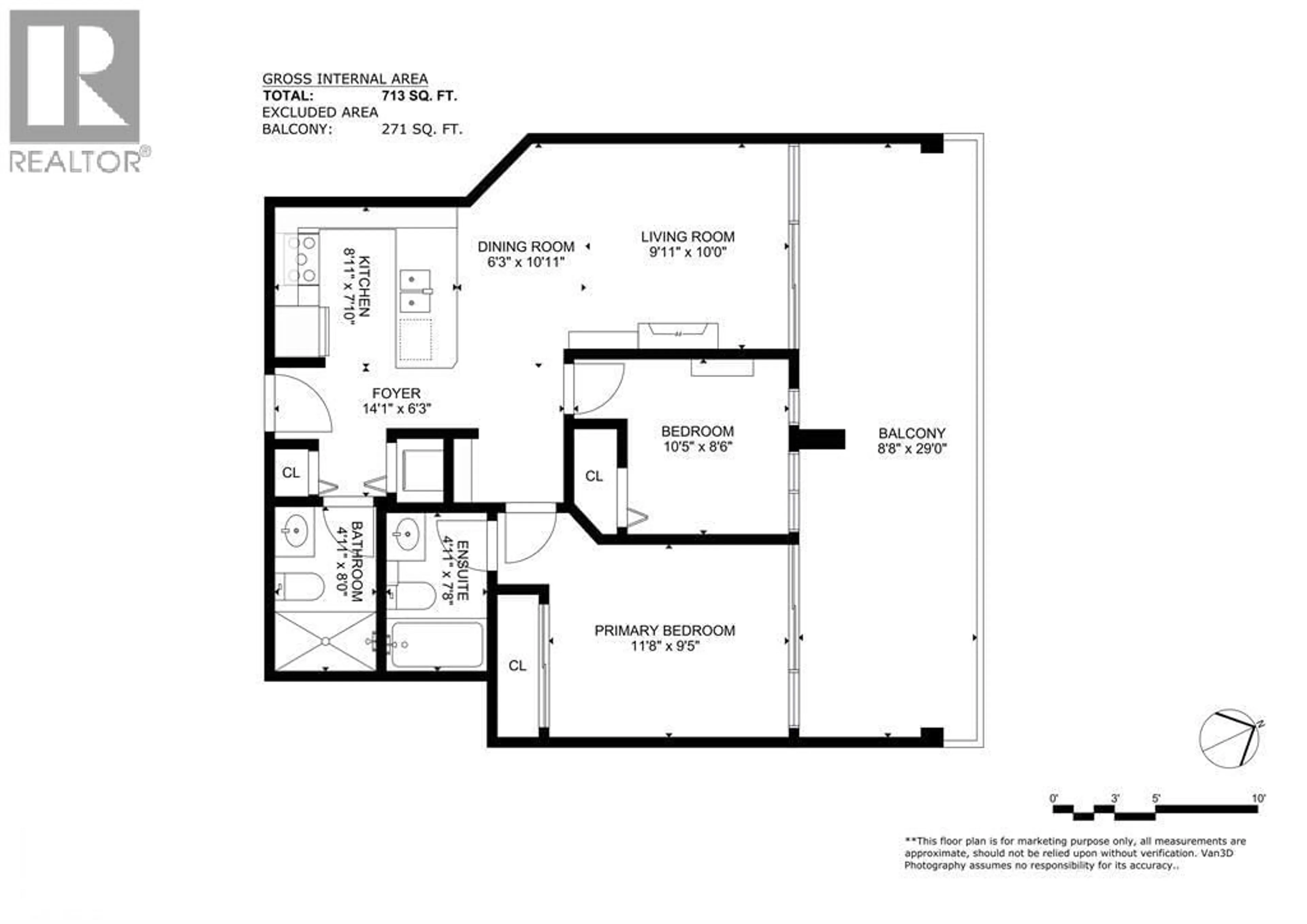
Belvedere - The Final Chapter of City-in-the-Park! Nestled within a lush greenbelt, this beautiful and quiet NE facing 2 bed, 2 bath home offers stunning views of the park and gardens, complemented by a spacious 245 sf balcony. Enjoy luxury living with high-quality finishes, including granite countertops, a stylish kitchen with new S/S appliances and freshly painted. Features include new SPC vinyl flooring throughout, new roller blinds, new laundry centre, 1 parking stall, and 1 storage locker. Amenities include a fitness centre, hot tub, steam room, theatre room, library & more. Conveniently located just steps from Edmonds SkyTrain, Byrne Creek Secondary and Taylor Park Elementary. Minutes from Highgate Village and Metrotown. Explore scenic trails. This home is a must-see! (id:39198)
Property Details
Interior
Features
Exterior
Parking
Garage spaces -
Garage type -
Total parking spaces 1
Condo Details
Amenities
Exercise Centre, Recreation Centre, Laundry - In Suite
Inclusions
Property History
38




