1 - 6666 WALKER AVENUE, Burnaby, British Columbia V5E3B9
Contact us about this property
Highlights
Estimated valueThis is the price Wahi expects this property to sell for.
The calculation is powered by our Instant Home Value Estimate, which uses current market and property price trends to estimate your home’s value with a 90% accuracy rate.Not available
Price/Sqft$529/sqft
Monthly cost
Open Calculator
Description
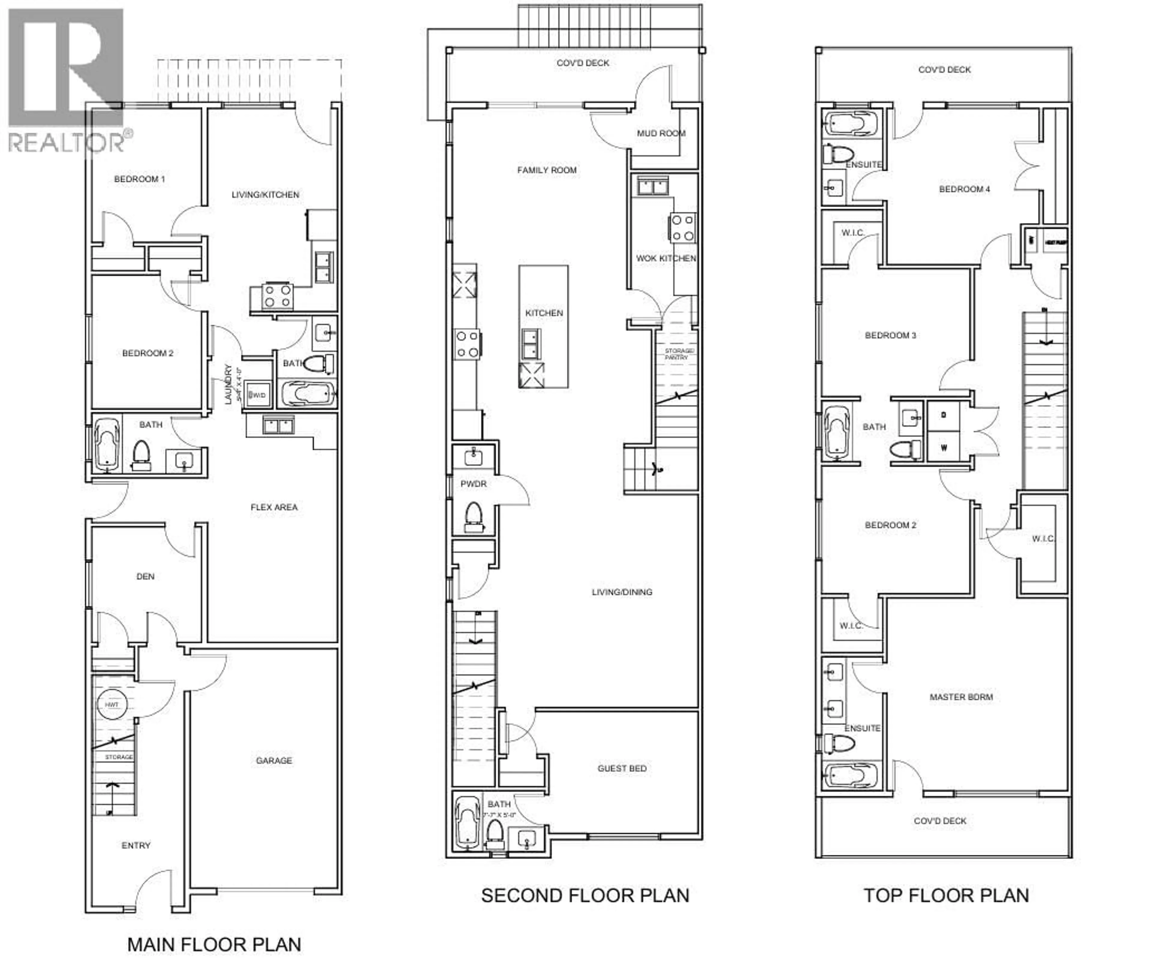
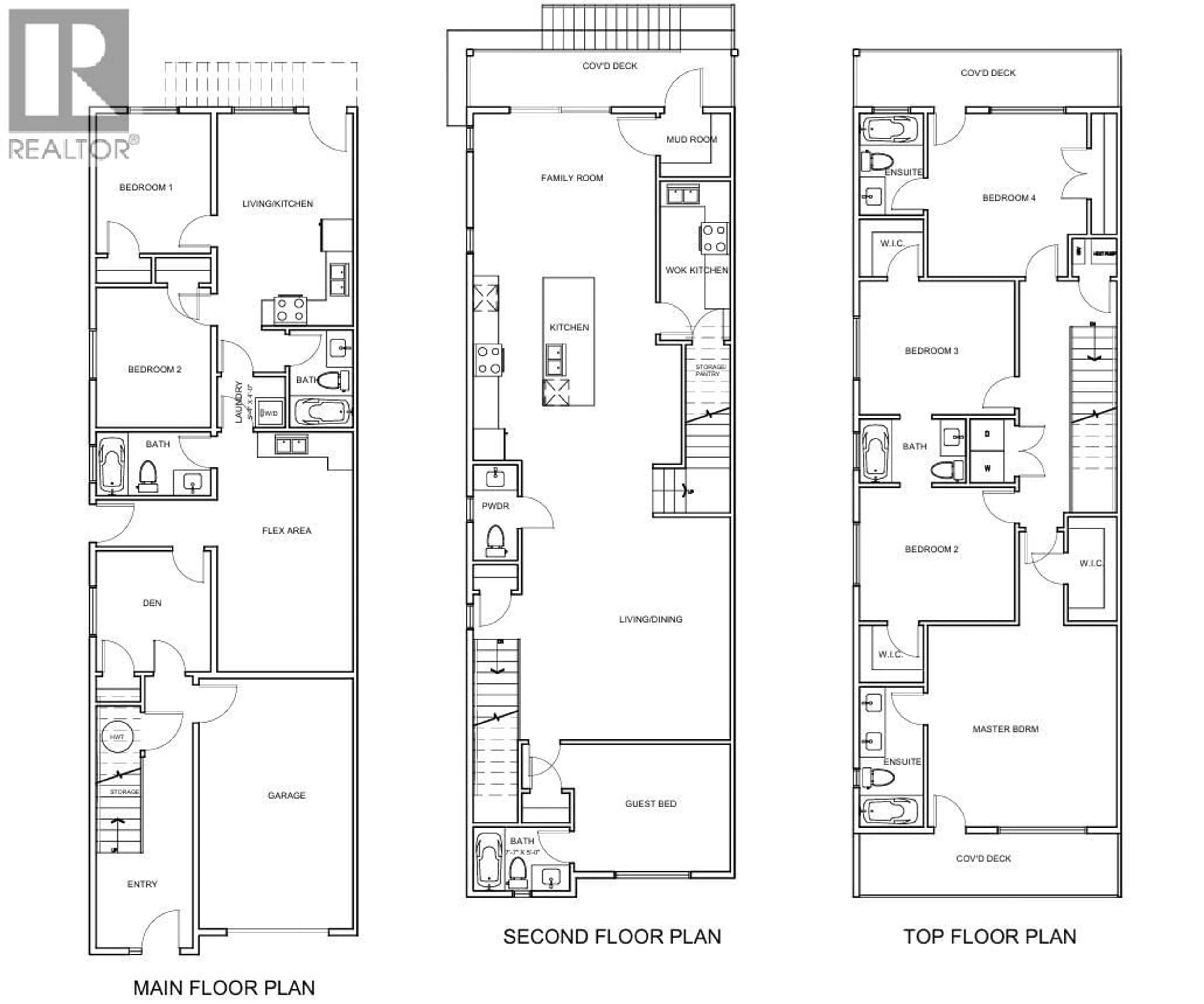
Experience LUXURY, INCOME potential, & energy SAVINGS in this BRAND NEW 7 BEDROOM & 7 BATH half duplex offering over 4,000 SF of living space! This beautifully designed home features bright open floor plan, sleek modern finishes, & wok kitchen with pantry. The upper floor offers 4 large bedrooms including 2 masters, while the main floor includes 1 bedroom with full ensuite-ideal for guests. Enjoy A/C, HRV, EV charger, attached garage, private yard & a full security and camera system. The home features a fully installed SOLAR POWER SYSTEM designed to reduce hydro costs and deliver long term savings! Includes a 2-bed legal suite with potential for an additional 1-bed suite ideal for mortgage help or multi-generational living. Steps from shopping, school, & transit! OPEN HOUSE APRIL 4TH & 5TH (id:39198)
Property Details
Interior
Features
Exterior
Parking
Garage spaces -
Garage type -
Total parking spaces 2
Condo Details
Amenities
Laundry - In Suite
Inclusions
Property History
38





