3929 FOREST STREET, Burnaby, British Columbia V5G1W7
Contact us about this property
Highlights
Estimated valueThis is the price Wahi expects this property to sell for.
The calculation is powered by our Instant Home Value Estimate, which uses current market and property price trends to estimate your home’s value with a 90% accuracy rate.Not available
Price/Sqft$751/sqft
Monthly cost
Open Calculator
Description
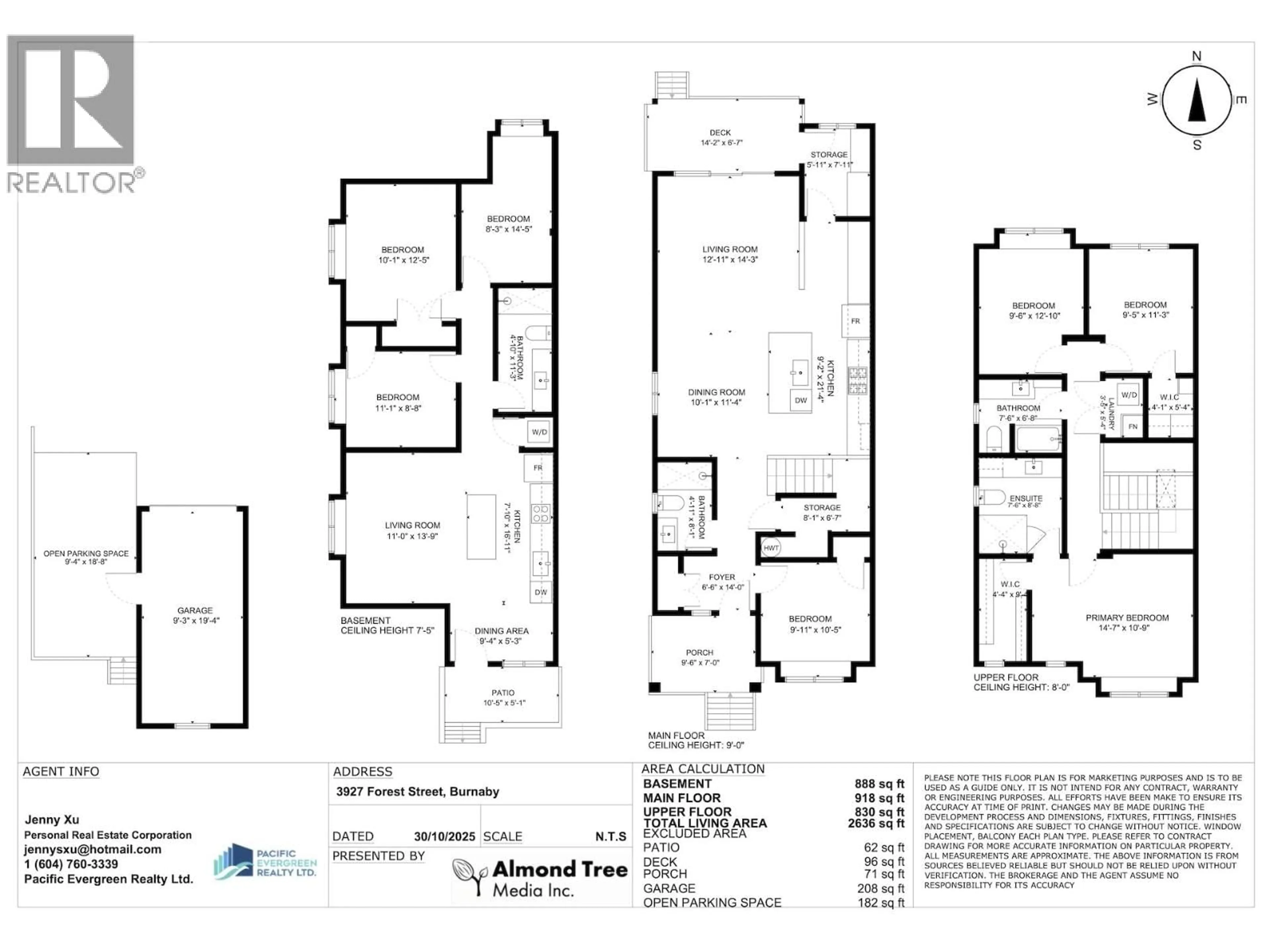
Brand new half duplex located in the desirable Burnaby Hospital area! This stunning home features a functional layout with a bright and spacious main floor offering a bedroom and a full bath - perfect for guests or in-laws. The modern kitchen boasts a huge island, high-end finishes, and opens to a cozy family room overlooking the private backyard. Upstairs includes three generous bedrooms, each with its own ensuite bathroom for ultimate comfort and convenience. The basement offers a legal two-bedroom suite with a separate entrance, ideal for mortgage helper or extended family. Quality workmanship throughout, close to schools, parks, transit, and shopping. Don't miss this exceptional opportunity! (id:39198)
Property Details
Interior
Features
Exterior
Parking
Garage spaces -
Garage type -
Total parking spaces 3
Condo Details
Inclusions
Property History
31




