1205 - 3970 CARRIGAN COURT, Burnaby, British Columbia V3N4S5
Contact us about this property
Highlights
Estimated valueThis is the price Wahi expects this property to sell for.
The calculation is powered by our Instant Home Value Estimate, which uses current market and property price trends to estimate your home’s value with a 90% accuracy rate.Not available
Price/Sqft$591/sqft
Monthly cost
Open Calculator
Description
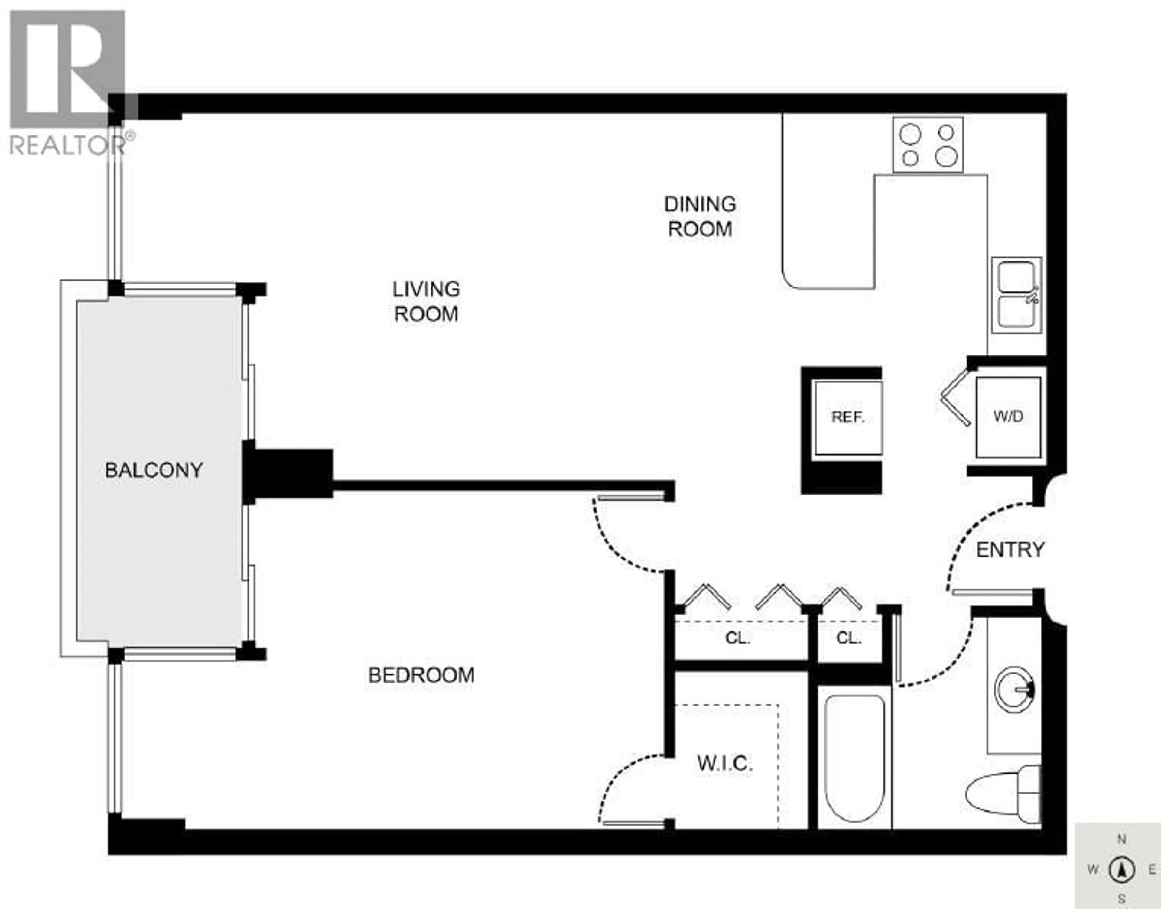
Welcome to The Harrington! Opportunity to purchase a 1 bedroom, 1 bathroom unit offers stunning views to the west with plenty of natural light. Features a functional open-concept layout with generous living and dining area. Enjoy the updated kitchen, bathroom and in-suite laundry as well as a walk-in closet in the primary bedroom. Very convenient location as it's just a short walk to Lougheed Skytrain Station and the Lougheed Town Centre Shopping Mall for transit, groceries, and plenty of dining options. Book your appointment today! Open house: May 16 (Sat) 2-4pm & May 17 (Sun) 2-4pm (id:39198)
Property Details
Interior
Features
Exterior
Parking
Garage spaces -
Garage type -
Total parking spaces 1
Condo Details
Amenities
Laundry - In Suite
Inclusions
Property History
21




