21 - 5756 PROMONTORY ROAD, Chilliwack, British Columbia V2R0V8
Contact us about this property
Highlights
Estimated valueThis is the price Wahi expects this property to sell for.
The calculation is powered by our Instant Home Value Estimate, which uses current market and property price trends to estimate your home’s value with a 90% accuracy rate.Not available
Price/Sqft$397/sqft
Monthly cost
Open Calculator
Description
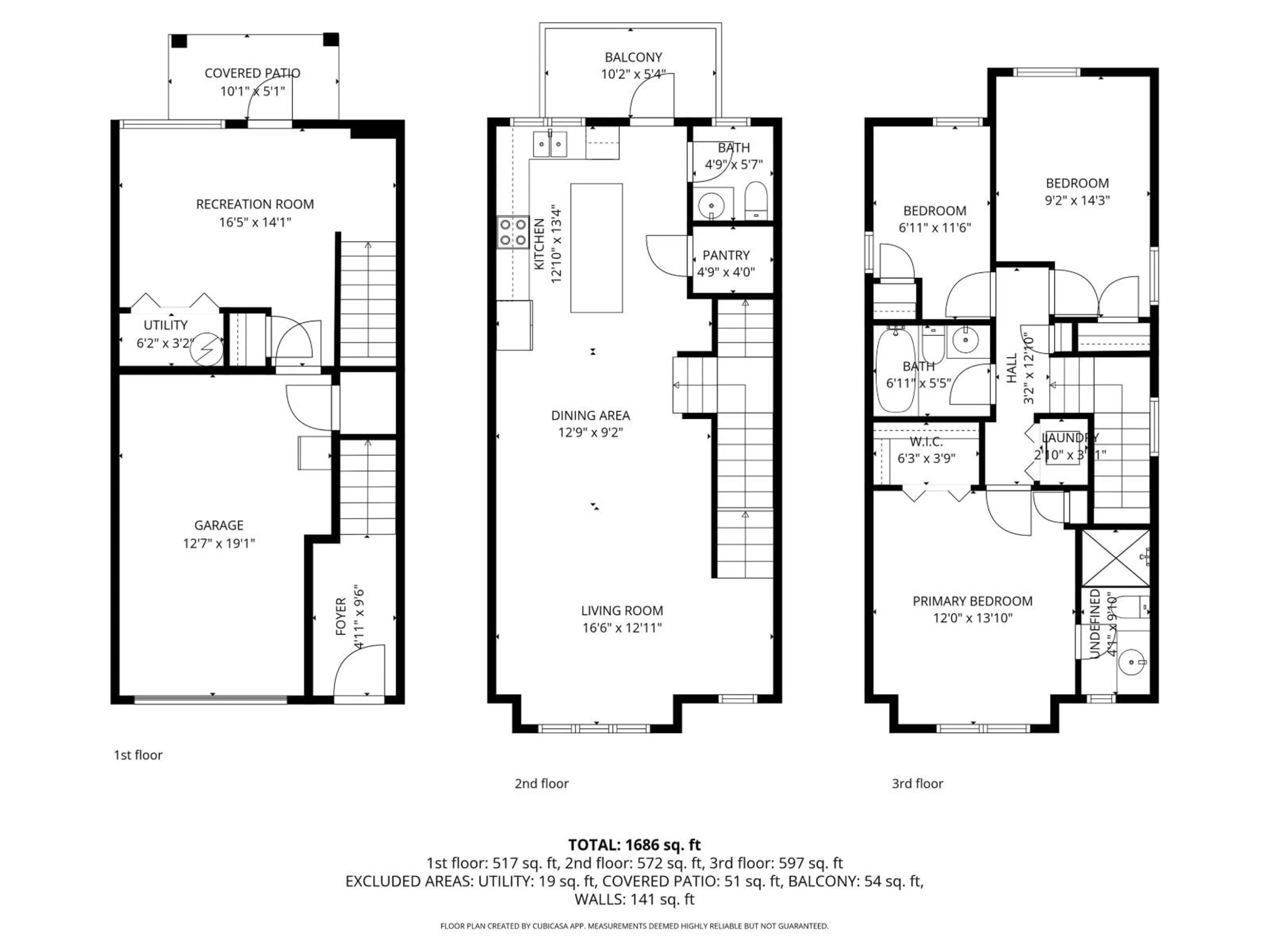
Home is calling at The Ridge, a stylish townhome community located in Promontory Heights. You'll love that this home is tucked away from the road with a large yard and views of the valley below. Stepping inside, neutral tones and curated details such as feature walls and statement lighting give a welcoming aesthetic that makes decorating a breeze. On the main floor you will find open concept living with the added convenience of a powder room. The kitchen is a standout"-far beyond the average townhouse"-offering generous space, plenty of cabinetry, a pantry, and a large island + quartz countertops. All 3 bedrooms are located on the upper floor including a dreamy primary with walk-closet and ensuite with shower in tile + glass. The lower level would make a great office, gym, or rec room. (id:39198)
Property Details
Interior
Features
Main level Floor
Living room
16.6 x 12.11Kitchen
13.4 x 12.1Dining room
12.9 x 9.2Pantry
4.9 x 4Condo Details
Inclusions
Property History
37




