8 - 1938 FOXWOOD TRAIL, Windermere, British Columbia V0B2L2
Contact us about this property
Highlights
Estimated valueThis is the price Wahi expects this property to sell for.
The calculation is powered by our Instant Home Value Estimate, which uses current market and property price trends to estimate your home’s value with a 90% accuracy rate.Not available
Price/Sqft$270/sqft
Monthly cost
Open Calculator
Description
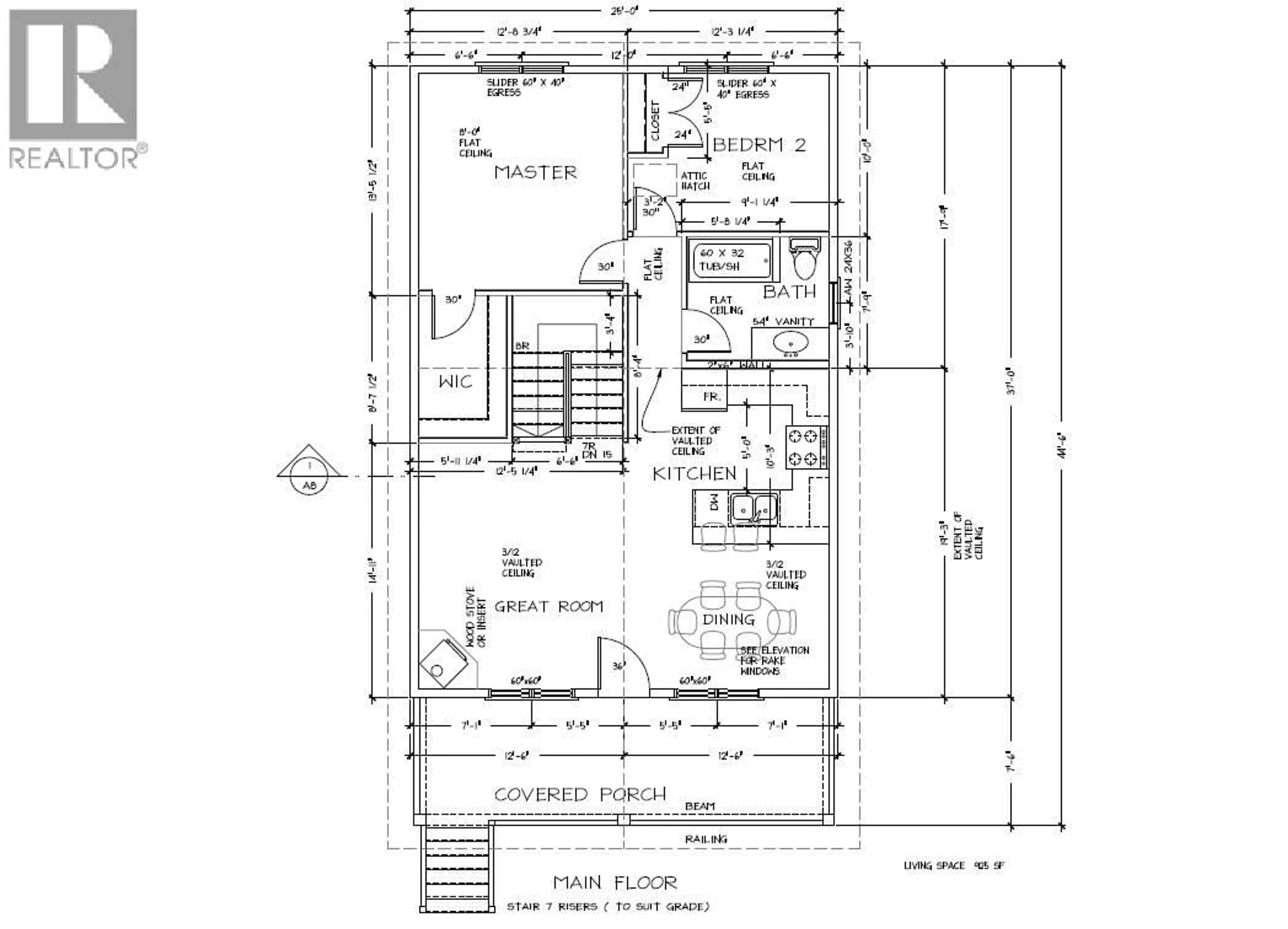
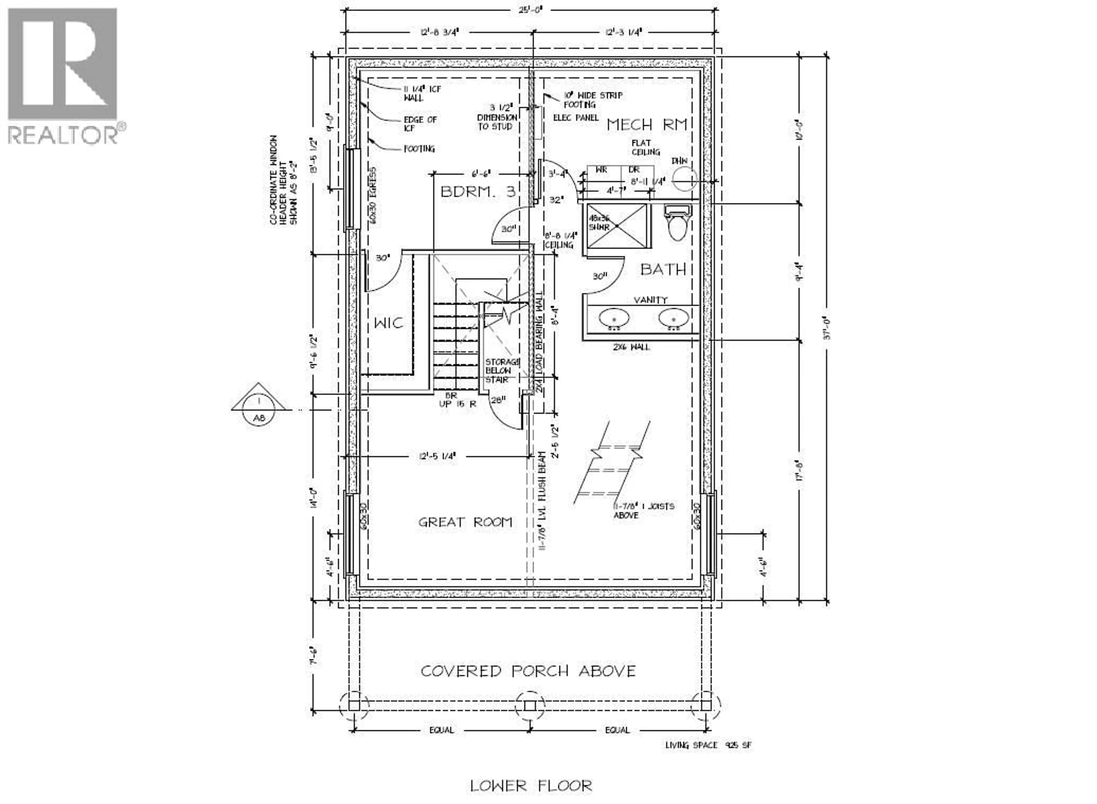
Welcome to your new home in the peaceful and picturesque community of Windermere, BC! Built in 2025, this stunning energy-efficient home combines modern luxury with everyday comfort—and comes complete with a new home warranty for added peace of mind. With 3 spacious bedrooms, 2 beautifully appointed bathrooms, and a great layout, this thoughtfully designed home offers incredible value for families, couples, or those seeking a stylish retreat. Step into the bright, open-concept living area, perfect for entertaining or cozy nights in. The kitchen is a true showstopper, featuring sleek stainless steel appliances, elegant quartz countertops, and smart layout designed to make cooking and hosting a joy. Wake up to breathtaking mountain views, unwind on your private deck, and experience the natural serenity BC is known for—all while enjoying the benefits of a modern, energy-conscious build designed for both comfort and cost savings. Notable upgrades include triple pane windows, extra insulation in the walls/roof and a metal roof. Call your Realtor and book a showing today! there are different sizes/layouts/price points of these so reach out for more information. Price is plus GST. (id:39198)
Property Details
Interior
Features
Main level Floor
Kitchen
10' x 10'Full bathroom
7'9'' x 9'1''Primary Bedroom
13'5'' x 12'8''Exterior
Parking
Garage spaces -
Garage type -
Total parking spaces 2
Condo Details
Inclusions
Property History
3



