7 - 8040 RADIUM GOLF COURSE ROAD, Radium Hot Springs, British Columbia V0A1M0
Contact us about this property
Highlights
Estimated valueThis is the price Wahi expects this property to sell for.
The calculation is powered by our Instant Home Value Estimate, which uses current market and property price trends to estimate your home’s value with a 90% accuracy rate.Not available
Price/Sqft$252/sqft
Monthly cost
Open Calculator
Description
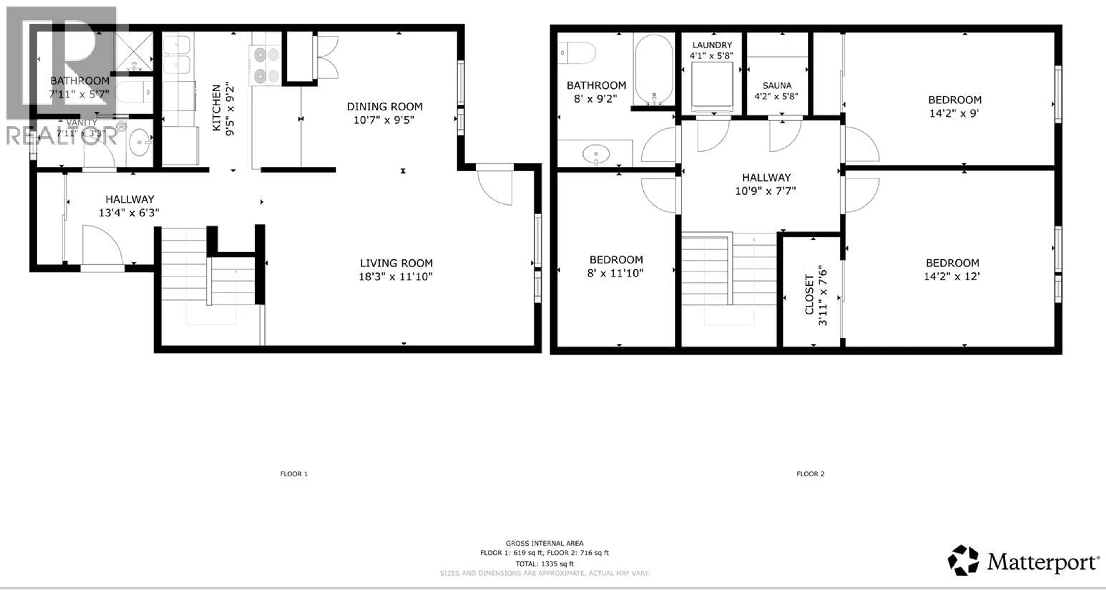
*Great views! *Great layout! *Great condition! Welcome to #7 Radium Hill. You are up on top (no basement bedrooms here) with lots of sunshine (south facing covered deck) and awesome views of the Radium Golf Course, with glimpses of the Purcell and Rocky Mountains. This unit has had an extensive renovation (kitchen, bathrooms, flooring, paint) about ten years ago and has been lightly used (not used for short term rentals). This the largest layout, featuring three full bedrooms, sauna, and two lofts (perfect for sleeping the entire extended family). Whether this is a recreational retreat and the chance to make memories in the mountains, or even viable for full time living- don't hesitate on this quality offering! (id:39198)
Property Details
Interior
Features
Second level Floor
Other
7'6'' x 3'11''Laundry room
5'8'' x 4'1''Other
7'7'' x 10'9''Sauna
5'8'' x 4'2''Condo Details
Inclusions
Property History
44




