212 OAK LANE, Lake Cowichan, British Columbia V0R2G0
Contact us about this property
Highlights
Estimated valueThis is the price Wahi expects this property to sell for.
The calculation is powered by our Instant Home Value Estimate, which uses current market and property price trends to estimate your home’s value with a 90% accuracy rate.Not available
Price/Sqft$538/sqft
Monthly cost
Open Calculator
Description
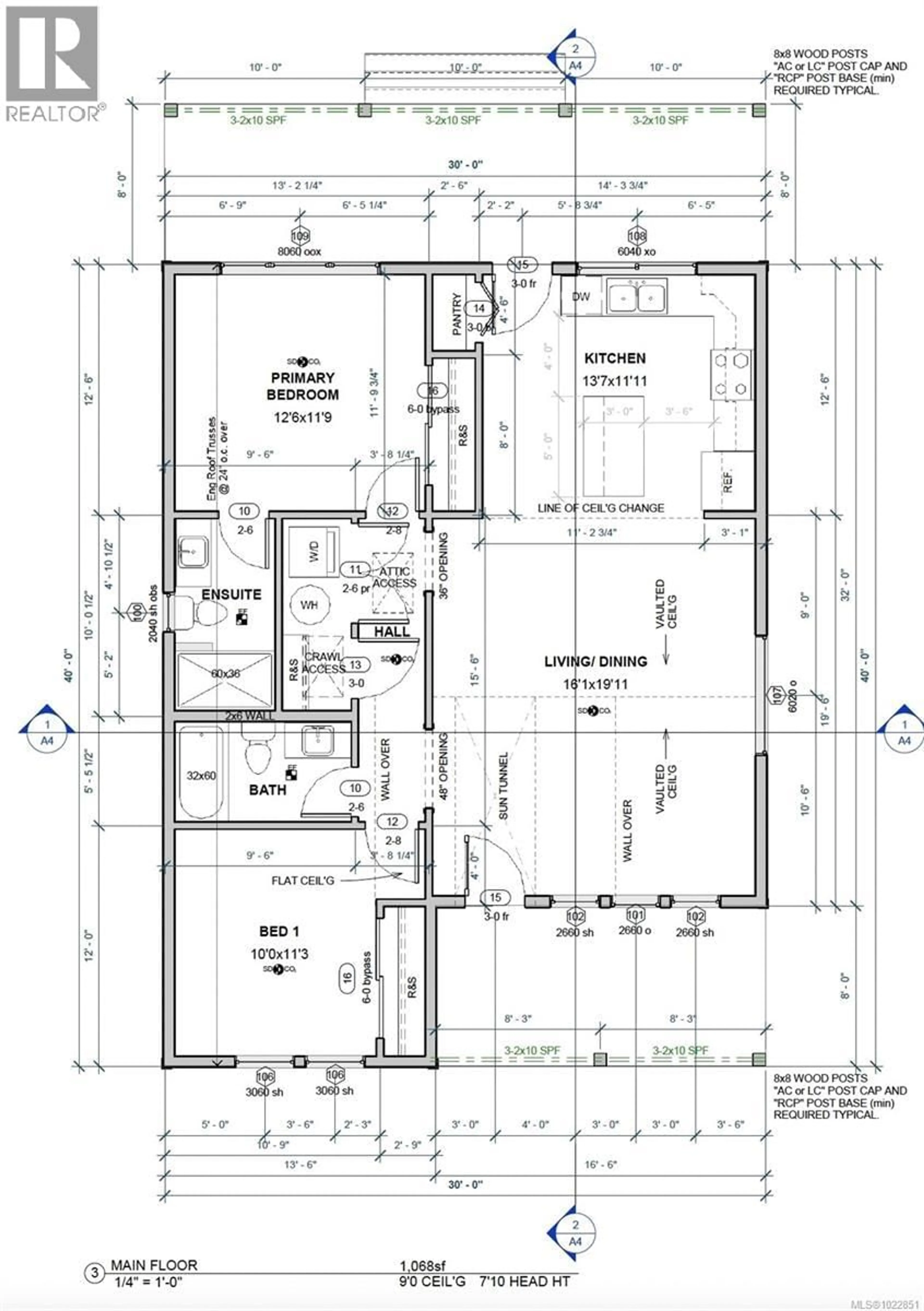
Welcome to this brand-new 2 bedroom, 2 bathroom home tucked away in a quiet area of Lake Cowichan. Thoughtfully designed with comfort and style in mind, this home features high-end finishings throughout including hardwood floors, quartz countertops, and stainless steel appliances. Large windows fill the space with natural light, highlighting the clean lines and modern design. Step outside to the back deck, perfect for relaxing or entertaining. Efficiently heated and cooled by a heat pump, this home combines modern convenience with timeless quality. (id:39198)
Property Details
Interior
Features
Main level Floor
Ensuite
Primary Bedroom
11'9 x 12'6Bathroom
Bedroom
Exterior
Parking
Garage spaces -
Garage type -
Total parking spaces 2
Property History
21




