881 THERRES CRESCENT, Ladysmith, British Columbia V9G1N5
Contact us about this property
Highlights
Estimated valueThis is the price Wahi expects this property to sell for.
The calculation is powered by our Instant Home Value Estimate, which uses current market and property price trends to estimate your home’s value with a 90% accuracy rate.Not available
Price/Sqft$534/sqft
Monthly cost
Open Calculator
Description
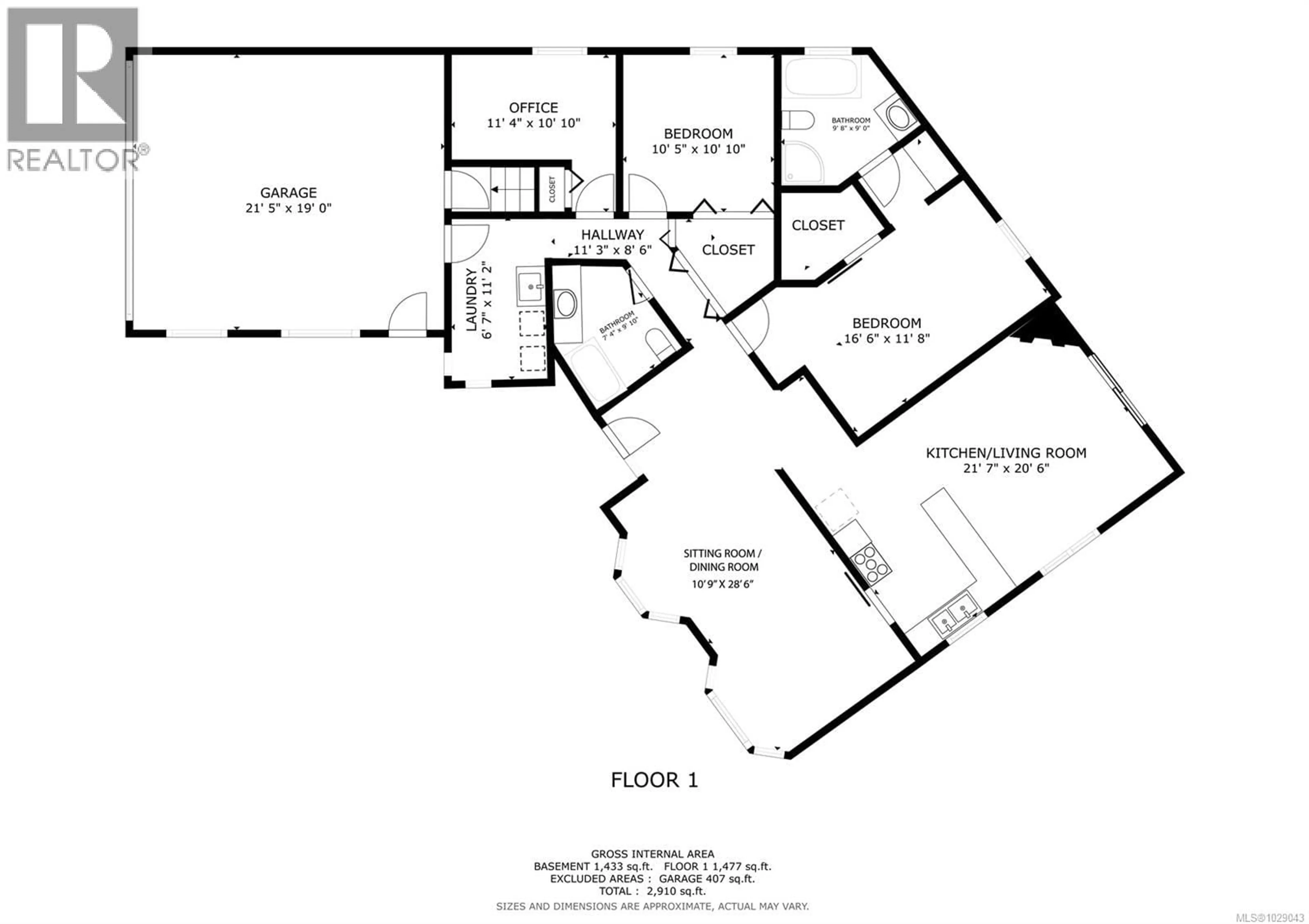
Welcome to this bright and inviting 3-bedroom, 2-bathroom rancher, perfectly situated in a desirable Ladysmith neighbourhood. Designed for comfortable one-level living, this home offers a thoughtful layout with spacious, light-filled living areas. At the front of the home, you’ll find an open-concept living and dining room featuring vaulted ceilings, bay windows, and a skylight that fills the space with natural light—ideal for both relaxing and entertaining. The heart of the home continues at the rear with an open-plan kitchen and family room, also boasting vaulted ceilings and skylights, along with a cozy fireplace and direct access to the deck and fully fenced backyard. The generous primary bedroom is a true retreat, complete with a vaulted ceiling and a beautifully appointed ensuite featuring a separate tub and shower, plus a dedicated makeup area. Two additional bedrooms and a full bathroom provide flexibility for family, guests, or a home office. Additional highlights include a double attached garage and a full-height crawl space (approximately 6'6'') offering exceptional storage. Outside, the fenced backyard provides a private space for gardening, pets, or outdoor gatherings. Conveniently located close to schools, parks, and the community centre, with easy access to recreation, beaches, marina, and golf course—this home offers the perfect blend of comfort, convenience, and lifestyle. Don’t miss the opportunity to make this well-maintained rancher your new home. (id:39198)
Property Details
Interior
Features
Main level Floor
Bedroom
10'10 x 11'4Bedroom
10'10 x 10'5Ensuite
Primary Bedroom
11'8 x 16'6Exterior
Parking
Garage spaces -
Garage type -
Total parking spaces 2
Property History
36





