1336 MCKINLEY ROAD, Ladysmith, British Columbia V9G1R2
Contact us about this property
Highlights
Estimated valueThis is the price Wahi expects this property to sell for.
The calculation is powered by our Instant Home Value Estimate, which uses current market and property price trends to estimate your home’s value with a 90% accuracy rate.Not available
Price/Sqft$463/sqft
Monthly cost
Open Calculator
Description
This attractively priced new 3 bedroom, 2.5 bathroom home provides modern comfort just minutes from Ladysmith’s historic downtown, boutique shops, scenic trails, and Transfer Beach. It features premium finishes like Hardie plank siding, shake and board-and-batten details, an efficient heat pump, on-demand gas water heater, and a grid-tied solar system for reduced energy costs — all supported by a 2-5-10 New Home Warranty. Enjoy spacious living with 9-foot ceilings throughout. Qualified buyers may qualify for the New Built Home Property Transfer Tax Exemption, and first-time buyers could receive a 100% GST rebate. It is the buyer’s responsibility to confirm eligibility. Come view this outstanding energy-efficient home today! (id:39198)
Property Details
Interior
Features
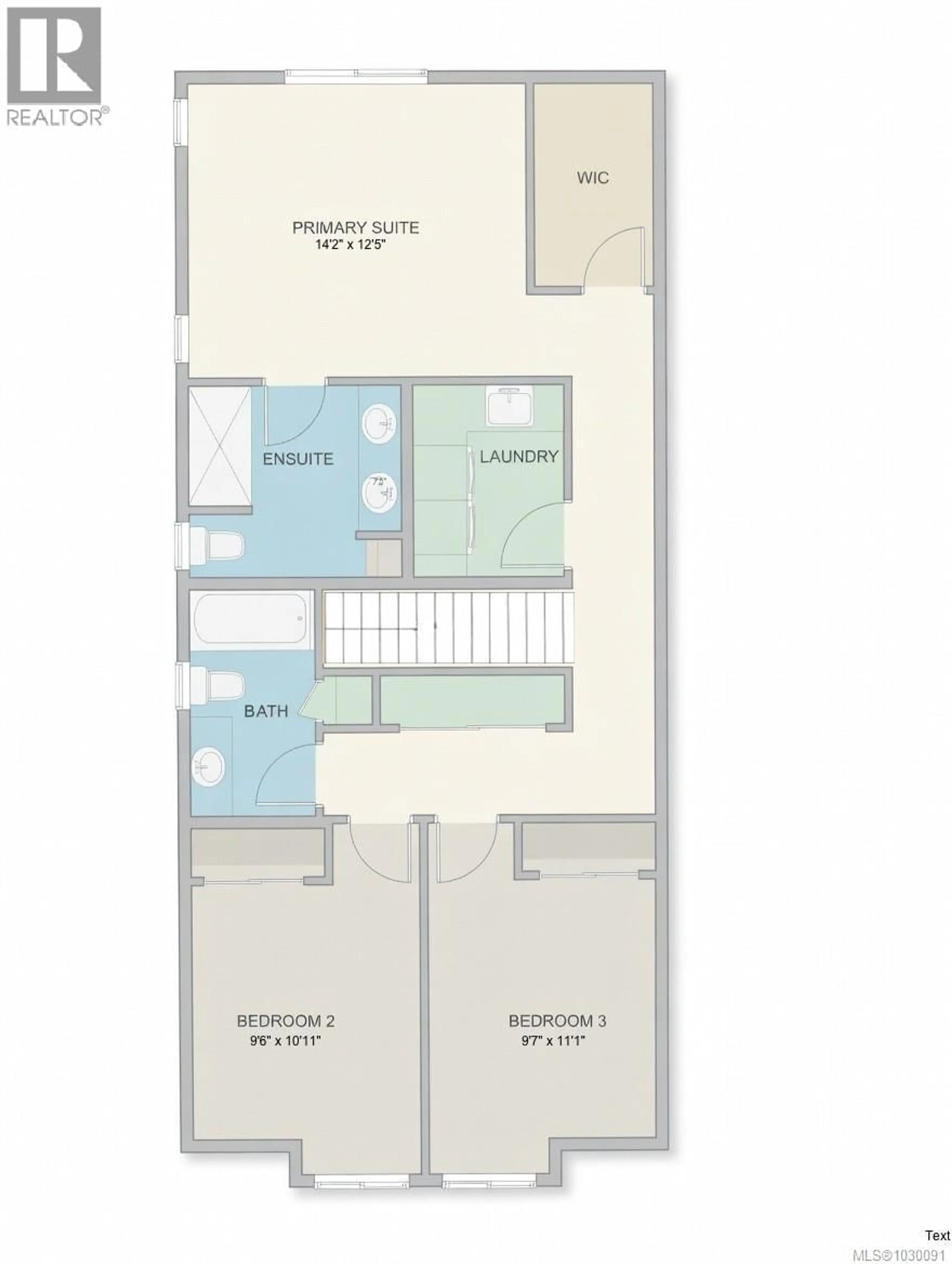
Second level Floor
Laundry room
8'0 x 6'4Bathroom
Bedroom
11'1 x 9'7Bedroom
10'11 x 9'6Exterior
Parking
Garage spaces -
Garage type -
Total parking spaces 3
Property History
13





