696 FRAYNE ROAD, Mill Bay, British Columbia V0R2P4
Contact us about this property
Highlights
Estimated valueThis is the price Wahi expects this property to sell for.
The calculation is powered by our Instant Home Value Estimate, which uses current market and property price trends to estimate your home’s value with a 90% accuracy rate.Not available
Price/Sqft$677/sqft
Monthly cost
Open Calculator
Description
Set on a fully fenced ½-acre lot, this well kept 2-bed plus den home offers space, privacy, and flexibility. Stay comfortable year-round with a ductless heat pump for efficient heating and cooling, plus a cozy Pacific Energy woodstove. The functional layout includes a 4-piece bathroom and easy indoor-outdoor living with a large south/west-facing rear patio—perfect for afternoon sun. A detached double garage, RV connection with pump-out, and plenty of parking add to the practicality. Conveniently located with an easy commute to Victoria and just a short walk to Mill Bay’s shops, services, and amenities. (id:39198)
Property Details
Interior
Features
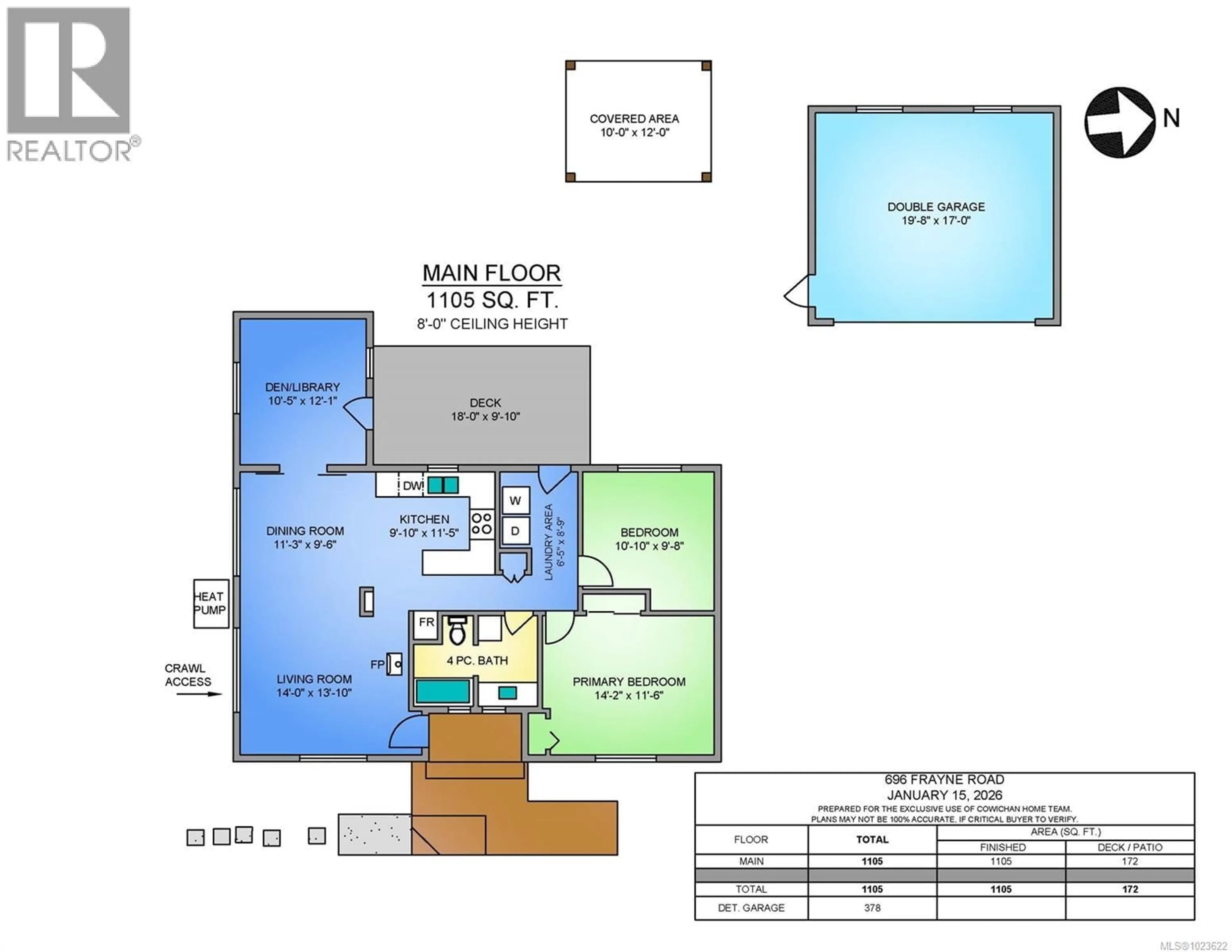
Main level Floor
Living room
Dining room
9'8 x 11'3Kitchen
11'5 x 9'10Primary Bedroom
11'6 x 14'2Exterior
Parking
Garage spaces -
Garage type -
Total parking spaces 6
Property History
36




