3589 CLIFCOE ROAD, Ladysmith, British Columbia V9G2B4
Contact us about this property
Highlights
Estimated valueThis is the price Wahi expects this property to sell for.
The calculation is powered by our Instant Home Value Estimate, which uses current market and property price trends to estimate your home’s value with a 90% accuracy rate.Not available
Price/Sqft$586/sqft
Monthly cost
Open Calculator
Description
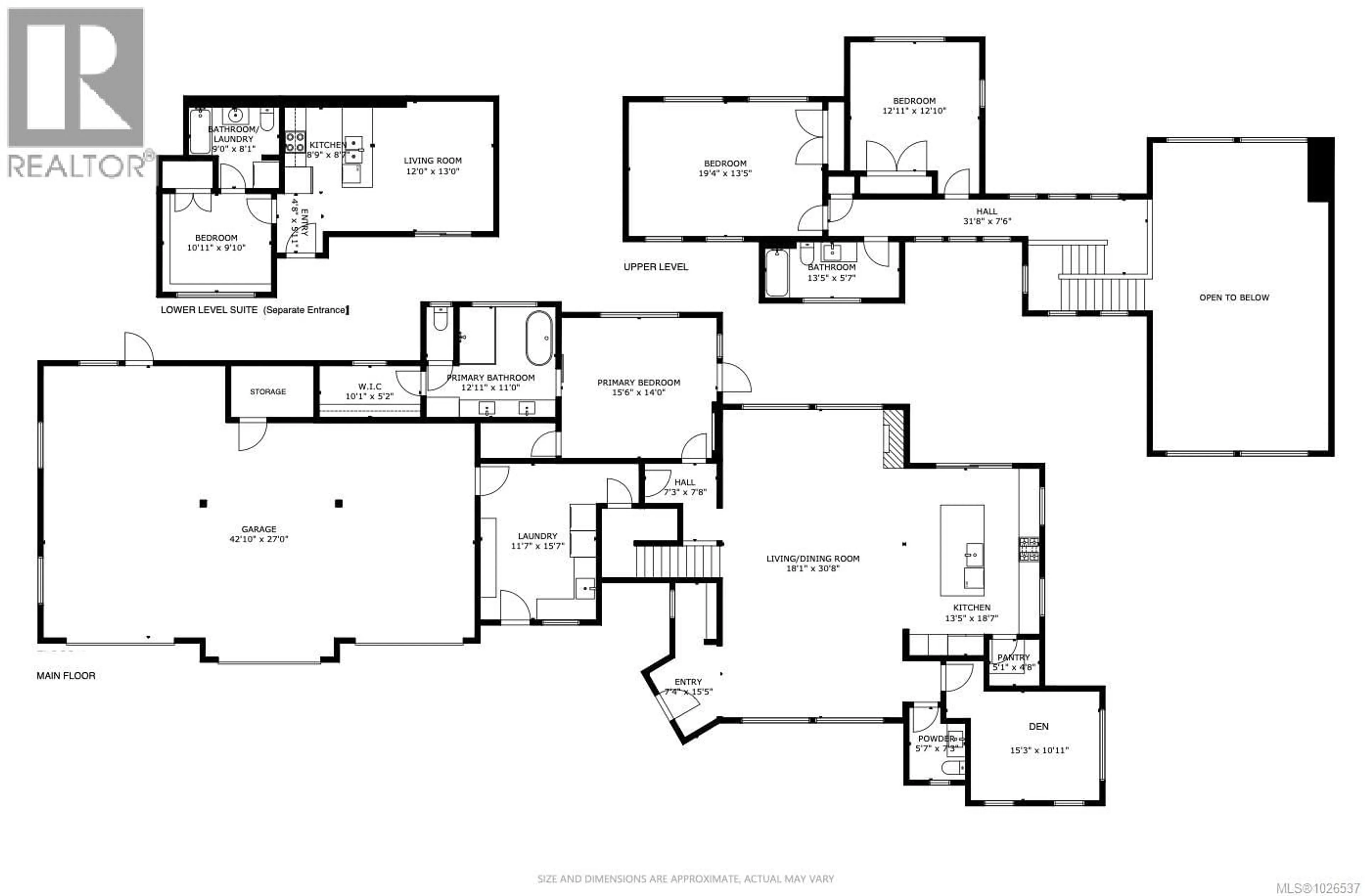
Architecturally Designed West Coast Home on 1 Acre — Vaulted Ceilings, Exposed Beams, Quality Finishes, Triple Garage & Legal Suite. Custom built by Gamble Homes, this 3,400+ sq ft residence sits on a private 1.04-acre property in sunny Saltair on a quiet dead-end street with nearby ocean access. Thoughtfully positioned to capture ocean glimpses, forest views, and abundant natural light, the home features high ceilings and expansive windows designed to maximize sunlight throughout. The open-concept main level showcases exposed Douglas fir beams, maple hardwood floors, and a natural gas fireplace with custom stonework. The kitchen offers quartz countertops, custom cabinetry, large island, walk-in pantry, and 6-burner gas range. The main-level primary suite includes ocean glimpses, walk-in closet, and spa-inspired ensuite with heated tile floors, freestanding tub, walk-in shower, and double vanity. Spacious laundry/mud room adds everyday functionality. Upstairs are two additional bedrooms and a full bathroom. Quality finishes include custom 8-ft doors, detailed trim, heated tile floors, and an efficient 3-zone heat pump system. A self-contained 1-bedroom legal suite (approx. 550 sq ft) provides excellent flexibility for extended family or rental income, for a total of 4 bedrooms and 4 bathrooms overall. Outdoor features include covered and open decks, tiered rock-lined landscaping, exposed aggregate entry, and natural stone accents. The 1,170 sq ft triple-bay garage offers an over-height bay and storage room. RV parking with full hookup, EV charger, and heated crawl space complete this exceptional custom home. Full information package, video & virtual tour are available. (id:39198)
Property Details
Interior
Features
Other Floor
Storage
8 x 5Exterior
Parking
Garage spaces -
Garage type -
Total parking spaces 5
Property History
48




