635 5TH STREET, Courtenay, British Columbia V9N1K5
Contact us about this property
Highlights
Estimated valueThis is the price Wahi expects this property to sell for.
The calculation is powered by our Instant Home Value Estimate, which uses current market and property price trends to estimate your home’s value with a 90% accuracy rate.Not available
Price/Sqft$541/sqft
Monthly cost
Open Calculator
Description
Beautiful new 3-bed, 3-bath home with a fully self-contained 1-bed micro-suite featuring a private entrance and in-suite laundry. Perfect as built-in rental income, long-term guest housing, or an in-law suite. Finished to high standards with in-floor radiant heat, heat pumps in each bedroom, and appliance packages included for both units. Turnkey, energy-efficient, and investor-ready—don’t miss this affordable income opportunity. Call Mike Fisher with Royal LePage in the Comox Valley to book your private viewing. 250-218-3895 (id:39198)
Property Details
Interior
Features
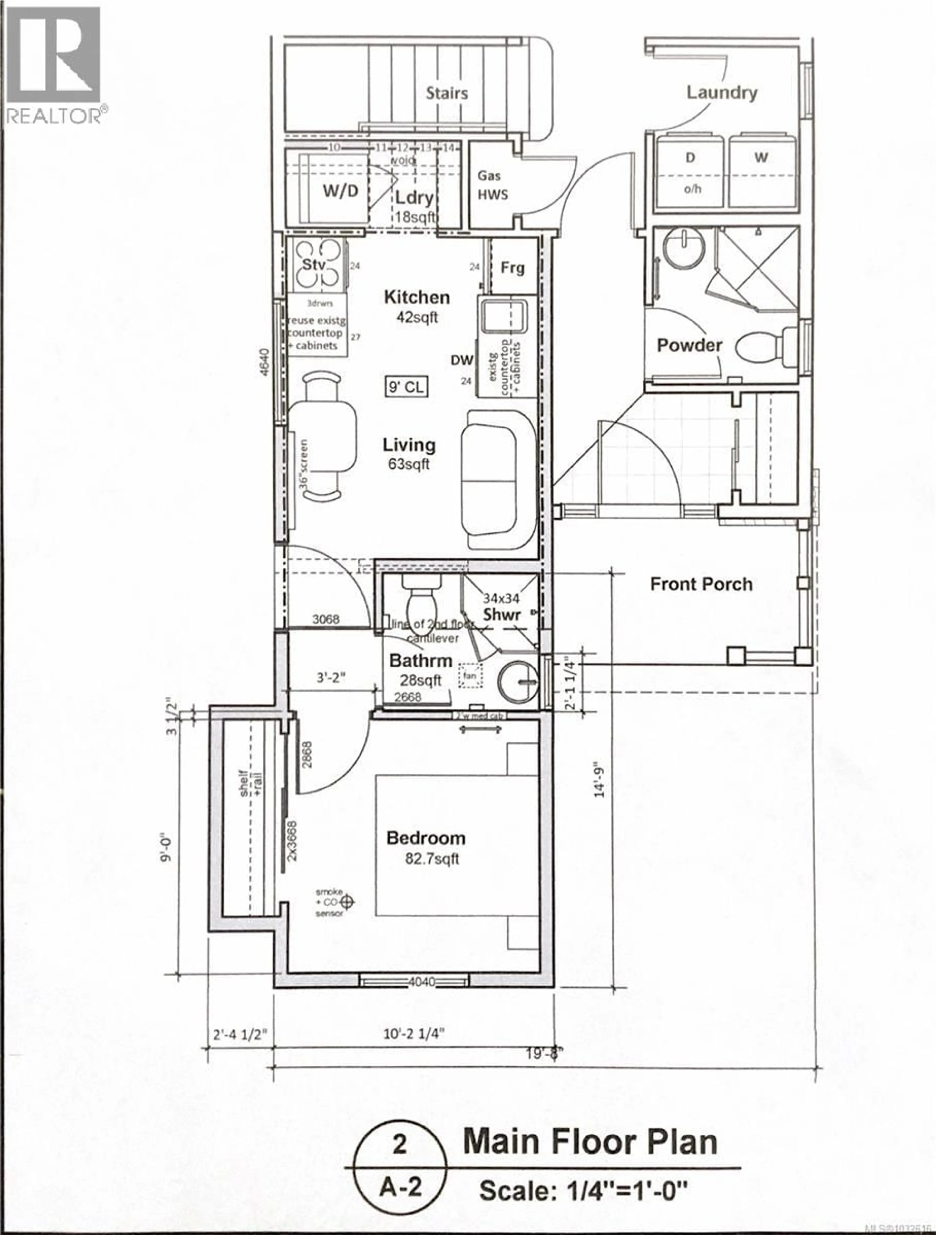
Other Floor
Kitchen
10'2 x 6'0Living room/Dining room
10'2 x 7'0Bathroom
Bedroom
10'2 x 9'0Exterior
Parking
Garage spaces -
Garage type -
Total parking spaces 3
Property History
24




