SL8 - 865 GRUMMAN PLACE, Comox, British Columbia V9M4H9
Contact us about this property
Highlights
Estimated valueThis is the price Wahi expects this property to sell for.
The calculation is powered by our Instant Home Value Estimate, which uses current market and property price trends to estimate your home’s value with a 90% accuracy rate.Not available
Price/Sqft$632/sqft
Monthly cost
Open Calculator
Description
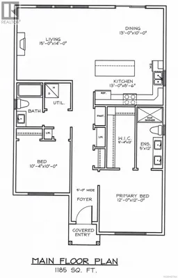
Construction starting soon with expected completion in September 2026—choose your colours and finishings now. Located in a rare boutique community of just 13 bare-land strata homes in a sought-after Comox cul-de-sac, this bright 1,185 sq. ft. rancher offers 2 bedrooms and 2 bathrooms with a thoughtfully designed layout. Quality finishes include 9’ ceilings, engineered hardwood floors, and a modern kitchen with quartz countertops, a gas stove, and stainless steel appliances. A heat pump provides efficient year-round comfort, while the functional design offers flexibility for guests or a home office. The primary suite provides a private retreat, and a 5’ crawl space offers excellent additional storage. Enjoy a low-maintenance outdoor space in a quiet setting, conveniently close to all Comox amenities. (id:39198)
Property Details
Interior
Features
Main level Floor
Living room
14'0 x 15'0Dining room
14'0 x 15'0Kitchen
8'6 x 13'0Bathroom
Exterior
Parking
Garage spaces -
Garage type -
Total parking spaces 2
Condo Details
Inclusions
Property History
11





