730 ELDERBERRY WALK, Sicamous, British Columbia V0E2V0
Contact us about this property
Highlights
Estimated valueThis is the price Wahi expects this property to sell for.
The calculation is powered by our Instant Home Value Estimate, which uses current market and property price trends to estimate your home’s value with a 90% accuracy rate.Not available
Price/Sqft$482/sqft
Monthly cost
Open Calculator
Description
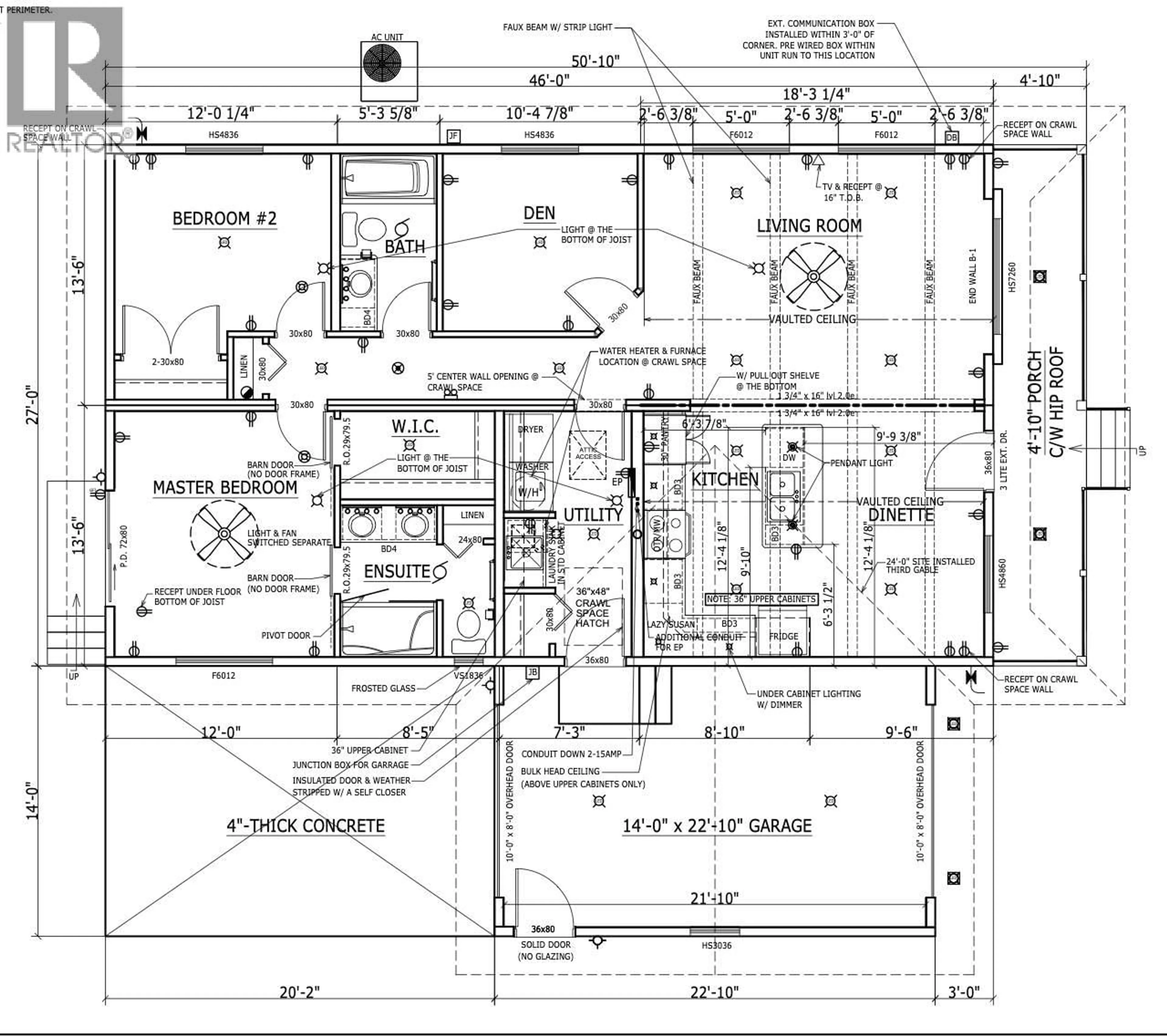
Newly built 2025 modular home in Sicamous, BC-minutes from the lake, shops, parks, and year-round recreation. 3 bedrooms or 2 bedrooms plus a den, 2 full bathrooms. Thoughtfully designed for comfortable living with quality upgrades. Open-concept living area is bright and functional, featuring transom windows, faux ceiling beams w/integrated lighting, pot lights, & modern palette. Kitchen stands out w/maple island, extended drawers, pull-out pantry shelving, under-cabinet lighting, & stainless steel appliances. Upgraded fixtures, pendant lighting, & taller upper cabinets. Primary is a quiet retreat w/sliding barn doors, walk-in closet w/upgraded shelving, & private ensuite-double sinks, LED toe-kick lighting, & premium faucets. Two additional rooms-flexibility for guests/home office. Additions include upper laundry cabinets w/counter space, upgraded interior & exterior doors, extended 4’ garage w/side entry & upgraded doors, rear deck for outdoor enjoyment, & central A/C-to be installed. Well-maintained strata community fees of just $75/month. Year-round residence, seasonal home, ow-maintenance lifestyle close to nature, this property offers modern living in a fabulous community. Houseboat Capital of Canada, Sicamous sits between Shuswap and Mara Lakes, fantastic boating, kayaking, & fishing. Winter brings world-class snowmobiling-nearby Queest/Owl Head mountains, scenic trails for hiking/cross-country skiing. Perfect blend of outdoor adventure & small-town charm! (id:39198)
Property Details
Interior
Features
Main level Floor
Dining room
9' x 13'8''Other
8'2'' x 4'9''Utility room
7'2'' x 13'4''Den
8'9'' x 9'9''Exterior
Parking
Garage spaces -
Garage type -
Total parking spaces 2
Condo Details
Inclusions
Property History
 33
33





