2 - 222 TEMPLE STREET, Sicamous, British Columbia V0E2V0
Contact us about this property
Highlights
Estimated valueThis is the price Wahi expects this property to sell for.
The calculation is powered by our Instant Home Value Estimate, which uses current market and property price trends to estimate your home’s value with a 90% accuracy rate.Not available
Price/Sqft$361/sqft
Monthly cost
Open Calculator
Description
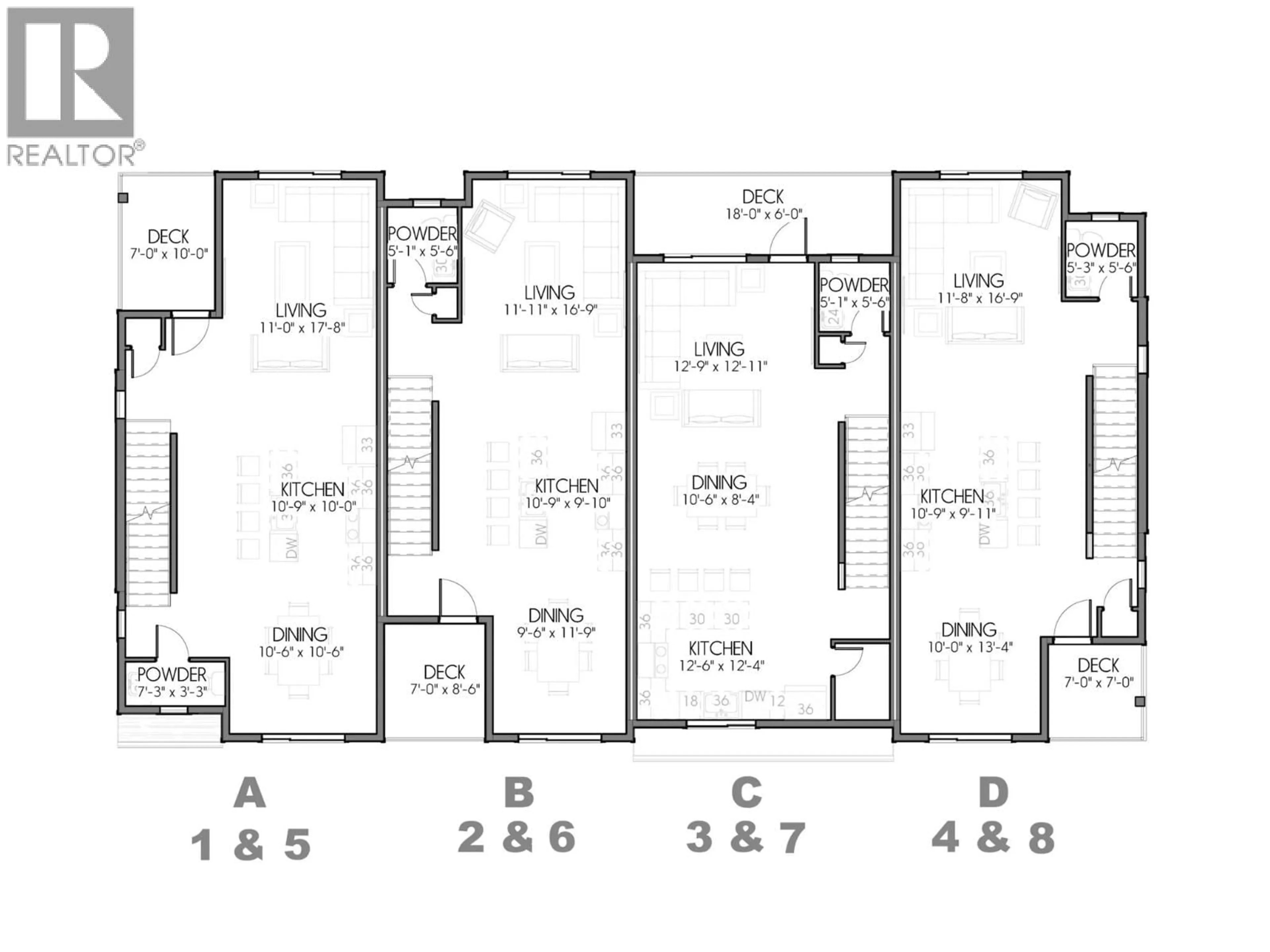
Welcome to #2 at MaraVista Sicamous. A thoughtfully designed 1,436 sq.ft. townhome that blends style, comfort, & functionality in one of Sicamous’ most exciting new developments. This is the one for Couples or Singles w/ 2 Primary Bedrooms & features an oversized garage w/an 8’ overhead door, measuring 39’ deep x 18’ wide—offering exceptional space for vehicles, storage, & all your recreational gear. Inside, you’ll find a welcoming entry w/ coat closet, leading upstairs to a bright, open-concept main floor with 9’ ceilings. Designed for entertaining, the layout offers a large eating bar, fireplace, dining area, powder room, & a 7’ x 8.5’ outdoor deck for fresh air & summer BBQs. Upstairs, the first primary bedroom is ideally positioned at the back of the home for privacy & quiet, complete w/ a full ensuite & an enhanced walk-in closet w/ impressive storage & organization potential. A second Primary bedroom also features its own ensuite, while a versatile den provides flexible space for an office or hobby room. Modern finishings include quartz countertops throughout, white cabinetry, black hardware, neutral vinyl plank flooring, + enhanced soundproofing. The exterior showcases Hardy Plank siding, energy-efficient windows, & high-efficiency mini-split A/C system for year-round comfort. Fully fenced yard. W/ only 5% down, Low strata fees at $356.11/m. A $5000 appliance credit is available for the first 4 units sold. OAC -low as 3.64% 3 year insured loan and cash back upto $4800. (id:39198)
Property Details
Interior
Features
Third level Floor
Other
6'5'' x 5'9''Full bathroom
5'0'' x 9'5''Bedroom
9'11'' x 7'9''Bedroom
10'6'' x 9'2''Exterior
Parking
Garage spaces -
Garage type -
Total parking spaces 3
Condo Details
Amenities
Clubhouse
Inclusions
Property History
25




