1 - 222 TEMPLE STREET, Sicamous, British Columbia V0E2V0
Contact us about this property
Highlights
Estimated valueThis is the price Wahi expects this property to sell for.
The calculation is powered by our Instant Home Value Estimate, which uses current market and property price trends to estimate your home’s value with a 90% accuracy rate.Not available
Price/Sqft$360/sqft
Monthly cost
Open Calculator
Description
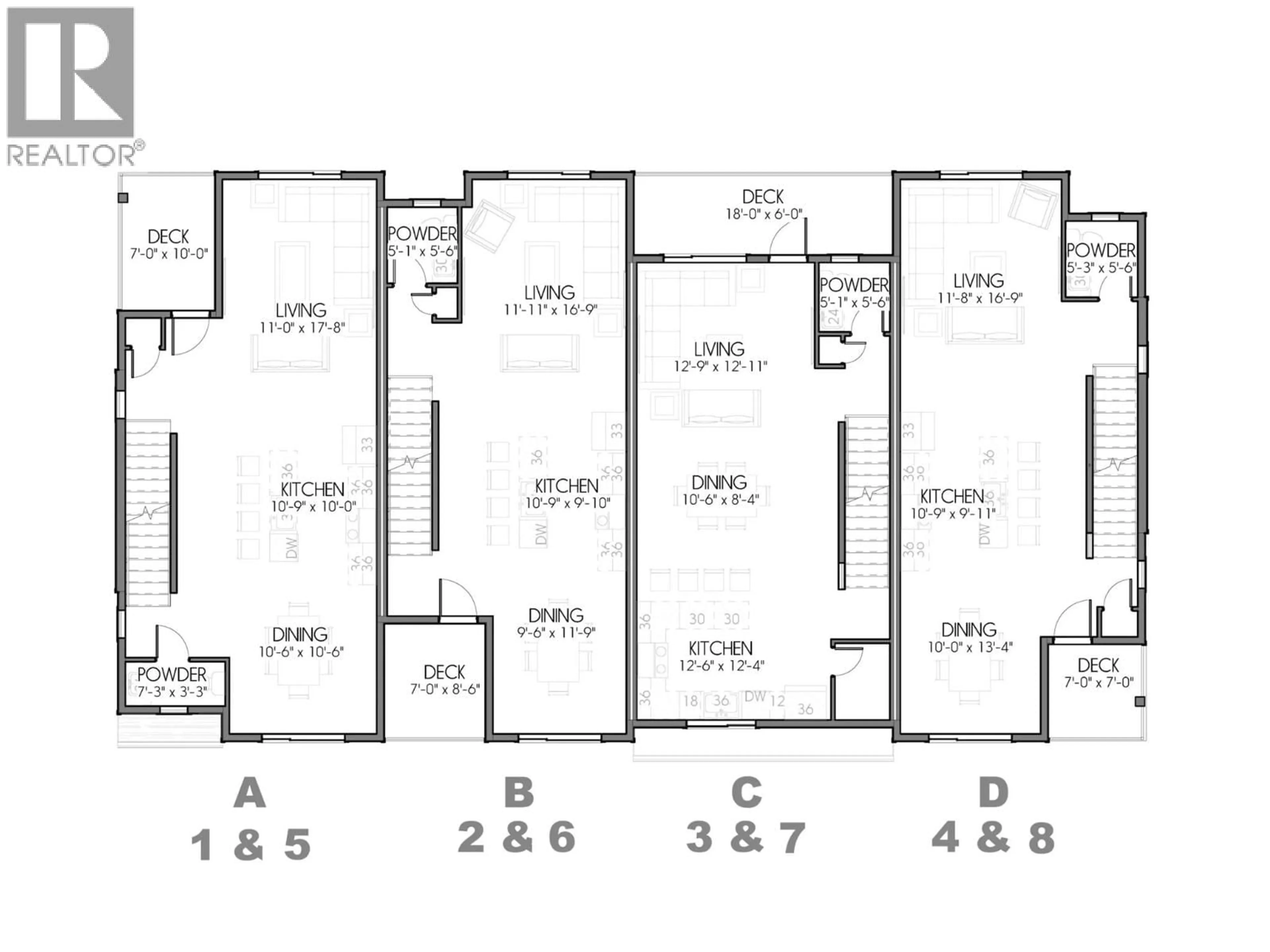
Welcome to #1 at MaraVista in Sicamous. This rare corner unit offers exceptional privacy with only 1 shared wall, making it one of the most desirable locations in the complex. Enjoy 1,582 sq.ft. of modern living plus a large 663 sq.ft. garage w/ 8’ overhead door & 39’ deep x 19.5’ wide —ideal for vehicles, lake toys, bikes, snowmobiles & storage. The open-concept main floor is bright & functional, featuring a stylish kitchen with eating bar, electric fireplace, dining area, powder room, & access to a 7’ x 8.5’ deck for relaxing & entertaining. Upstairs offers 2 spacious bedrooms + den, with both bedrooms featuring private ensuites, plus a full walk-in closet in the primary & convenient upper-floor laundry. Finished with quartz countertops throughout, white wood grained cabinetry, matte black hardware, neutral vinyl plank flooring, & enhanced soundproofing. The exterior includes durable HardiePlank siding, energy-efficient windows, & a high-efficiency mini-split A/C system for year-round comfort. A fully fenced yard adds bonus outdoor space for pets and children. Located in a prime walkable Sicamous location close to downtown, parks, the beach, schools, & everyday amenities. Prewired for fibre optic internet . Only 5% down + $5,000 appliance credit available for first 4 units sold. Low strata fee $356.11/month. OAC -low as 3.64% 3 year insured loan and cash back upto $4800. Pet restrictions apply. Second of the four season destination only 22 min to Salmon Arm. (id:39198)
Property Details
Interior
Features
Second level Floor
Other
10' x 7'Partial bathroom
3'3'' x 7'3''Living room
17'8'' x 11'Dining room
10'6'' x 10'6''Exterior
Parking
Garage spaces -
Garage type -
Total parking spaces 3
Condo Details
Amenities
Clubhouse
Inclusions
Property History
42



